查看完整案例


收藏

下载
房屋,葡萄牙阿格达
设计师:Espaço Objecto
面积:950 m²
年份:2017
摄影:Ivo Tavares Studio
建造商:panoramah!®
设计师:Arquitetura e Design, Lda; António Figueiredo; Manuela Fernandes
设计团队:Rui Urbano, Mali Brito
土木工程:Carlos Coutinho; Luis Quintal
空调:Climacom, Lda
城市:Águeda
国家:葡萄牙
设计师描述 | Designer description:
这是向本世纪初的折衷建筑的致敬,并由ÁguedaPDM划为遗产遗产。 这座建筑位于阿格达教区和自治市的Joaquim de Melo博士大道上,其立面上展示了一系列装饰元素,这些元素的灵感来自或带有装饰艺术风格,与其他同类建筑一样,其体积亮点较高的元素,塔式,仅具有装饰效果,位于最靠近公共街道的建筑物主体中。 它与城市结构融为一体,这种类型的独立式单户住宅占主导地位,它的视觉关系和与Conselheiro Conde de Sucena公共花园的接近性,除了在历史意义上的特殊性外,还为这座建筑增添了价值。 20世纪初的葡萄牙建筑风格。
提案。 该物业的建筑价值位于城市中心,有助于其所有者进行修复和扩建工程,以使其适应自己的住所。 从构思到最终解决方案的整个过程都引起了讨论,进展和挫折,并在包括开发人员在内的所有利益相关者之间进行了持续的批判性分析。 对房屋的功能组织进行了研究,目的是在各种现有内部空间与拟议的内部空间之间建立相互依存的关系,其中包括与外部空间的相互依存关系,并考虑到与太阳能定向,能源效率和房屋舒适性相关的问题。 另一方面,我们试图将这些方面与享受具有相对于周围环境的私密性的居住空间的要求相协调。
对现有空间的设计包括拆除内部隔断工程,拆除地板,清洁和修复外墙,并保留所有具有特征的装饰元素。 为此,在开始外墙清洁工作之前,必须对所有装饰元素进行模制,从而确保其设计的完整性。
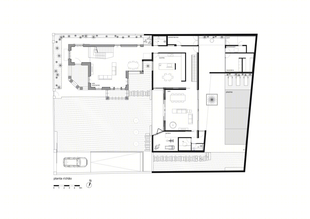
规划。 将在存在的两层楼引入的程序包括在地面层的入口区和公共休息室; 在1楼,有图书馆和一间带更衣区和私人厕所的卧室。 拟议的扩展区域包括两个相互关联的楼层。 在其中一楼中,一楼专门用于厨房和支撑区域,而在一楼则包括两间卧室及其浴室设施。
这个新空间与现有建筑物相衔接,并承担了一些正式和体积上的承诺,使其通过很小的体积连接起来,以突出并标记新的设计措施。 新的白色混凝土结构的质地,颜色和立体感应有助于使这两个主体相互关联,尽管它们的建筑语言差异很大,而且时间上相距甚远,但它们不仅寻求体积上的对话,还寻求与物体之间的对话。一些设计立面的元素和材料。
第二个扩展主体直接连接到第一个扩展主体,还包括两层:地下室和底层。 停车区,地下室和储藏室的地下层由一个外部汽车通道坡道和一个位于服务区旁边的内部楼梯服务。 一楼包括一个休息室,一个小型健身房和卫生设施,以支持这两个空间和游泳池。 这个单层的空间是通过矩形设计的,并且将其植入游泳池旁可以创建具有一定私密性的外部空间。
在泳池周围的室外区域,引入了四边形的露天休息室,使您可以欣赏地下室花园的景色。 该大厅还为将自然光引入地下室和酒窖空间创造了条件。 植入在北流和东流中的附件区域连接到房屋的服务区域,并包括洗衣房,狗窝和有顶棚的支撑区域。 该地块的未开发区域经过了绿色处理,草坪面积和一些植树造林。
项目完工照片 | Finished Photos
1.25 GB
客服
消息
收藏
下载
最近











































































