知末
知末
创作上传
VIP
收藏下载
登录 | 注册有礼

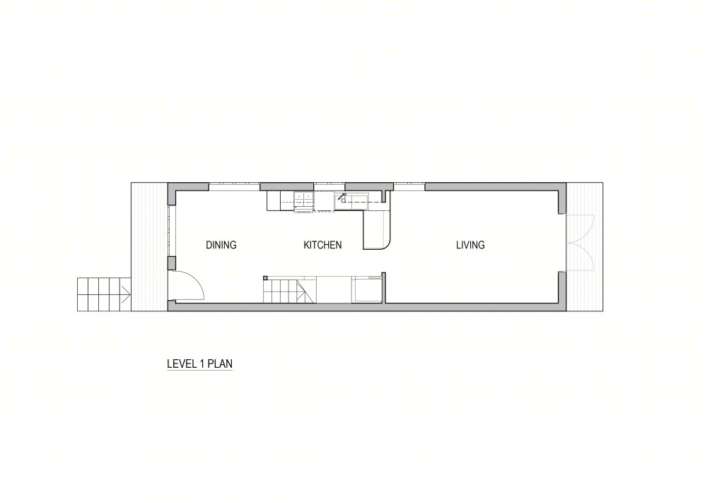
翻新 90 年代联排别墅,明亮温馨的河畔之家

2020/05/29 16:15:47
查看完整案例
微信扫一扫
收藏
下载
翻新 90 年代联排别墅,明亮温馨的河畔之家-0
翻新 90 年代联排别墅,明亮温馨的河畔之家-1
Footscray"already had beautiful natural light and an excellent view to the river and Footscray Park, however, it had seen better days and was in need of a refresh", explains Circle Studio Architects.
The revamp, built by
翻新 90 年代联排别墅,明亮温馨的河畔之家-4
翻新 90 年代联排别墅,明亮温馨的河畔之家-5
翻新 90 年代联排别墅,明亮温馨的河畔之家-6
翻新 90 年代联排别墅,明亮温馨的河畔之家-7
翻新 90 年代联排别墅,明亮温馨的河畔之家-8
翻新 90 年代联排别墅,明亮温馨的河畔之家-9
翻新 90 年代联排别墅,明亮温馨的河畔之家-10
翻新 90 年代联排别墅,明亮温馨的河畔之家-11
翻新 90 年代联排别墅,明亮温馨的河畔之家-12
翻新 90 年代联排别墅,明亮温馨的河畔之家-13
翻新 90 年代联排别墅,明亮温馨的河畔之家-14
翻新 90 年代联排别墅,明亮温馨的河畔之家-15
翻新 90 年代联排别墅,明亮温馨的河畔之家-16
南京喵熊网络科技有限公司 苏ICP备18050492号-4知末 © 2018—2020 . All photos and trademark graphics are copyrighted by their owners.增值电信业务经营许可证(ICP)苏B2-20201444苏公网安备 32011302321234号
客服
消息
收藏
下载
最近