查看完整案例

收藏

下载
線與矩的空間故事
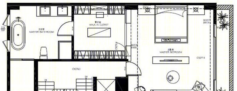
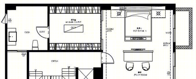
本案為一透天住宅,屋主夫妻擁有自己的工作團隊,所以家中會有多人聚會和工作討論的需求。空間先天條件寬大而明亮,因此設計師善用樓層,區分公與私的生活範圍,使每個空間能保持獨立方整而大氣的格局。設計手法上,以線條與線條所圍塑的矩形,在水平和垂直等不同向度上,推拉比例大小,交織成面,組構空間的理性性格;色調上,則以單純的淨白為底色,再以黑色、木色,甚至是光帶等材質成為空間線條的顏色和肌理,勾勒空間中的實與虛,捕獲空間中的光線表情,成為空間的感性性格。
一層聚會空間中,矩形分割出書牆上實虛的變化,加上落地簾縫隙的天光,與木質天花下懸吊的特殊折線光帶,營造出穩定而不死寂的氣氛。階梯扶手,則以大小不同的矩形黑鐵框,向上堆疊而成,帶出上層私領域的空間主題。上層空間主題,以白底黑線的色彩對比出矩形與L形的圖案,一路從垂直向度的電視主牆面,延伸到水平向度的天花板,相當搶眼,同時有拉高視覺高度的效果。一旁與餐廳間的白底木框拉門,形成有趣的空間層次,也達到手法上的一致性。拚木肌理則化身成沙發背牆的筆觸線條,溫暖而豐富,一旁帥氣的菱形書架結構,也與臥室裡木格天花下的那道黑線編織電視牆,一起訴說線與矩的空間故事。
客服
消息
收藏
下载
最近


















