查看完整案例

收藏

下载
浅洽区走廊,在光影体现最为丰富的造景处放置仿生元素的雕塑,使之与光影完美结合,成为整个空间与自然融合点,寂静的走廊,驻足观赏,引人深思。88 户型软装丛林浅唱在夏天的那些房间里,你会向往和温馨的夜晚融合在一起,月光的清辉照在半开的百叶窗上,把迷人的黑白相见的影子一直投射到床脚。普鲁斯特《追忆似水年华》88 户型以年轻人为主要群体,在喧哗的城市,频繁快速的节奏,拥挤着,忙碌
//千寻·用艺术致敬生活//时间沉淀出创造精神东八区的北京,日夜匆忙,人影匆匆,国际化的现代都市,成年人脸上每天的职业表情。环绕在我们四面八方的环境,又在向我们传达什么情绪。是否能偶尔停留一刻?追寻忽视过的万物生息,项目“自然情绪”命题由此而定。作为一个承载、连接、融合的地标。它是“当代”生活的名片,刷新城市新面貌。
该项目位于北京市东北六环外顺义区,远离市区的嘈杂,这里有一份得天独厚的宁静。以“自然情绪”为主题,冲破建筑、景观与室内空间的边界,便有了这一人文与艺术完美结合的生动作品。
售楼处『 光与影 』 从一颗沙砾里看到世界,在一朵野花中望见天堂,方寸之手握得住无限地域,区区一个时辰包容永恒。威廉。布莱克《天真的预兆》
“生命是行走的影子,所有的一切都可以在行走的路上被消解。”
如何追求理想的自由?追求自由,纯粹诗意空间的日本建筑师、普利兹克建筑奖获得者 SANAA 妹岛和世,在设计中以异于常人的眼光探索连续空间、光线、透明度以及各种材料的本质,从而在这些元素间创造出一种微妙的和谐感。
接待区“人心如海,包容万象,有暴风雨,有惊涛骇浪,但在最深处也有璀璨的珍珠。”
匆忙的脚步与白色波纹融为一体。接待区前台的设计中平面与弧形相结合,踏入建筑的第一时起,你就与其建立了紧密的联系,以直观的触动击中心灵。黑色弧形灯饰以一种简洁的语言,极简的风格,来串联建筑和抽象的概念。
沙盘区“以清净心看世界,以欢喜心过生活,以平常心生情味,以柔软心除挂碍。”
以沙盘的方式,感受城市的脉搏,画出理想中家的脉络。此时此刻不必在乎金钱、地位、时间,只要倾听内心最干净的声音。建筑的采光和透明设计,让室内被柔和的自然光所包围,阳光树影全然溶解到这座建筑当中,人与建筑、自然合为一体。
浅洽区“抬头向星星仰望,玫瑰花把芬芳的童话,偷偷地在耳边谈讲。”
建筑内部的浅洽区,设计师放弃使用墙壁和立柱间隔各个区域,以自由和流动的方式连接起各个功能区。人们在建筑相会,以更直白的方式接近建筑本质。洽谈区交界处分割时间的长短,分享当下的故事,每个人匆忙又急促地追寻着时间,而忘记停下来等等快要消逝的“景”。
深洽区“在寂静如语的梦里,很久以前,如我记得方式”
人匆匆而来,却忘记驻足停留,深洽区以一种超凡脱俗又接近现实的风格,吸引着人们在此欣赏自然,彼此交流。与浅洽区相比,深洽区长方桌和半弧形沙发的布局,仿佛把家里的舒适感与安定感延伸至公共区域,让人暂时忘却烦恼,沉浸于建筑本身的美感。
过道“做个诗人不是我的雄心,它只不过是我独处的方式。”
艺术家费尔南多,创造了大混合的形式和内容,体现了一个宇宙中,风景,纹理和人类的处境是分层和互相联系的。美丽和复杂的雕塑艺术与设计对象相互纠缠。
浅洽区走廊,在光影体现最为丰富的造景处放置仿生元素的雕塑,使之与光影完美结合,成为整个空间与自然融合点,寂静的走廊,驻足观赏,引人深思。
88 户型软装丛林浅唱在夏天的那些房间里,你会向往和温馨的夜晚融合在一起,月光的清辉照在半开的百叶窗上,把迷人的黑白相见的影子一直投射到床脚。普鲁斯特《追忆似水年华》
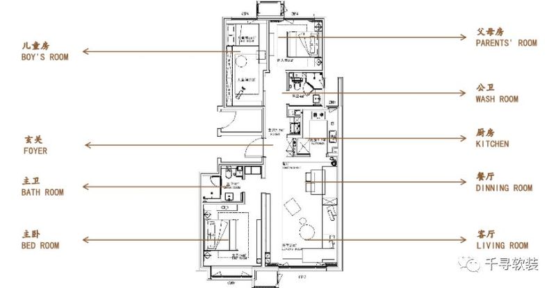
88 户型以年轻人为主要群体,在喧哗的城市,频繁快速的节奏,拥挤着,忙碌着,年轻人的生活缺少了一份静好时光。
运用清新爽快的颜色,舒适的去打造一个素雅沉静的空间。不经意间生活却又多了几分欢乐的新生喜悦。
在户型分区上,符合一家三口的生活需求:通过客厅进行家人之间的情感维系,建立儿童房和儿童兴趣室,为孩子提供一方天地,也给予夫妻一定的独立空间,将 88 平米的作用发挥到最大化。
在户型分区上,符合一家三口的生活需求:通过客厅进行家人之间的情感维系,建立儿童房和儿童兴趣室,为孩子提供一方天地,也给予夫妻一定的独立空间,将 88 平米的作用发挥到最大化。
设计方案的色彩搭配以灰色和白色为主,绿色和焦糖色作为协调,辅以金属色点缀。较低的色彩饱和度让人在视觉上十分舒适,仿佛置身于宁静的丛林当中,与世无争。
客厅硬装造型为灰色木饰面,增加整体性的同时,更呼应本次主题想表达的舒适生活氛围。墨绿色皮质沙发担任着客厅的主要角色,彰显出业主的独到眼光和个人品味。
餐厅在色调和材料的选用上,保持了空间的连贯性。餐桌以序列感为陈设方式,采用新颖的仿真果花艺体现乐活的生活方式。窗户采用落地玻璃窗,一下子营造出室内的明亮感。
卧室没有过多的修饰,仍以灰色和绿色为主要色彩。透过空间的虚实处理,模糊了功能区间的界限,形成了一个自由的空间,衬托出丰富多元的空间情感。
色彩丰富的女孩房,结合梦幻动物乐园的主题打造一个半娱乐卧室空间,这里既是孩子舒适睡眠的环境,也是温馨软糯的玩乐天堂。
115 户型软装北欧轻奢我们必须相爱的理由,是共饮人世间的河水,同食人世间的蔬菜,又在相同的太阳和月亮之下。文贞姬《爱的理由》
115 户型的目光转向更加成熟的中年人,以深沉的灰色为空间主色,满足其注重艺术和舒适的需求。独特的软装布局,客餐厅的延续,使空间稳定。
多功能的条柜置于墙面,抽象诙谐的挂画,使客厅多了一份书房的味道,低饱和度的红,跳跃点缀其中,打破空间的平静又不突兀,柔和的面料质感与空间配色是一种洒脱的呈现
金属的小人出现在空间每个角落,丰富空间的艺术氛围。大幅的墙面装置、抽象的大色块低调贯穿空间的行走动线,是一个艺术之家。
户型功能区的划分上,为了方便照顾小孩和兼顾老人的生活习惯,在设计规划上,都特意为其考虑了一些活动区域,建立了儿童房和父母房。
客厅以灰色为主色调,沙发中间增加嵌入式柜体,使客餐厅沙发相衔接,同时增加使用功能。
灯饰是客厅的点睛之笔,半圆弧形和无规则树状灯,都为空间增添不少个性。
卧室是与爱人独处的私密空间,一杯茶,一本书,一束花,通过简单的布置,就能让人放松,度过每一刻愉悦的时光。
父母房的整体基调以深色为主,在自然光下呈现微妙细腻变化,如同我们的生活,看似单一,内在的心情和感受却又是精彩而不同的。
在深度较大的空间采用造型感强的柜体,融入空间又不至于与其他柜体冲突,收纳孩子的日常用品,增强空间主题性与设计感。
时光匆匆流走,岁月若是沉闷或步履匆匆,请偶尔停下寻找心之所向。愿一个又一个的四季轮回过去的时候,你们能细数出无数精致微小的美好片段。
客服
消息
收藏
下载
最近
















































