查看完整案例

收藏

下载
【主题 1】微型·艺术馆现代都市中的艺术生活潮流更替不跌,但艺术永恒,甚至会日久弥新。喜好是内在是精神世界,艺术人生品味生活。橙赭色的单椅在整个灰白简约的客厅里显得格外耀眼,房间里充斥着古典的气息,实现了现代文化与古色天香的完美融合。阳光洒落在餐厅,米白色的餐椅在整个餐厅里显得格外温柔与静谧,放佛下一秒就可以遇见所有美好~传统印象里的大理石,本该厚重,而此处轻薄的大理石餐桌兼具小巧与庄重,与餐椅交相呼应,颇具简洁。客厅中的茶几采用了通透的玻璃材质,被光折射后若隐若现透彻明亮,宛若清潭里的水,亦柔亦坚。亚克力++ 灯带的组合下,多了几分灵动的气息,Sabine Marcelis 作为一名设计师她努力在对象和用户之间创造一种对话,好的设计、好的艺术,都会给不同的人带来不同的感受。艺术,可以赋予空间鲜活的生命力,它是慢的,精致的,打破常规的,因为时间赋予这里深厚的底蕴和纹理中的岁月痕迹。成都人的特质,只要是美的事物,都会享受停留,但家不仅仅是短暂停留的美,因艺术带来的生活灵感。日本艺术家稻叶智宏,在他看来艺术的其中一种方式是帮助观众在“丰富的时间”去幻想眼睛看不到的东西。因此,他总是追求能激发人们想象力的人物。Macarena Ruiz-Tagle 用丙烯酸和水彩纸创作。随着它们像隧道一样的深色中心,让我们沉浸在这些色彩缤纷的世界里。当色相从中间向外辐射,向纸的边缘发光时,色相场似乎就 是这些移动和振动的光环。设计师在整个空间软装的设计上运用暗石色和浅灰色作为主体色调,灰色,给人以“高级”的感觉,常被人称为“高级灰”。搭配橙赭色、奶油粉,重新组合碰撞出别样的“火花”。简约沉稳的设计与色彩让形色内敛,却又使得心灵得到了释放,唤醒内心深处的静谧。梦幻与童真,是孩子独享的。童房的设计兼顾了简洁与梦幻并存,为孩子最大限度的保留了一份属于自己的童真。艺术来源于生活,亦必将归于生活。把博物馆开到家里,将艺术品列在面前。这里是家,更像是一处艺术展。让艺术品重归于我们的生活,释放出艺术该有的样子。【主题 2】浮生若梦·梦隐山林念心静 一念浮华,在现实生活中打造归隐山居,构建一处暂避浮躁喧嚣,净化心灵之地。于静谧世界里寻份悠然自得,世人为荣利缠缚,动曰尘世苦海,不知云白山青,川行石立,花迎鸟笑,谷笑樵讴,世亦不尘、海亦不苦、彼自尘苦其心尔。与其每天期待假期游山玩水,不如就把山水放在家里,随时随地,享受山水之情。以智利复活岛巨人石阵为灵感,设计师将历史与人文再次分解、重构,不断地阐述着属于人类独有的创造力。质朴的再创作手法完美还原了复活岛上的文化气息,质感于空间完美演绎,于挂画创造意境,赋予空间独特的艺术氛围。建筑承载着一座城市的记忆,而室内空间是建筑生命力的延伸!
135㎡户型餐厅
135㎡户型客厅
135㎡户型客厅
135㎡户型客厅沙发细节图
135㎡户型餐厅
135㎡户型餐厅
135㎡户型书房
135㎡户型书房
135㎡户型书房
135㎡户型主卧
135㎡户型主卧
135㎡户型主卧
135㎡户型主卧细节图
135㎡户型主卧
135㎡户型图
190㎡户型客厅
190㎡户型客厅
190㎡户型客厅
190㎡户型客厅
190㎡户型客厅茶几细节图
190㎡户型客厅
190㎡户型客厅
190㎡户型餐厅
190㎡户型细节图
190㎡户型餐桌细节图
190㎡户型书房
190㎡户型书房细节图
190㎡户型书房细节图
190㎡户型卧室
190㎡户型卧室
190㎡户型卧室细节图
190㎡户型儿童房
190㎡户型儿童房
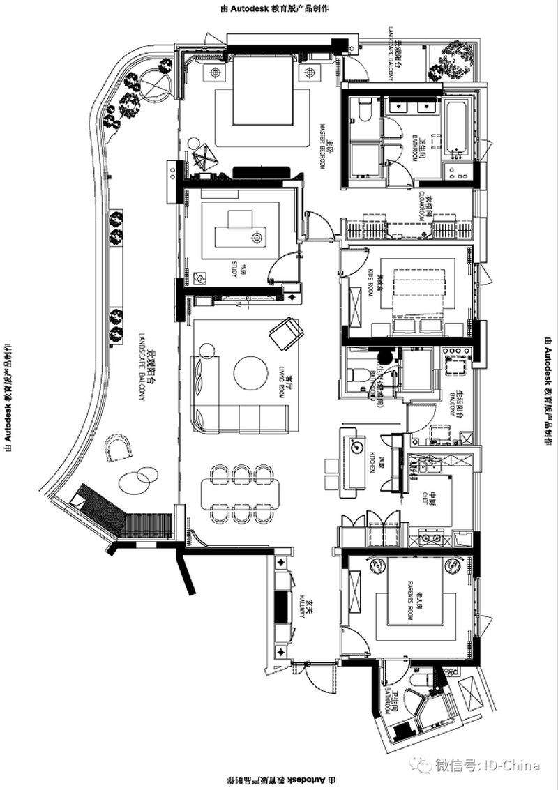
190㎡户型图
客服
消息
收藏
下载
最近




































