查看完整案例


收藏

下载
设计师:刘廷
所在单位:广州华浔品味装饰集团贵阳公司
设计时间:2018 年 6 月
项目地址:贵阳市观山湖区
项目面积:420 平米
设计风格:现代轻奢
设计费:200 元/平米
总造价:300 万
主要用材:大理石,木饰面,布艺,皮革,艺术涂料,金属,实木地板。
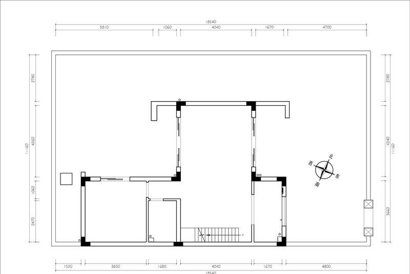
一层原始结构图。客厅处中空到三楼,最高点 9110.最低点 8080.原结构户型门厅过于小,楼梯窄,高。客厅布置不合理,餐厅功能混乱。卫生间无通风,采光。东南面及西南面采光较差。且两侧离邻居很近隐私比较差。整体方向东北及西北面采光及视线较好。尤其西北面视线比较通透。
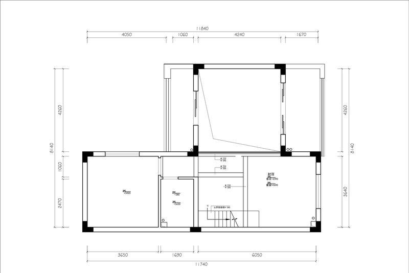
二层卫生间没有通风采光,两处中空位置使得房间只有一个,客厅左右两侧阳台无法进入,形同虚设,无法正常使用。往三层楼梯井过小,使得楼梯窄,高。
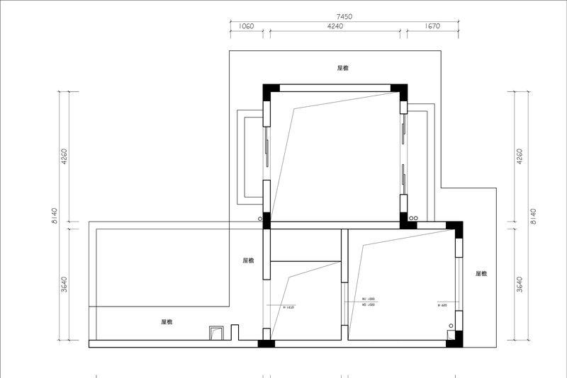
三楼客厅正上方为斜顶,最低点 2450,使得整个空间较矮,舒适度较低。两处中空占用有效使用面积。唯一有效使用空间仅存露台。
地下室功能规划图。整套房子西南及东南面无法得到改造,使得整套房子使用面积较小,业主希望有一个家庭,亲人,朋友聚会娱乐空间。如在原始三层空间完成此功能会影响正常生活需求功能。因此设计师大胆开挖地下室。地下室设计酒窖,杂物间及影音室。满足业主藏酒,储物,观影,K 歌爱好。
一层功能完全被设计师颠覆。卫生间调整至原有后花园位置,在原后花园与客房处预留采光井解决卫生间采光及通风问题。厨房调整至原客房位置,使得厨房面积比原有厨房增大一倍,中厨和西厨功能同时满足。原有客厅处集合了过厅功能,设计师在此区域大胆设计成多功能空间,集茶室,西餐厅,过厅为一体。此空间的采光,通风,观景功能十分完美。原有厨房位置设计师改造成门厅位置,缩短花园进入室内距离。客厅则改到原有花园处,整个使用面积区域这个位置长度及宽度最大,使得客厅大气。老人房则改到西北面处,次处观景,视野,采光,通风能完全满足老人居住要求,同时此房间离卫生间最近,方便老人如厕。西北面设计师规划了一个棋牌室,此面视野,通风采光较好,使得娱乐过程中有舒适心情。整个西北面花园设计占用 1/3 作为室内空间。2/3 空间设计师借鉴吊脚楼设计思路,利用结构柱支撑,保留一楼花园面积,同时增加二楼室内使用面积。考虑到此房居住人口较多设计师在上下楼交通枢纽上设计了电梯及楼梯双重交通工具。增加了通过率。
二层设计师规划了两个套房,集卧室,书房,卫生间一体。满足业主两个孩子休息,学习,收纳,活动,洗簌,休闲,展示功能。西北面采用大玻璃设计手法,确保通风,采光及视线完美。因业主亲人较多,相对较暗的空间设计师设计成客房,满足客人居住需求。
西南,东北面设计了露天阳台,让室内及室外互动得到满足。房屋左右两侧均有良好通风采光进入室内。西北面采用大玻璃设计,让通风,采光,充分得到进入,且因此方向视野最好,客户在休闲娱乐工作时能调节心情,观望外景。
影视厅结合酒窖,墙面大量使用硬包设计,保证隔音效果。顶面采用艺术涂料设计,使得空间声学要求得到满足。家庭影视厅功能集影院模式及 KTV 模式一体。在墙面顶面地面材质处理上,设计师严格按照不同声学场景使用材质。
影视厅结合酒窖处设计了吧台,娱乐喝酒时能有空间满足。墙面异形灯槽设计让空间显得更现代化,科技化。
酒窖设计不仅满足了藏酒展示功能,还存托出业主品味,玻璃门及灯槽设计,让展示效果更佳。
餐厅及早餐厅及西厨结合,整体设计黑白灰结合黑胡桃饰面板。地面灰色大理石,顶面乳胶漆刷白,西厨墙面六角砖设计,具备个性化,酒柜设计考虑为灰色水曲柳饰面板设计。
餐厅及早餐厅及西厨结合,整体设计黑白灰结合黑胡桃饰面板。地面灰色大理石,顶面乳胶漆刷白,西厨墙面六角砖设计,具备个性化,酒柜设计考虑为灰色水曲柳饰面板设计。厨房橱柜黑色烤漆工艺结合石英石搭配。
中厨橱柜设计为黑色烤漆工艺结合石英石台面,墙面白色大理石提升空间亮度。地面与餐厅一直灰色大理石。顶面抗油污乳胶漆刷白。吊柜下方设计灯槽,即解决照明同时又提升空间档次。整个空间低调奢华有内涵既简洁。
客厅采用无主灯,无灯槽设计。方便后期卫生处理。灯槽容易积灰,蚊虫。主灯难以清理。沙发设计黑色皮革。赖磨,赖脏。电视墙大理石,显得低调大气简洁。地面大理石采用 1200600 结合 300600,600600 拼接。放弃传统波导线设计思路。地面一色多规格大理石铺贴,具备个性化。墙面采用艺术涂料设计,让墙面肌理感增强。赖磨,易清洗。
客厅采用无主灯,无灯槽设计。方便后期卫生处理。灯槽容易积灰,蚊虫。主灯难以清理。沙发设计黑色皮革。赖磨,赖脏。电视墙大理石,显得低调大气简洁。地面大理石采用 1200600 结合 300600,600600 拼接。放弃传统波导线设计思路。地面一色多规格大理石铺贴,具备个性化。墙面采用艺术涂料设计,让墙面肌理感增强。赖磨,易清洗。
品茗区采用无灯槽设计,避免积灰,蚊虫等问题,地面 1200600,300600.600600 规格同色砖铺贴。室内大理石花台与室外金色呼应,搭配,让整个空间更加亲近自然。
品茗区采用无灯槽设计,避免积灰,蚊虫等问题,地面 1200600,300600.600600 规格同色砖铺贴。室内大理石花台与室外金色呼应,搭配,让整个空间更加亲近自然。线性灯的搭配让整个空间更具韵味。超大的条形茶桌不仅满足喝茶功能,还能当作餐桌使用。
花台与室外金色呼应,搭配,让整个空间更加亲近自然。线性灯的搭配让整个空间更具韵味。超大的条形茶桌不仅满足喝茶功能,还能当作餐桌使用。
棋牌室光源为点光源设计,让整个空间更加简洁,墙面木质背景加灯槽设计让整个空间不单调,更加自然。墙面使用艺术涂料,让墙面更加艺术,个性化。同时赖磨,环保,易擦洗。
棋牌室光源为点光源设计,让整个空间更加简洁,墙面木质背景加灯槽设计让整个空间不单调,更加自然。墙面使用艺术涂料,让墙面更加艺术,个性化。同时赖磨,环保,易擦洗。
一楼玄关入户设计了木质加灯槽端景,业主在忙碌一天后回家第一视角就是一幅美丽画面,让业主疲惫的身体及烦躁的心情可以得到释放。
一楼玄关入户设计了木质加灯槽端景,业主在忙碌一天后回家第一视角就是一幅美丽画面,让业主疲惫的身体及烦躁的心情可以得到释放。
男孩房采用无灯槽设计,床头及电视墙面硬包结合金色线条。地面浅胡桃色人字拼地板,个性,美观。墙面使用艺术涂料,增加肌理感,同时赖磨,易擦洗。
男孩房采用无灯槽设计,床头及电视墙面硬包结合金色线条。地面浅胡桃色人字拼地板,个性,美观。墙面使用艺术涂料,增加肌理感,同时赖磨,易擦洗。
男孩房书房采用无灯槽设计,人字拼地板个性,美观。墙面使用艺术涂料,增加肌理感,同时赖磨,易擦洗。书柜处采用点光源增强空间氛围。
男孩房书房采用无灯槽设计,人字拼地板个性,美观。墙面使用艺术涂料,增加肌理感,同时赖磨,易擦洗。书柜处采用点光源增强空间氛围。
女孩房采用反向灯槽设计,人字拼地板个性,美观。墙面使用艺术涂料,增加肌理感,同时赖磨,易擦洗。床头背景及电视背景采用时下流行的胭脂灰及粉灰色搭配。适合女孩个性空间。软装家私也采用公主粉,营造女性空间。
女孩房采用反向灯槽设计,人字拼地板个性,美观。墙面使用艺术涂料,增加肌理感,同时赖磨,易擦洗。床头背景及电视背景采用时下流行的胭脂灰及粉灰色搭配。适合女孩个性空间。软装家私也采用公主粉,营造女性空间。
女孩房书房采用无主灯设计,人字拼地板个性,美观。墙面使用艺术涂料,增加肌理感,同时赖磨,易擦洗。空间休闲,学习,展示,功能完全满足。
女孩房书房采用无主灯设计,人字拼地板个性,美观。墙面使用艺术涂料,增加肌理感,同时赖磨,易擦洗。空间休闲,学习,展示,功能完全满足。
客房相对光线较差,设计师运用多个点光源解决照明问题,同时营造空间氛围,墙面运用布艺硬包结合玫瑰金线条,简介又不失韵味。确保轻奢感觉又不显冰冷。客房设计师也设计了书桌,满足客人上网,写字,办公功能。
客房相对光线较差,设计师运用多个点光源解决照明问题,同时营造空间氛围,墙面运用布艺硬包结合玫瑰金线条,简介又不失韵味。确保轻奢感觉又不显冰冷。
主卧室床头背景及电视背景分别使用皮革硬包和布艺硬包使用,既使得墙面艺术,大气,简介,同时增加隔音效果。平顶加方向灯槽设计也增强了设计的个性。
主卧室床头背景及电视背景分别使用皮革硬包和布艺硬包使用,既使得墙面艺术,大气,简介,同时增加隔音效果。平顶加方向灯槽设计也增强了设计的个性。
三楼书房秉承了简洁大气的思路,书柜内侧灯管不仅解决照明问题同时也营造出文化氛围。墙面灰色墙布搭配挂画,让墙面干净,简洁,艺术。
三楼主人休闲厅墙面皮革硬包满墙,让整个空间不单调,同时没有采用复杂的造型。在结合简单的平顶,营造出简单,大气,低调的空间。墙面抽象的油画使得整个空架更具氛围。
三楼主卧衣帽间,衣柜采用开放式设计,更实用美观。地面简单的造型并不循规蹈矩又不失大气。方向灯槽让整个空间的光感,氛围更加舒适。
三楼主卧衣帽间,衣柜采用开放式设计,更实用美观。地面简单的造型并不循规蹈矩又不失大气。方向灯槽让整个空间的光感,氛围更加舒适。
三楼主人休闲厅墙面皮革硬包满墙,让整个空间不单调,同时没有采用复杂的造型。在结合简单的平顶,营造出简单,大气,低调的空间。墙面抽象的油画使得整个空架更具氛围。
三楼游戏空间夹在主人休闲厅及书房中间。整体风格搭配,协调。
三楼主卫生间较大,顶面设计师也采用平顶,在浴室柜上方加入灯槽,将墙面大理石艺术感充分诠释出来。墙面灰色白色大理石搭配使用,避免墙面单一化。浴缸为现场施工浴缸,加上底部灯光设计,避免业主撞到浴缸边缘。
三楼主卫生间较大,顶面设计师也采用平顶,在浴室柜上方加入灯槽,将墙面大理石艺术感充分诠释出来。墙面灰色白色大理石搭配使用,避免墙面单一化。浴缸为现场施工浴缸,加上底部灯光设计,避免业主撞到浴缸边缘。
三楼主卫生间较大,顶面设计师也采用平顶,在浴室柜上方加入灯槽,将墙面大理石艺术感充分诠释出来。墙面灰色白色大理石搭配使用,避免墙面单一化。浴缸为现场施工浴缸,加上底部灯光设计,避免业主撞到浴缸边缘。
客服
消息
收藏
下载
最近













































