查看完整案例


收藏

下载
NX 设计 | 与空间共听江的声息
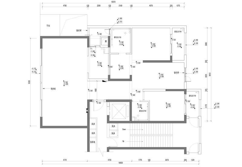
空间设计令人着迷的地方在于它对居住者故事和情感的无限还原。它如同一面镜子,映照出居住者的内心世界,当你凝视空间时,空间也在凝视你。本案之中,艺术如同自然平行的和谐体。设计师以细致入微的情感考量,合理解决层高不够的空间问题,深入居住的每个空间,将户外江景引入室内,在自然环境与栖居环境之间建立诗意的美学建构。
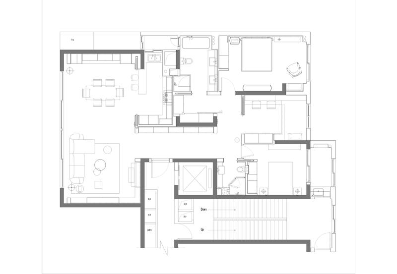
客厅▕ Living Room
自然与光,皆是造物者予人的馈赠,路易斯·康称之为一次奇迹的创造。
光线透过整面玻璃窗墙和轻舞飞扬的白色纱帘,流淌着进入室内,饮一杯咖啡或是对着这个城市的景色伸个懒腰,这都将是你站在窗边看到的清晨景色,也是业主每天生活的开始。
设计师将空间化为承载创作的生命体,一抹红色作为空间的帷幕,为感官打开一丝惊艳。嵌入式射灯承担起空间照明的重要性,隐去了大片空间内的纷繁复杂。
客厅一侧大面积的嵌入式书柜和钢琴,除了满足正常的小憩休闲之外,也为孩子提供了学习场所。书柜与沙发眉目传情,矮桌和地毯耳鬓厮磨,每一处小细节都是温馨与惬意的衍生物,培育出浪漫的生活情调。
餐厅▕ Dining Room
客厅与餐厅二合为一,建构出一个温馨互动的居住场景。在这里可以品味一屋四人三餐四季,也可以阅读休闲放松自我。
自然随性的餐厅,经典简约的桌椅及采用卷纸式堆叠的餐厅吊灯,多了唯美的点缀,丰富了视觉层次感。
吧台▕ Bar Counter 空间的舒适与硬朗,最大化的让感受回归细腻。在餐厅一侧,于浅色系空间中融入了红色吧椅和大量收纳空间,在带来视觉冲击的同时,又为这个角落的设计融入了些许温润平和。
厨房设置隐藏移门,可关可闭,让餐厅、厨房、客厅整体空间紧密凝聚,和窗外的江景一起融进生活。
过道▕Corridor 过道是各功能空间的外在视觉感延续,原木色元素随设计师的手笔蔓延至此间。入户过道一侧设计整体墙板置物柜,柜体下方以镜面手法,增加空间通透性及延伸感,从而展开一场对多维度生活场景的美妙叙述。
空间的真正意义在于于设计之中的灵活切换,通往主卧的过道中设置一扇超大移门,延伸了过道视线,让空间更通透。移门打开,主卧、孩子房成为一个整体,获得更多共享空间;移门关上,主卧、更衣室、主卫形成一个独立套间。
主卧▕ Living Room
在这里,回归最自然的样子,看似平淡无奇,却自在逍遥。
主卧的设计,不作浮华堆砌,只用干净简练的线条建立一个清简恍如只隐约存在留白的空间关系,辅以白色、米色和红色点缀。一道内置背景光带及从天而降的灯光艺术,任由朴素营造一个心灵可以完全放空的环境。
主卫▕Main Bathroom
精致实用的卫生间设计,不仅是视觉享受,还可以让人全身心地沉浸其中,体会放松身心的舒适。
在这个低调灰蓝色的空间里,充足的光线,让记忆的闸门悄悄的打开了,像执笔者轻写灵魂深处如梦似幻的思念。
女儿房▕Daughter’s Room
女儿房的设计保持空间纯净的本真,不假雕饰。明窗开阔,收纳自然变幻的光影。墙面收纳书籍的方式使得女儿稚嫩的开门背影,成为空间最生动活泼的装饰。
儿子房▕Son’sRoom
孩子的世界充满了无数种的可能性,所以在布局上采用动漫元素的软装点缀空间,带来视觉上的温暖守护,让阳光与色彩碰撞下,显得室内更加趣味和温馨。
林语堂曾说,最好的空间是这样的:我们居住其中,却感觉不到自然在哪里终了,艺术在哪里开始。
我们设计师的使命就是在城市的洪流中寻回那片精神归属之地,心灵栖居之所,演绎温润质朴的生活美学,诗意淋漓间意蕴悠长。
NX Design/Listen to the voice of the river with space
The fascinating part of the space design is its infinite restoration of the stories and emotions of the residents.
It is like a mirror, reflecting the inner world of the occupants. When you stare at the space, the space also stares at you.
In this case, art is like a natural parallel harmony. The designer reasonably solves the space problem of insufficient floor height with meticulous emotional considerations, goes deep into every living space, introduces the outdoor river view into the interior, and establishes a poetic aesthetic construction between the natural environment and the living environment.
Nature and light are gifts from the creator, and Louis Kahn called it a miracle creation.
The light flows through the entire glass wall and the white gauze curtains, flowing into the room, drinking a cup of coffee or stretching and admiring the view of the city, this will be what you see by the window. The early morning scenery is also the beginning of the owner’s daily life.
The designer turns the space into a living individual that carries creation, and a touch of red serves as the curtain of the space, opening a touch of surprise to the senses. Recessed spotlights assume the importance of space lighting and hide the complexity of large spaces.
The large built-in bookcase and piano on the side of the living room not only satisfy the normal rest, but also provide a place for children to learn. The bookcases and sofas, the low tables and rugs are close together. Every little detail is a derivative of warmth and comfort, which cultivates a romantic mood of life.
The living room and dining room are combined into one, constructing a warm and interactive living scene. Here you can taste the four seasons in a house for four people, three meals, or read and relax.
The natural and casual dining room, the classic and simple tables and chairs, decorated with paper roll-style ceiling lamp, add aesthetic embellishments and enrich the visual hierarchy.
The comfort and toughness of the space maximize the feeling of return to fineness. On the side of the restaurant, red bar chairs and a lot of storage space are incorporated into the light-colored space, which not only brings visual impact, but also incorporates a little warmth and peace into the design of this corner.
The kitchen is equipped with a hidden sliding door, so that the overall space of the dining room, kitchen, and living room is tightly cohesive, and it blends into life with the river view outside the window.
The aisle is the continuation of the external visual sense of each functional space, and the original wood color spreads here. An integral wall panel storage cabinet is designed on one side of the entrance hallway, and the mirror surface is used under the cabinet to increase the permeability and extension of the space, thus opening a wonderful narrative of the multi-dimensional life scene.
The real meaning of the space lies in the flexible switching in the design. An oversized sliding door is set in the aisle leading to the master bedroom, which extends the aisle sight and makes the space more transparent. When the sliding door is opened, the master bedroom and children’s room become a whole, gaining more shared space; when the sliding door is closed, the master bedroom, dressing room, and main bathroom form an independent suite.
Here, returning to the most natural look, seemingly plain, but at ease.
The design of the master bedroom does not make flashy piles, but only uses clean and concise lines to establish a clean and simple spatial relationship that is as if there is only a faint white space, supplemented by white, beige and red. A built-in background light belt and light art falling from ceiling, let the simplicity create an environment where the spirit can be completely relax.
The exquisite and practical bathroom design is not only visual enjoyment, but also allows people to immerse themselves in it and experience the comfort of relaxation.
In this low-key gray-blue space, ample light allowed the gate of memory to open quietly, like a writer writing dreamlike thoughts in the soul.
The design of the daughter’s room maintains the authenticity of the space. The bright window is wide, accommodating natural and changing light and shadow. The way the books are stored on the wall makes the daughter’s innocence becoming the most lovely decoration of the space.
The children’s world is full of countless possibilities, so the soft decoration of animation elements is used in the layout to decorate the space, bringing visual warmth and protection, making the interior more interesting and warm under the collision of sunlight and colors.
Lin Yutang once said that the best space is this: we live in it, but we don’t feel where nature ends and where art begins.
Our designer’s mission is to find the place where the spirit belongs in the torrent of the city, the place where the
客服
消息
收藏
下载
最近
































