查看完整案例


收藏

下载
英文名称:Australia water seepage green store
位置:澳大利亚
设计公司:Cavill Architects、Jasper Brown
摄影师:Christopher Frederick Jones
从早期的交谈中我们发现合适一次造福此地公众的机会。将新的功能植入原有的构筑物之中为我们提供了一次利用“剩余”空间的机会。围绕着主要的人行通道,一系列的房间和庭院形成有机的空间元素,为社区提供了一系列集会场所。项目对于两处已有构筑物进行了翻新和重新设计,只有一个新的室外房间、庭院和人行通道是新建的。增加的部分填补了两处已有构筑物之间的空隙,而这些建筑在我们看来正是需要回应的重要语境。这种介入像是一种折纸结构,根据闭合的需要可以折叠或者展开。新的室外房间的屋顶区别于典型商业建筑的四坡屋顶,与已有建筑的立面保持距离以示对历史的尊敬同时又起到连通的作用。
在原本的设计中,典型建筑的背面是次要立面,满足建筑的后勤需要。背面新加上的结构像书挡般挡在建筑的原有立面前,将非原有的新建部分隐藏起来。景观设施与建筑设计密不可分。景观建筑师协助我们创造尽可能大的景观空间。置于架子上的盆栽带给人不同视觉高度上的景观上的体验,像瀑布般垂下来的枝叶过滤了从闷热嘈杂的西面进来的光线与声音。由于预算紧张我们选择了经济的建造系统。纤维玻璃屋顶薄板材料的使用既节约了花费同时让光线透过照入室内。布里斯班正越来越多地收到天气事件的冲击,不可渗水的地面和建筑材料使洪水更加泛滥。我们通过对可渗水的绿色空间的倡导以及对优先建设可渗水的景观将如何让我们受惠于此的展示回应了这一问题。
澳大利亚可渗水绿色商店外部实景图
澳大利亚可渗水绿色商店内部实景图
澳大利亚可渗水绿色商店局部实景图
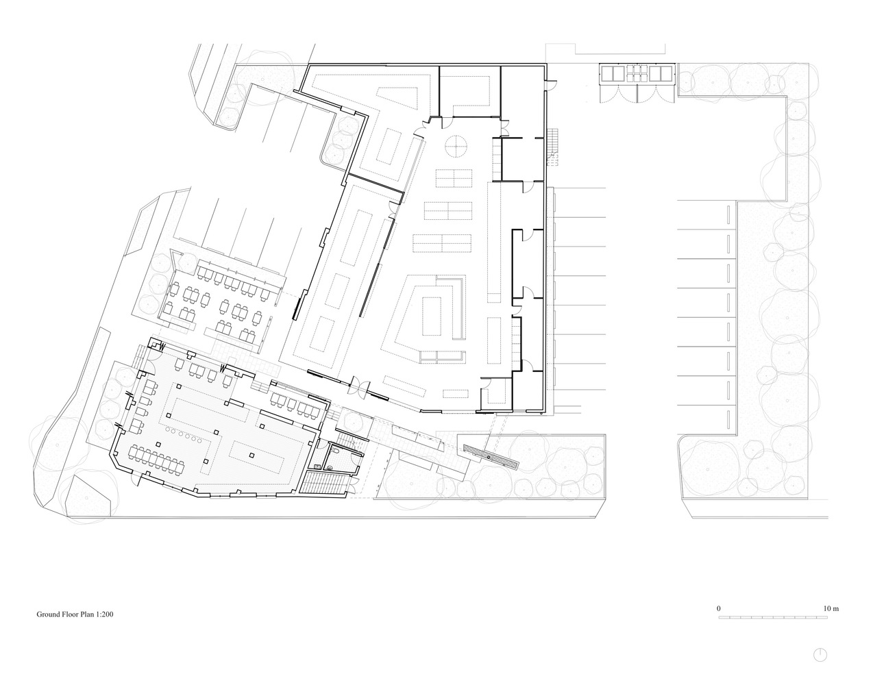
澳大利亚可渗水绿色商店平面图
客服
消息
收藏
下载
最近















