查看完整案例


收藏

下载
让城市生活更美好的艺术社区空间
原规划的社区商业依赖佛罗伦萨小镇的奥特莱斯周末消费经济,未能提升项目价值及活力,因此业主提出了超越专业范畴的设计要求:创造一种能保持持续的商业活力的社区空间?
建筑师从市场角度出发,从生活出发,将身边包括珠宝设计师、画家、声乐老师、健身教练等自由职业者工作室和居所合二为一的悄然兴起的趋势,提炼出一种新的低密度产品——“社墅”。创造了一种有别于低密度住宅区或商业街的半开放式社区空间,更强调街区驻留者的互动性,从而形成一种新的邻里关系,将广佛一群最具有传播力和影响力的精英们亲自打造的一个极具体验的艺术社区空间,引发一场触及钢筋混凝土灵魂深处的空间变革,将打造成为广佛最美的 Art House。
“社墅”单元面积约 130 平米,首层高 4.2 米直接临街,为工作室及展示厅,二层高 6 米为可自由改造的居所空间,改造后单元总面积可达 200 平米。二层特别设置了一个阳光中庭,提升了居住品质及私密性。让建筑更有创意性和趣味感给你一场宛如私人定制的空间想象,栋栋自是有天有地,与三五知己者一起,更能组团四合院落,与同通知己为邻是一种选择,一种人生的气度,有人买的是财富增值,买的是藏品,有人买的是身份,买的是圈层生活,无论你是画家、音乐家、设计师还是美食达人,这里既是你的私人画廊、私人工作室,私人藏馆,又是你的私人 PARTY 间,工作、休闲、聚餐、享受,随心所欲,让你的生活、事业共处一室、握手言和。
立面为混搭组合式,设计创造了数组意式风情立面单元和现代风格单元,通过色彩对比、坡屋面与平屋面对比、横向穿插及基座与上部体量对比等手法,确立了立面的节奏感,改善了高容积率造成的密集而单调的街道空间。在这里,没有商业街道的千篇一律,美第奇做到一栋一景,原生态体验欧洲人文风情,每一栋外观设计都能让人驻足寻味,创新不同流,风范更是不同流。
项目建成后效果颇为理想,创建了一个尺度亲切,融合意式风情同时不失现代感的艺术家小镇,在这里人们不但可以诗意地栖居,同时可以以一种从容的方式开展自己的自由职业。更超乎预期的是,项目不但为二期的高层公寓提供了一个很好的综合功能配套,也为整个奥特莱斯项目的外来游客提供了一个文化地标式的人文配套。
推广案名:第壹时区﹒美第奇
Extension case name: First time zone. Medici
标准案名:佛山市富罗恩斯广场
Standard case name: Foshan Furons square
开发商:佛山市富罗恩斯置业有限公司
Developers: Foshan Furons Property Co., Ltd.
施工图设计单位:广州珠江外资建筑设计院有限公司
Design unit of construction drawings: Guangzhou Zhujiang Foreign Capital Building Design Institute Co., Ltd.
施工单位:广东中城建设集团有限公司
Construction Company: Guangdong Zhongcheng Construction Group Co., Ltd.
总建筑面积:19548.05 平方米
Total Building Area: 19548.05m2
竣工时间:2017 年 7 月
Completion time: July 2017
第壹时区﹒美第奇--让城市生活更美好的艺术社区空间
项目局部实景图
项目局部实景图
项目局部实景图
项目局部实景图
项目局部实景图
项目局部实景图
项目局部实景图
项目局部实景图
项目局部实景图
项目局部实景图
项目局部实景图
项目局部实景图
项目局部实景图
项目局部实景图
项目局部实景图
项目局部实景图
项目局部实景图
项目局部实景图
项目局部实景图
项目局部实景图
项目局部实景图
项目局部实景图
项目局部实景图
原规划的社区商业依赖佛罗伦萨小镇的奥特莱斯周末消费经济,未能提升项目价值及活力,因此业主提出了超越专业范畴的设计要求:创造一种能保持持续的商业活力的社区空间?
项目总平面图
流线分析图
建筑师从市场角度出发,从生活出发,将身边包括珠宝设计师、画家、声乐老师、健身教练等自由职业者工作室和居所合二为一的悄然兴起的趋势,提炼出一种新的低密度产品——“社墅”。创造了一种有别于低密度住宅区或商业街的半开放式社区空间,更强调街区驻留者的互动性,从而形成一种新的邻里关系,将广佛一群最具有传播力和影响力的精英们亲自打造的一个极具体验的艺术社区空间,引发一场触及钢筋混凝土灵魂深处的空间变革,将打造成为广佛最美的 Art House。
新邻里关系
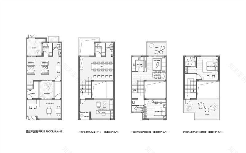
“社墅”单元面积约 130 平米,首层高 4.2 米直接临街,为工作室及展示厅,二层高 6 米为可自由改造的居所空间,改造后单元总面积可达 200 平米。二层特别设置了一个阳光中庭,提升了居住品质及私密性。让建筑更有创意性和趣味感给你一场宛如私人定制的空间想象,栋栋自是有天有地,与三五知己者一起,更能组团四合院落,与同通知己为邻是一种选择,一种人生的气度,有人买的是财富增值,买的是藏品,有人买的是身份,买的是圈层生活,无论你是画家、音乐家、设计师还是美食达人,这里既是你的私人画廊、私人工作室,私人藏馆,又是你的私人 PARTY 间,工作、休闲、聚餐、享受,随心所欲,让你的生活、事业共处一室、握手言和。
各层平面图
剖面空间图
立面设计图
立面为混搭组合式,设计创造了数组意式风情立面单元和现代风格单元,通过色彩对比、坡屋面与平屋面对比、横向穿插及基座与上部体量对比等手法,确立了立面的节奏感,改善了高容积率造成的密集而单调的街道空间。在这里,没有商业街道的千篇一律,美第奇做到一栋一景,原生态体验欧洲人文风情,每一栋外观设计都能让人驻足寻味,创新不同流,风范更是不同流。
项目效果图
项目效果图
项目建成后效果颇为理想,创建了一个尺度亲切,融合意式风情同时不失现代感的艺术家小镇,在这里人们不但可以诗意地栖居,同时可以以一种从容的方式开展自己的自由职业。更超乎预期的是,项目不但为二期的高层公寓提供了一个很好的综合功能配套,也为整个奥特莱斯项目的外来游客提供了一个文化地标式的人文配套。
项目实景图
客服
消息
收藏
下载
最近









































