知末
知末
创作上传
VIP
收藏下载
登录 | 注册有礼
知末案例   /   餐饮空间   /   中餐厅

宋东辉打造的中餐厅设计

2019/01/07 12:02:41
查看完整案例
微信扫一扫
收藏
下载
宋东辉打造的中餐厅设计-0
宋东辉打造的中餐厅设计-1
1F大厅远景
1F媚区一角
宋东辉打造的中餐厅设计-4
宋东辉打造的中餐厅设计-5
外门脸
1F媚区一角
宋东辉打造的中餐厅设计-8
宋东辉打造的中餐厅设计-9
宋东辉打造的中餐厅设计-10
1F门厅一角
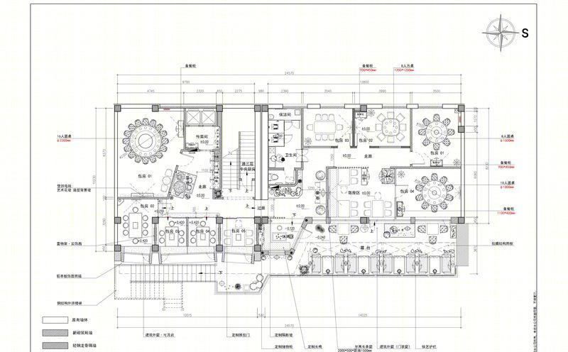
1层平面布置图
小景
宋东辉打造的中餐厅设计-14
宋东辉打造的中餐厅设计-15
1F大厅远景
1F媚区一角
宋东辉打造的中餐厅设计-18
宋东辉打造的中餐厅设计-19
外露台
1F大厅远景
宋东辉打造的中餐厅设计-22
2层平面布置图
宋东辉打造的中餐厅设计-24
2F过廊一角
宋东辉打造的中餐厅设计-26
2F过廊一角
宋东辉打造的中餐厅设计-28
楼梯间
宋东辉打造的中餐厅设计-30
1F大厅远景
宋东辉打造的中餐厅设计-32
1F大厅远景
宋东辉打造的中餐厅设计-34
1F大厅远景
宋东辉打造的中餐厅设计-36
1F大厅远景
宋东辉打造的中餐厅设计-38
小景
宋东辉打造的中餐厅设计-40
1F媚区
宋东辉打造的中餐厅设计-42
1F媚区
宋东辉打造的中餐厅设计-44
小景
宋东辉打造的中餐厅设计-46
2F散客区一角
宋东辉打造的中餐厅设计-48
2F过廊一角
宋东辉打造的中餐厅设计-50
2F过廊一角
宋东辉打造的中餐厅设计-52
2F过廊一角
宋东辉打造的中餐厅设计-54
小景
宋东辉打造的中餐厅设计-56
包房
宋东辉打造的中餐厅设计-58
包房
宋东辉打造的中餐厅设计-60
包房
宋东辉打造的中餐厅设计-62
露台
宋东辉打造的中餐厅设计-64
小景
宋东辉打造的中餐厅设计-66
小景
宋东辉打造的中餐厅设计-68
小景
宋东辉打造的中餐厅设计-70
1F吧台
宋东辉打造的中餐厅设计-72
小景
宋东辉打造的中餐厅设计-74
1F媚区
宋东辉打造的中餐厅设计-76
外门脸
宋东辉打造的中餐厅设计-78
外门脸
宋东辉打造的中餐厅设计-80
外门脸
宋东辉打造的中餐厅设计-82
小景
宋东辉打造的中餐厅设计-84
小景
南京喵熊网络科技有限公司 苏ICP备18050492号-4知末 © 2018—2020 . All photos and trademark graphics are copyrighted by their owners.增值电信业务经营许可证(ICP)苏B2-20201444苏公网安备 32011302321234号
客服
消息
收藏
下载
最近