查看完整案例

收藏

下载
收银水吧台 03
包间 02包间 04
公区 05包间 01包间 03包间 05
包间 06
设计背景
公区 06包间 07
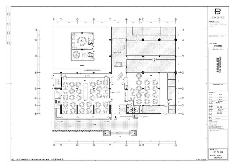
好友缘是广西知名的 20 年高档餐饮企业,企业在挖掘粤菜文化底蕴的同时保证以粤菜专家的最高要求。该项目位于南宁市地标性建筑----南宁国际会展中心,地理位置得天独厚。餐厅占地面积 10000 平方米,此次设计面积 2000 平方。
包间 08
设计说明
“原生,自然氛围的传达与延续。共生,自然与设计的对话。我们希望通过原生与共生来表现传统东方美学与当代艺术的碰撞融合。”公区 07
包间 09
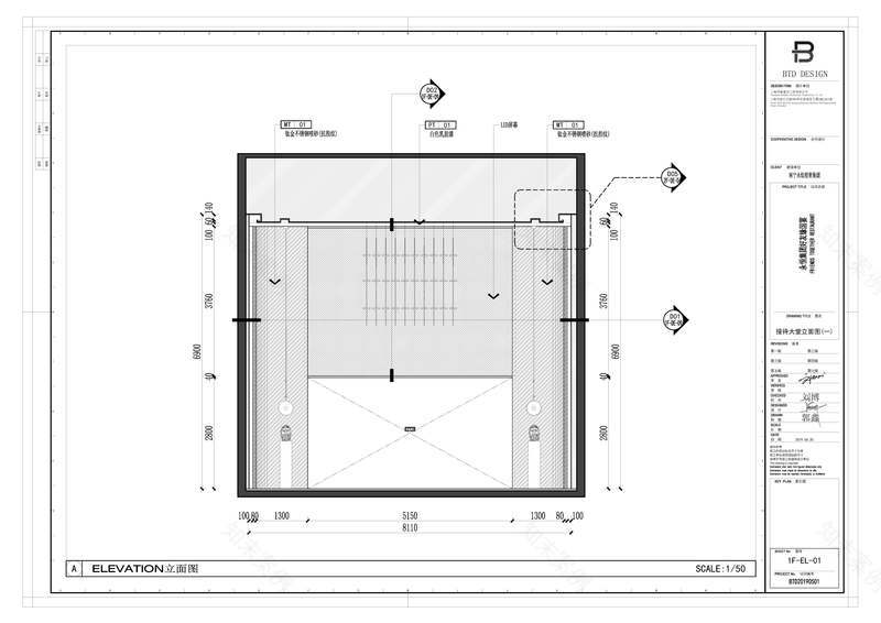
外立面灵感来源于赖特的流水别墅,竹影映清泉,泉水清如镜,水在石中绕,脱去一身尘嚣感受都市里的宁静。
空间布局上,汲取中国传统三进合院形制,进行解构重组,以半围合通透的空间形式层层递进,利用现代大面弧形曲面造型及金属格栅划分空间,视线隔而不分,使内外空间虚实相间过渡自然,赋予空间仪式感。
一层平面图
材质色彩上以黑、白、木、古铜金为主线,加入轻盈通透的水晶灯具与复古厚重的乱纹古铜金、自然粗犷的 45 度灰斜纹石材、质朴沉稳的木饰面形成鲜明对比,使得整个空间简约大气、沉稳雅致,多种材质相互碰撞映射,刚与柔、虚与实,巧妙的交替融合,赋予空间灵动趣味。
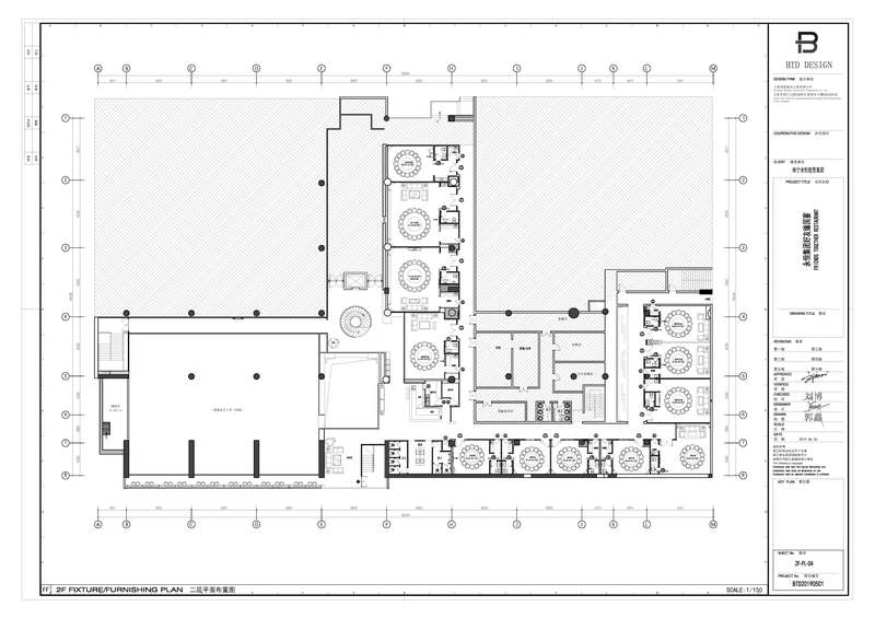
二层
艺术是因,设计是果,艺术因设计而新生。当翩翩雅致的东方元素不再执着于温润,也能夹杂现代格调,像似年少的叛逆和轻狂,新与旧,典与潮,传统取舍几经现代博弈,浇筑崭新的新中式风格。
旋转楼梯结合水晶装置吊灯,如同层层旋涡连接一、二层空间,山水画格栅屏风、当代雕塑、艺术挂画为空间注入色彩与趣味性,空间韵味悄然而生,在城市建筑的理性线条轮廓下,勾勒出喧嚣现代都市里的东方意境,向人们呈现一个美学力量与艺术精神间距的餐厅空间。
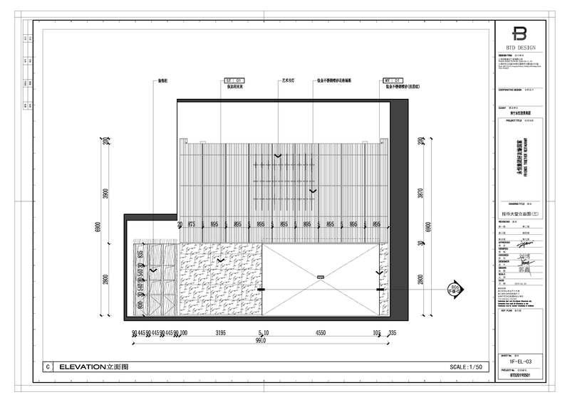
外立面
大堂立面图 01
洗手区 01
外立面 01
洗手区 02
收银水吧台 01
大堂立面图 02
外立面 02
收银水吧台 02
大堂立面 03
外立面 03
外立面 04
过道 01
外立面 05
外立面 06
大堂 01
过道 02大堂 02
大堂 03
大堂 04
大堂 05
大堂 06
大堂 07
大堂 08
大堂 09
大堂 10
楼梯 01
楼梯 02
楼梯 03
楼梯 04
楼梯 05
楼梯 06
楼梯 07
休息区 01
休息区 02
公区 01
公区 02
公区 03
客服
消息
收藏
下载
最近
























































