查看完整案例

收藏

下载
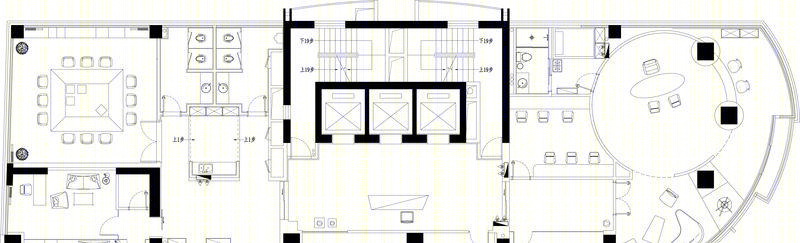
平面布置图
延续了前室的折叠光线手法,再普通的茶水间也变得艺术风发
当代钢筋混泥土城市的缩影版
董事长办公,奢侈品线条给硬朗空间摸上一笔妖娆的曲线
沿江视野,一览无余,座落沙发,品茶,是情绪的表现,是生活品质也可以是企业文化的提升。
总经理办公室,可办公可接待,又提升企业艺术气质!
接待室,中庸雅致,东方的香道、茶道;西方的红酒、雪茄;对地处广州这个国际化城市而言,一间两用!
现场实景照片!
现场实景照片!
现场实景照片!
现场实景照片!
光是地球生命的来源之一,光是人类生活的依据,光是人类认识外部世界的工具,光是信息的理想载体或传播媒质。空间是设计最初的表现;但是打造一个符合甲方功能性需求又能体现企业气质的空间,是需要通过方方面面的设计手法来完成的。比如,光、艺术品、对城市的理想、对企业的理解以及对人的理解!
折叠光线艺术,本属于暗厅前室,更加亮堂
客服
消息
收藏
下载
最近














