查看完整案例


收藏

下载
風格│低調奢華
2F 主臥浴室
建材│米色大理石、黑雲石、人造透光石、白蝶貝馬賽克、壁布、黑鏡、茶鏡、合成皮、鐵件、梧桐風化木皮
樓梯端景
設計概念
從一個雜草叢生,不堪使用的三層樓建築為起點,建構一個三代同堂的世外桃源。
3F 走道
本案由外到內,從基礎到外觀一直延申至室內,像雕塑般一層層重新建構,重新打造一處屬於家該擁有的美好。
很開心的是此案完全由業主授權自由發揮,我們大膽將原建築側底改變外貌,僅保留基礎,以水平垂直切割為主,勾
3F主臥室
勒出具現代簡潔風貌的建築風格。
延伸至室內,因為屋主的嗜好使然,客廳的桌几採特別定製的泡茶桌,側邊加設給排水,方便屋主取用。室內音響設
3F 臥室 A
備及卡拉ok機,亦於裝修時一併考量進來,客餐廳間造價不斐的演奏型古典鋼琴,融入在低調奢華的空間裡,相得
益彰。
3F 臥室 B
循著美麗的旋轉樓梯往上,通往私密空間的通道,二及三樓各設置配有衛浴設備的主臥空間以及小孩房,書房及麻將。
間。完整空間滿足三代同堂的需求。
1F 平面圖
空氣中流動著迷人的樂曲
2F 平面圖
搭配醉人的紅酒香
親朋好友或三五好友
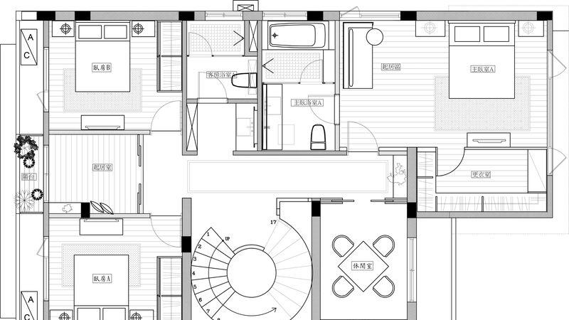
3F 平面圖
圍坐起居室泡茶 話家常
或磕瓜子 或高歌歡唱
生活好不愜意
窗外迷人的景致
老松悠悠 小橋流水聲
咖啡座椅上伴著老夫妻
一抹斜陽 影子越發越長
倒影在客廳內 那收藏的百萬鋼琴上
旋轉樓梯 扶搖直上
水晶吊燈如流瀑般
流曳了一地春光
各種水晶的 玻璃的
晶瑩剔透的在牆面上 展櫃裡
各自驕傲 也各自映照
家的美
即將伴隨古典鋼琴聲
翩然起舞
別墅外觀
別墅外觀
別墅外觀
別墅外觀
入口玄關
客廳。玄關。鋼琴區
客廳
客廳
餐廳。鋼琴區。客廳
客廳望向餐廳
客廳望向餐廳
餐廳望向客廳
樓梯及水晶燈飾
樓梯
2F 走道
2F 走道
2F 休閒空間
2F 主臥室
客服
消息
收藏
下载
最近





























