查看完整案例

收藏

下载
户型解析:
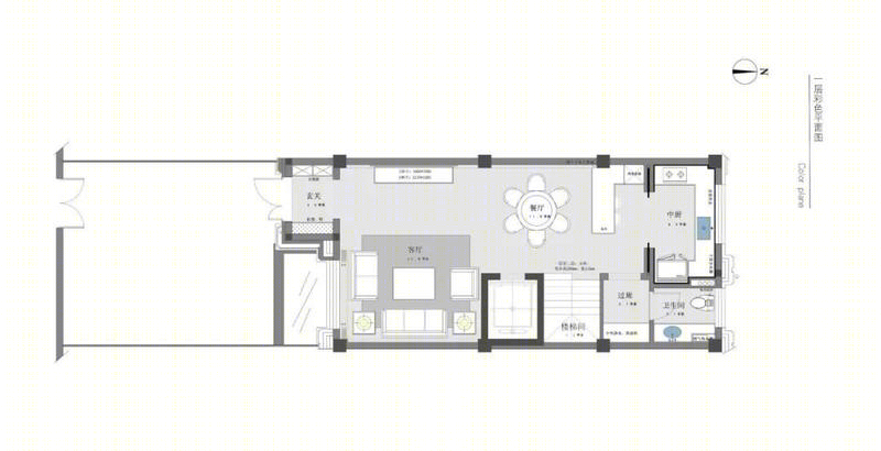
本案为一处五层的私人别墅,原始户型楼梯位置不够宽敞,并且没有电梯空间,通过我们的调整后楼梯空间及客厅空间看起来更加宽敞,并且有了西厨空间。三层整体做成敞开空间、嵌入式推拉门,最大限度增加了空间的通透感与开阔感。四层做成日式风格的茶室为整个居所带来了空灵惬意的氛围。
设计理念:
家是爱与情感的交融之所。这个私人别墅的设计,我们希望将奢侈的光留给业主,在余下的时光里,自然与光,陪伴家人一起慢慢成长。剪一段美好时光,让慢生活变得更加安逸充实。
整套案例以中国的古典文化为背景,洋溢着浓郁的东方特色。整屋大面积采用红棕色为整体色调,营造出一种静谧的氛围,各部分颜色自然过渡,协调统一,展示出阴阳调和之美。不是在以往的风格中置入代表新中式的装饰物件,而是将富有感情色彩的线条、创意、结构悄无声息的融为一体,最终会心一击达到新的场域力量。
色卡
彩色平面图
步入门厅,长廊闲情通幽,线性肌理下,是远山淡影、浓郁有致的美感。
傲世于喧嚣烟尘之外,醉心于视觉美感之中,在中国人心中,似乎没有哪一种色彩,可以像红色一样,嵌入人心,直击灵魂深处,它是一种生生不息的符号,象征着幸福与美好。炊烟袅袅,香壶一盏,一抹中国红,带你徜徉五千年中国文化长河.....
空间以大面积木质铺陈出沉稳优雅的气息,具有现代感的干净的条勾勒质感,凝结着人文风韵的艺术陈列,则将中式的风雅情致点染尽出。
隐逸者的乐趣,在于朗风明月间,青山流水间,物之阴翳间。漂浮在这幅画卷里,景之幽,境之雅,勾勒出美学的微意所在。
光,简单、纯粹、宜人。不同时段,不同光色,营造不同情绪,光成了建筑的曲调,四季变幻,朝起夕落,这一切,自然发生,却难能可贵,承载着这座房子里每个人心中温暖的故事与记忆。
明亮的自然光照、古雅别致的餐椅、富有表现力的镂刻拖拉门,在这一隅空间中体现了许多不同寻常的室内细节,且让每个元素和谐地兼容在一起。
杯盘兼具,空间诗意化的意象,层层晕染下,达到视觉层峦渐近的工笔,浓郁的色调让心中的浮躁亦可随风渐止。炉烟袅袅,煮茗溢香,人间清旷之乐,自有一番超然自若的心境。
吧台功能区、餐厅、客厅空间相连成一线,增加空间的互动。尊重空间的本质,真诚节制地选择朴质的材料,富有质感的理石作为吧台台面,干净利落的同时,让无形的设计延续空间精神。
色彩的升温让人心头涌起一股暖意,宁静悠然,安定入心。追求极致的品质细节的设计与把控,让客户从点滴之处感受到并为之向往的高品质生活方式。取自然之意,化艺术雅境,自然山水的肌理,与空间相得益彰,铺垫了一层素净的典雅气场。
亦在平凡中露着脱俗的雅,圆融古香中通达着柔情整体色调如一幅春风拂面的四月图,远观风雅,近看悠意,撩拨每个波澜不惊下的瞬间。
还原空间本质,减少不必要的物件,让生活和欲望变得简单。雕塑成为独特意境的点睛之笔,在玄关处的自然景象画面,自然的氛围与空间完美融合。
承续宋时诗意的米白色结合雅正内敛的红棕色,奠定了空间古雅的气质,从材质到艺术品陈列,却自然糅合了当代的格调气质与禅心妙韵。
一个舒适慵懒的空间,对於身处在空间之人,是最大限度的稳重感和包容感,唤起那份关于“家”的亲切与感动。用冬日暖阳的色彩缀于四周,在阳光下闪着温情的光芒,宛如一个“落日睡美人”,灼然而不耀眼。
草木自馨的江南印象。在这简净温和的氛围中,平朴自然的生活器物被巧然的安放着,一切就有了美意与惬意。汲取来自辽阔大地的美好事物,意为“万物由此而生”,共同营造一个情感与美感共存的“家”天地。
描绘和谐意境。从柜体收纳到追求艺术的自然、纯粹,灵动而优雅的铜质雕塑艺术品,完美解决功能和美观的平衡。
致力创造一个兼具人文、当代、艺术的和谐人居环境,从传统到当代,从光影营造到软装陈设,无一不追随着极简的本质,回归自然,回归本真。
行至起居室,岁月刻于门窗棂饰上,座椅、瓷具等在形制上采用古雅今情的表达,考量充分的美学性,细微的闲情逸趣被写入床头内,清雅山水画卷,镂空屏风,推开即梳妆,清隽别致间,渲染大隐于市的栖居生活。
此中若有眠,枕的应是月,盖的是满天星尘。设计的初衷,就是为业主寻一片属于自己的淡然与宁静。
设计基调是沉稳安逸,关注人与空间,人与材质和谐共处。通过东方宁静的气韵与精致的床品家饰香薰,营造东方古典艺术与当代美学融合的人居环境。“少则得,多则惑”的东方思辨哲学思想为内在气质,没有贴满材质的空间反而让心灵得到慰藉。
词人李清照曾说:“豆蔻连梢煎熟水,莫分茶。枕上诗书闲处好,门前风景雨来佳。” 斟茶入盏,水光摇曳,雾气氤氲,清香拂面,一盏好茶,一间雅致的茶室,可以为整个居所带来了空灵惬意的氛围。
赌书消得泼茶香,当时只道是寻常。东方禅意的茶室,表达生命的珍贵和奇迹般的生命力。
然自得的空间氛围中,散逸着浓郁的人文气息。精美的茶盏由此凸显出独到的艺术韵味,无用之美,在静寂中流淌。
客服
消息
收藏
下载
最近
























