查看完整案例


收藏

下载
New ArchitectureLiving Room 02
New ArchitectureLiving Room 03
New ArchitectureLiving Room 04
New ArchitectureLiving Room 06
New EntryLiving Room 08
Living Room 01Dining Room 01
Dining Room 02
Dining Room 04
Kitchen 02
Staircase
Staircase
Staircase
Staircase
Part 01
Sdudy Room 01
Sdudy Room 02
Bedroom A 02
Bedroom A 04
Bedroom A 05
Bedroom B 01
Bathroom 01
Bathroom 02
Yard 01
Yard 03
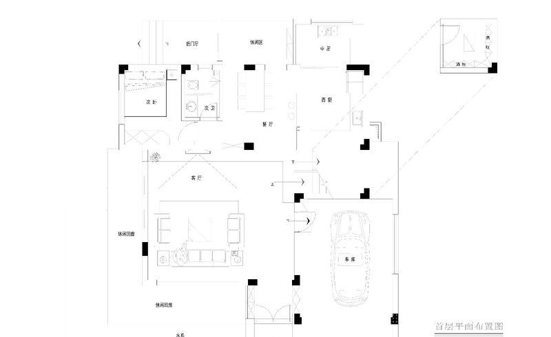
一层平面图
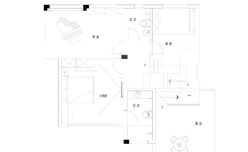
二层平面图
三层平面图
我们认为:简单到极致就是精致;低调到本质就是奢华;
每一个建筑&空间都有它本身的气质和生命,改造施工过程发掘空间的本质才是一个设计者真正应该去做的。《NO.93#别墅改造》--住宅建筑设计师:何伟设计机构:Welland Design | 纬兰国际室内建筑设计(北京)设计团队:卢辉,张志辉,周扬项目地点:中国,湖南,长沙设计空间:480 平方米主要材料:大理石、橡木、米色抛光砖、实木多层板、铝板、铁板其实在一开始接到业主委托的时候感觉很惊讶,因为很少能有业主花费几百上千万买一栋纯欧式别墅之后想彻底连建筑一起改造成纯现代风格的。我们在原建筑的基础上向车库一边外扩了 1 米,建筑后面厨房位置外扩了 2 米,并且在新扩的建筑结构上面加做了二、三层和露台。这样就增加了不少实际室内空间。外观上舍弃了原始建筑内部外部的所有欧式相关的构件和布局。重新做了入口,门头,阳台和水系。建筑外部采用白色防水涂料,局部用钢结构、铝板、木材和生锈的铁板打造了一个全新的外观,使它看起来焕然一新。建筑内部的室内设计以空间规划为首要原则,摒弃了一些不必要的繁琐的装饰性设计,一切以突出空间的原始功能需求为主。采用的材料都是平常随时随地都能买到的建材。整体以浅色涂料为主,局部使用大理石、木纹、米色瓷砖、不锈钢进行跳跃和软化空间。在一楼和楼梯间使用木纹包裹了整面墙面,一层的氛围被轻橡木和软米色地砖渲染的更柔和舒适。原窗户经过重新设计改造,扩大或者落地,尽可能多的让阳光投射进室内,同时也让大面积的室外景观融入到室内。庭院也进行了规划,重新填挖了水池,铺设了栈道,轻松暇意的烛光野餐给业主和朋友们提供了一处闲暇时的好去处。建筑入口处采用的生锈的铁板,这种材料会随着时间产生微妙的变化,变得更有格调,完美的呈现了新旧建筑材料与新旧艺术审美的融合。也更符合 Welland Design 公司的用户体验价值观。每一所房子都是根据客户的需求与想象力而量身定制的,不论是结构构成的建筑还是材料构成的室内设计,独特的构思加上能“讲故事”的新材料才能真正让空间“震荡”。就像业主本人说的,这个空间融入了个人真实的情绪和寄望。我们也是希望改造后的空间能和业主产生共鸣,传达出内心深处的一种真实的情感。
改造施工过程
改造施工过程
Before...
改造施工过程
After...
改造施工过程
改造施工过程
原始建筑外观右前侧角度
原始建筑外观正面角度
原始建筑外观车库角度
原始建筑外观后院角度
客服
消息
收藏
下载
最近
















































