查看完整案例

收藏

下载
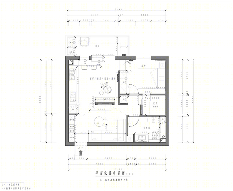
在住宅结构本身就不太大的情况下,结合业主的单身住宅需求,对前期的两居室进行了改造。
希望通过空间的延展以及空间的不同感受来带给入住的人不同的空间体验。
客餐厅厨房融合为一体拉大视觉与体验感受。进门设置了衣柜和展示区满足日常生活的储物功能;通过厨房和阳台的玻璃希望能把阳光、景观引入室内。
室内分别设置了三块透明钢化玻璃意义在于,能使开放的空间能有一定的隐私也能够有一定的延伸的趣味性。
卧室采用床背板一体设计,颜色区分比例为床头背景墙的黄金分割。
卫生间采用悬挂的浴室柜和镜子,淋浴区的壁龛采用解构主义手法,做不对称的空间分割储物。
室内灯光设计从进门鞋柜一直蔓延至主卧。整体灯光采用隐藏灯光为主,大面积的衬托立面空间层次。
客服
消息
收藏
下载
最近










