查看完整案例


收藏

下载
大堂吧 2
二楼全日餐厅
总统套房 2
行政酒廊 1
酒店大堂 1
宴会厅-- 前厅
宴会厅
中餐厅
中餐厅-- 包房
电梯轿厢
总统套房 3
行政酒廊 2
3P-布局
一楼电梯前厅
标准间
1P-布局
项目说明:
项目名称:梅州豪生国际大酒店
酒店大堂 2
2P-布局
设计单位:深圳市洪涛装饰股份有限公司设计二所
主持设计师:张梁
总统套房 1
参与设计师:赵勇、蒲佳
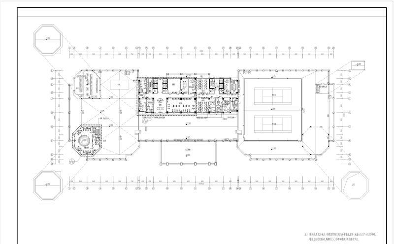
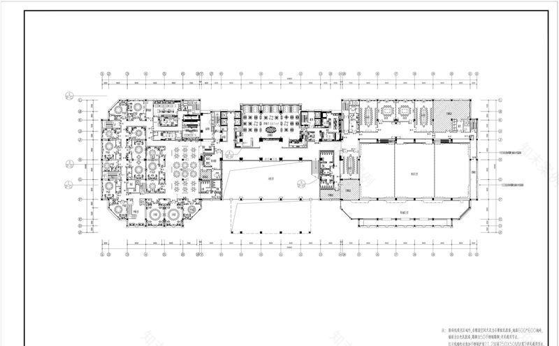
项目面积:40000㎡
大堂吧 1
主要材料:米黄石材、发光云石、皮革软包、镂空石雕
项目地点:广东省梅州市梅县新县城府前大道
竣工时间:2014 年
设计说明:我们将梅州豪生国际大酒店规划为五星高端商务度假酒店,室内设计风格定位于现代中式风格。以现代简约的设计手法,在布局上注重轴线对称庄重大气、满足宾客的功能要求。在空间上使用米黄石材、发光云石、皮革软包、镂空石雕等高档装饰材料。营造出一个豪华、大气、尊贵、典雅的五星级酒店空间。空间塑造:空间中采用大体快的形体穿插,讲究空间形体对应呼应关系。避免繁琐的中式装饰细节,力图通过概括提炼过的中式装饰符号、空间界面造型、材料搭配运用,体现现代中式意蕴。装饰元素:在具体装饰细节上,我们把客家建筑装饰特有元素及地域文化特点概括提炼成简洁的图案,运用到整个酒店的各个装饰空间,使梅州豪生国际大酒店室内设计的主题性更强。另外,大堂环廊的拦河、大堂两侧主背景的浮雕壁画、以及其他空间的软装饰等细节也将呼应这一主题,使室内设计在现代中式风格的统一下又有装饰上的亮点。主案设计师简历:姓 名:张梁
出生年月:1968 年 02 月
职 称:高级室内建筑师、工艺美术师
职 务:设计院副院长
学 历:毕业于中央工艺美术学院(现清华工美)荣誉称号:IAID 最具影响力的中青年设计师
2007 年当选美国室内设计中文版年度封面人物
工作经验:1999 年至今年在深圳市洪涛装饰股份有限公司工作。2000 年-2015 年由其担任设计师完成的主要工程有:2000 年主持北京世界金融中心、北京饭店现场设计项目。
2001 年主持人民大会堂国宴厅、甘肃厅现场设计项目。
2002 年主持钓鱼台国宾馆、北京中联部现场设计项目。
2003 年主持北京武警水电指挥中心、北京新华人寿总部大厦设计项目。
2004 年主持内蒙古新城国宾馆总统楼、北京成中大厦
2005 年主持内蒙古政府礼堂、广州白云国际会议中心五星级酒店、深圳凯宾斯基酒店设计项目。
2006 年主持江苏广电城、深圳大亚湾核电站五星级专家会所、深圳华为总栽办公楼设计项目。
2007 年中央电视台 TVCC 大剧院现场设计、葫芦岛洲际酒店总统楼及套房设计项目。
2008 年主持千岛湖度假酒店及别墅,会所及样计项目。
2009 年主持广西南临国际大厦、江苏凤凰台酒店、江苏南京金桥大酒店设计项目。
2010 年主持湖南豪生大酒店、深圳希尔顿大酒店现场设计、内蒙泰华国际大酒店设计项目。
2011 年主持深圳证券交易大厦、库哈斯作品深化设计、三亚美丽之冠酒店公寓设计项目。
2012 年主持海南汇通大酒店、广东梅州豪生大酒店、贵州六盘水锦江国际大酒店、苏州凤凰国际书城设计项目。
2013 年主持深圳周大福集团大厦,南通滨江洲际酒店 1 号楼,番禺天河城商业项目。
2014 年主持深圳海岸环庆大厦室内装饰装修工程设计、南通洲际酒店 4 号楼、南京大报恩寺项目
2015 年主持深圳华润西涌城市综合体现场设计项目,江苏如皋商业银行办公楼装饰工程设计、华为南方 E2C 工厂项目、深圳华为电气生产园
2016 年主持杭州 G20 峰会主持现场设计项目,深圳顺丰总部大楼设计项目。
获奖情况:2003 年内蒙古新城国宾馆总统楼设计方案荣获第五届室内设计双年展优秀奖。
2005 年获评为 IAID 最具影响力的中青年设计师。
2006 年济南国际机场荣获“箭牌杯”海峡两岸四地室内设计大赛一等奖
酒店夜景外观
客服
消息
收藏
下载
最近























