查看完整案例


收藏

下载
设计理念:
围绕“公共场所母婴室样板房设计”竞赛主题。设计内容分为 3A 级样板房、4A 级样板房、5A 级样板房,各星级的设计风格和色彩协调统一。融入创新理念,使用新材料新工艺,体现人性化及安全环保意识,营造室内公共空间中最佳母婴室环境氛围。
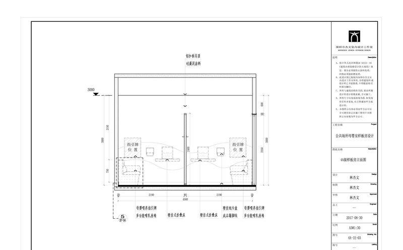
4A 级样板房-- 立面图 02
一、风格表现:现代、简约、实用、创新(材料及表现形式)
二、设计手法:和谐、对称、相互间呼应、局部点缀使其富有层次感、空间可延续性。
4A 级样板房-- 立面图 03
三、色彩灯光:色彩表现明快清新、过度自然,营造轻松干净整洁的色彩氛围;灯光选用中性光源色温在 4000K 左右,设计分布合理,功率大小适中,避免过亮过暗的光源。哺乳间配备壁灯作为辅助照明,造型美观同时有点缀作用。
四、人性化设计:无论是洗手台、护理台和哺乳座椅,甚至小到一些洁具用品五金均要符合人体工程学设计要求;根据各级要求及空间大小,在功能满足用户需求上,设计增添加一些更贴心实用功能如:隐藏式的垃圾篓(使环境干净整洁),可放一次性护理垫的抽屉、可放置小物品的哺乳专用座椅、手烘干机、全身镜等。
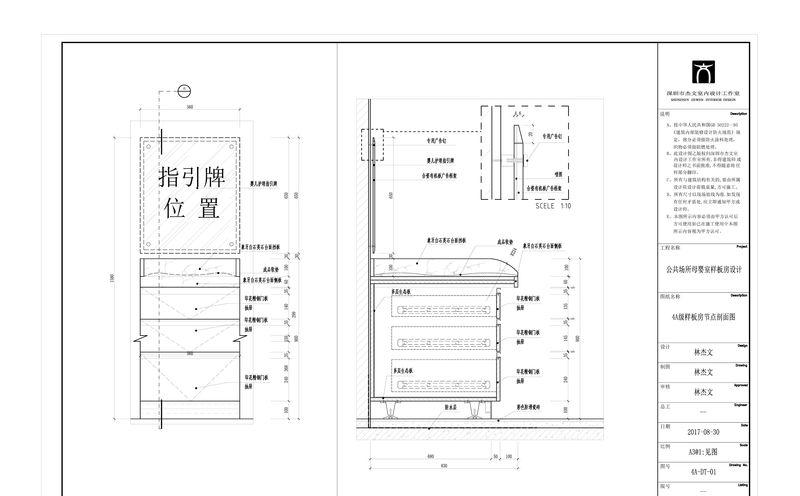
4A 级样板房-- 节点剖面 01
五、材料运用:遵循现行关于室内设计和室内建筑装饰工程的规范、标准文件精神;减少现场施工程序,提倡节能环保为初衷,本设计结合施工经验及市场材料的了解,选用近些年新兴的环保科技材料,这些材料具备可工厂定制加工,现场直接安装、灵活性强、减少现场施工环节、成本低、安装快捷,可复制性强等特点。
以下主要材料及特点说明:4A 级样板房-- 节点剖面 02
1、硅藻泥——是由湖底的泥沙直接提取,生产工序简单更环保,施工便捷无气味等特性。主要运用于墙面粉刷代替墙面乳胶漆及腻子粉;
2,铝扣板天花——可厂家订购、减少现场施工环节、安装简便、经济实惠便于维护更换等主要特性。主要运用部位天花吊顶;
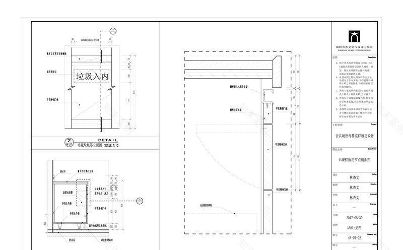
4A 级样板房-- 节点剖面 03
3、铝合金隔断——厂家生产订购、减少现场施工环节、具有外观美、安装简便等特点。主要运用于内墙隔断,代替厚重工序复杂的隔墙;
4,生态板——E0 级具有无污染适用于婴儿孕妇房间健康首选板。主要用于隔断搭配及家私家具、柜体等部位;
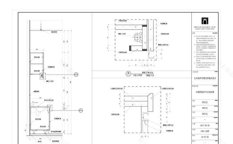
4A 级样板房-- 节点剖面 04
5、艺术玻璃——更具有可塑性佳,图案定做个性又时尚、现场安装简便的材料之一。主要用于与隔断的搭配使用;
6,彩色防滑地砖——厂家订购,色彩丰富、经济环保耐用,无任何气味,低放射性物质等优点。主要用于地面铺贴。
5A 样板房-- 施工图封面
设计依据:中华人民共和国建设部、公安部及省、市主管单位颁发的现行设计规范、规定及技术措施。
《建筑制图标准》GB/T 50105.1001
5A 级样板房-- 图纸目录
《建筑设计防火规范》GB 50016-2006
《高层民用建筑设计防火规范》GB 50045-95(2005 修正版)5A 级样板房-- 设计理念概述《建筑内部装修设计防火规范》GB 50222-95(2001 年修订版)
《建筑装饰装修工程质量验收规范》GB 50210-20015A 级样板房-- 施工图设计说明(一)《民用建筑工程室内环境污染控制规范》GB 50325-2001(2006 年修订版)
《民用建筑设计通则》GB 50325-20055A 级样板房-- 施工图设计说明(二)《民用建筑设计技术措施》 009
《建筑防水工程技术规程》DBJ5-19-975A 级样板房-- 施工图设计说明(三)《建筑玻璃应用技术规程》JGJ113-2009
《金属与石材幕墙工程技术规范》JGJ133-2001
5A 级样板房-- 材料设备表
3A 级样板房设计概要:5A 级样板房-- 平面布置图 01
3A 级(8—10 平方)使用人数,母、婴、随从人员一至二人。满足室内母婴活动私密性、安全性、舒适性的基本需求;提供母婴喂养基本知识指引(设置位置:护理台、哺乳间内)。
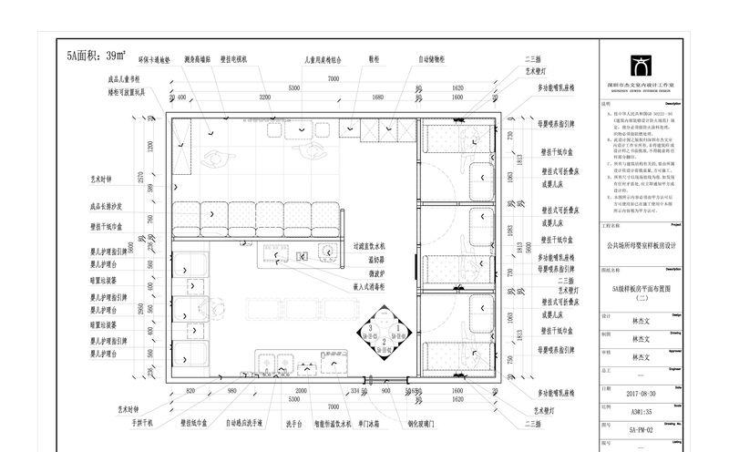
5A 级样板房-- 平面布置图 02
功能分区:干净的宝宝换洗区、整洁的饮水冲奶区、歇脚区及独立贴心的哺乳间。
设施设备:提供母婴活动的最基础设施和设备;婴儿护理台、壁挂干纸巾盒、暗藏式垃圾篓、智能恒温饮水机、洗手台、洗手液、自动烘干机、增设多功能哺乳座椅、休息座椅、带安全扣可折叠婴儿床(或普通婴儿床)。贴心升级、二三插座、大宝宝用可折叠座椅、一次性杯架、一次性护理垫、温奶器、全身卡通镜、挂衣架、壁挂时钟、空气香薰器等(详细数量见设施设备表)。建议有条件的地方设置独立挂式空调,独立提供宝宝妈妈一个合适的温度。
4A 级样板房设计概要:5A 级样板房-- 天花布置图
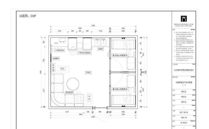
4A 级(20—25 平方)使用人数,母、婴各二人,随从人员二至四人。满足室内母婴活动私密性、安全性、舒适性的常规需求;提供母婴喂养与婴儿护理基本知识指引(设置位置:护理台、哺乳间内)。
功能分区:干净的宝宝换洗区、整洁的饮水冲奶区、歇脚区、衣物整理区、独立贴心的哺乳间及休息阅读区。
设施设备:提供母婴活动的常规设施、设备;婴儿护理台、壁挂干纸巾盒、暗藏式垃圾篓、智能恒温饮水机、洗手台、洗手液、自动烘干机、多功能哺乳座椅、休息座椅、带安全扣可折叠婴儿床(或普通婴儿床)、二三插座、一次性杯架、一次性护理垫、温奶器、全身卡通镜、挂衣架、壁挂时钟、书柜书桌、空气香薰器(详细数量见设施设备表)。建议有条件的地方设置独立挂式空调,独立提供宝宝妈妈一个合适的温度。
5A 级样板房-- 立面图 01
5A 级样板房设计概要:5A 级(30—40 平方)使用人数,母、婴各三人,随从人员三至六人。满足室内母婴活动私密性、安全性、舒适性的高端需求;提供母婴喂养与婴儿护理知识相关指引(设置位置:护理台、哺乳间内)。
功能分区:干净的宝宝换洗区、整洁的饮水区及冲奶区、歇脚区、衣物整理区、独立贴心的哺乳间、休息阅读区、舒适的亲子休息区及物品储存区。
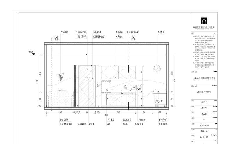
5A 级样板房-- 立面图 02
设施设备:提供母婴活动的高端设施、设备;婴儿护理台、壁挂干纸巾盒、暗藏式垃圾篓、智能恒温饮水机、洗手台、洗手液、自动烘干机、多功能哺乳座椅、休息座椅、带安全扣可折叠婴儿床(或普通婴儿床)、二三插座、一次性杯架、一次性护理垫、温奶器、全身卡通镜、挂衣架、壁挂时钟、书柜书桌、空气香薰器;
在 4A 级基础上增设:鞋柜、儿童座椅组合、直饮水机、儿童区环保地垫。提供更高端设备:液晶壁挂电视机、单门冰箱、微波炉及消毒柜、电子自动储物柜。(详细数量见设施设备表)。
【基础设施设备升级:高敏感应水龙头、豪华温奶器、豪华多功能恒温饮水机、自动感应消毒液/洗手液。】建议有条件的地方设置独立挂式空调,独立提供宝宝妈妈一个合适的温度。
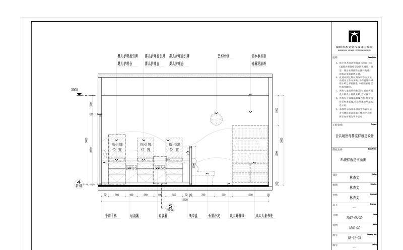
5A 级样板房-- 立面图 03
3A级样板房-效果图01
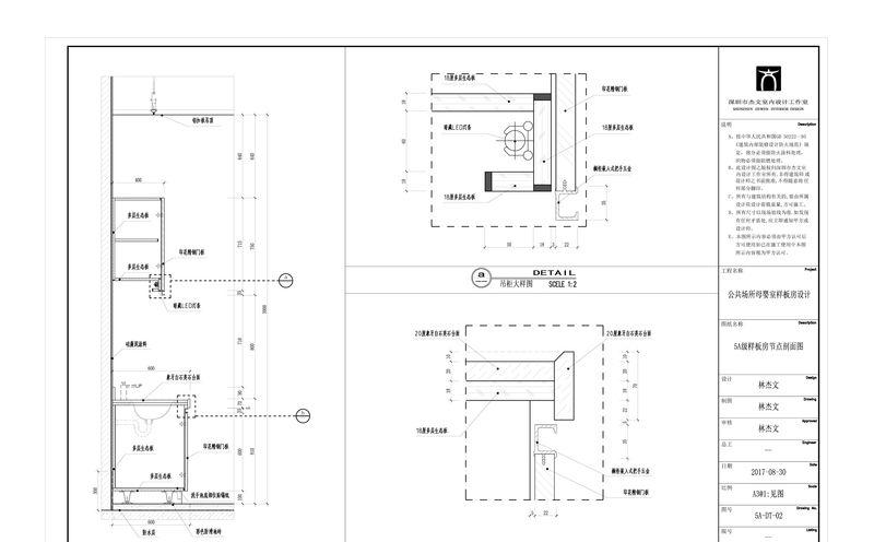
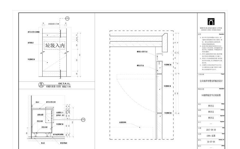
5A 级样板房-- 节点剖面 01
3A 级样板房-- 效果图 02
4A级样板房-效果图01
5A 级样板房-- 节点剖面 02
4A 级样板房-- 效果图 02
5A 级样板房-- 节点剖面 03
5A 级样板房-- 效果图 01
5A 级样板房-- 效果图 02
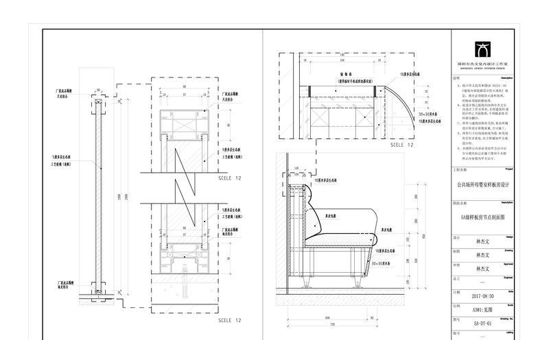
5A 级样板房-- 节点剖面 04
3A 级样板房-- 施工图封面
3A 级样板房-- 设计理念概述
3A级样板房-图纸目录
3A级样板房-施工图设计说明(一)
3A级样板房-施工图设计说明(二)
3A级样板房-施工图设计说明(三)
3A 级样板房-- 材料设备表
3A 级样板房-- 平面布置图 01
3A级样板房-平面布置图02
3A 级样板房-- 天花布置图
3A级样板房-立面图01
3A级样板房-立面图02
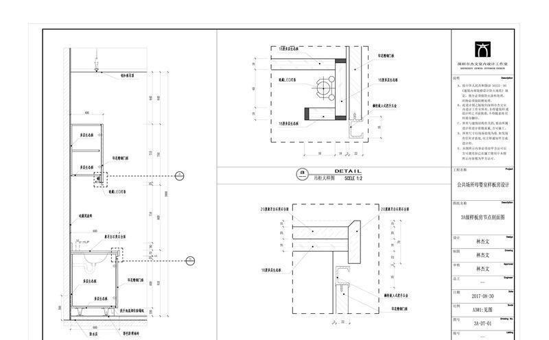
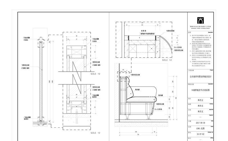
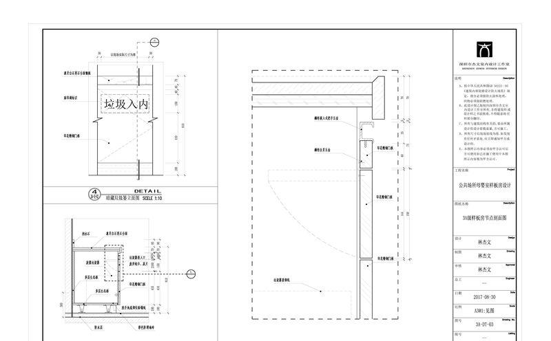
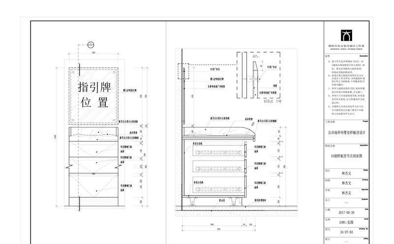
3A级样板房-节点剖面01
3A级样板房-节点剖面02
3A级样板房-节点剖面03
3A级样板房-节点剖面04
4A级样板房-施工图封面
4A级样板房-图纸目录
4A 级样板房-- 设计理念概述
4A级样板房-施工图设计说明(一)
4A级样板房-施工图设计说明(二)
4A级样板房-施工图设计说明(三)
4A 级样板房-- 材料设备表
4A 级样板房-- 平面布置图 01
4A级样板房-平面布置图02
4A 级样板房-- 天花布置图
4A级样板房-立面图01
客服
消息
收藏
下载
最近


























































