查看完整案例


收藏

下载
AM 设计 | 北京 JHG 锦荟港商业综合体设计分析
AM 设计 | 北京 JHG 锦荟港商业综合体设计
AM 设计 | 北京 JHG 锦荟港商业综合体一层设计
AM 设计 | 北京 JHG 锦荟港商业综合体四层设计
AM 设计 | 北京 JHG 锦荟港商业综合体 B 一层设计
AM 设计 | 北京 JHG 锦荟港商业综合体 B 一层设计
AM 设计 | 北京 JHG 锦荟港商业综合体卫生间设计
AM 设计 | 北京 JHG 锦荟港商业综合体卫生间设计
AM 设计 | 北京 JHG 锦荟港商业综合体设计五层平面图
AM 设计 | 北京 JHG 锦荟港商业综合体设计分析
AM 设计 | 北京 JHG 锦荟港商业综合体二层设计
AM 设计 | 北京 JHG 锦荟港商业综合体三层设计
AM 设计 | 北京 JHG 锦荟港商业综合体五层设计
AM 设计 | 北京 JHG 锦荟港商业综合体卫生间设计
AM 设计 | 北京 JHG 锦荟港商业综合体二层设计
AM 设计 | 北京 JHG 锦荟港商业综合体 B 一层设计
AM 设计 | 北京 JHG 锦荟港商业综合体卫生间设计
AM 设计 | 北京 JHG 锦荟港商业综合体卫生间设计
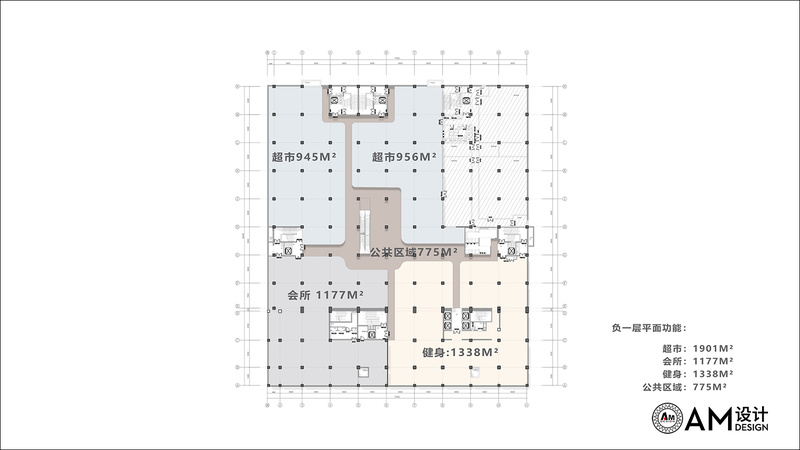
AM 设计 | 北京 JHG 锦荟港商业综合体设计 B 一层层平面图
AM 设计 | 北京 JHG 锦荟港商业综合体设计分析
AM 设计 | 北京 JHG 锦荟港商业综合体二层设计
AM 设计 | 北京 JHG 锦荟港商业综合体设计参考
AM 设计 | 北京 JHG 锦荟港商业综合体五层影院设计
AM 设计 | 北京 JHG 锦荟港商业综合体卫生间设计
AM 设计 | 北京 JHG 锦荟港商业综合体卫生间设计
项目名称:北京锦荟港商业综合体设计
AM 设计 | 北京 JHG 锦荟港商业综合体一层入口设计
项目时间:2021 年
AM 设计 | 北京 JHG 锦荟港商业综合体 B 一层设计
AM 设计 | 北京 JHG 锦荟港商业综合体设计一层平面图
项目地址:中国 · 北京
项目面积:50000㎡
AM 设计 | 北京 JHG 锦荟港商业综合体建筑外观设计
AM 设计 | 北京 JHG 锦荟港商业综合体二层设计
AM 设计 | 北京 JHG 锦荟港商业综合体设计参考
设计总监:雷雨明
AM 设计 | 北京 JHG 锦荟港商业综合体一层设计
AM 设计 | 北京 JHG 锦荟港商业综合体四层设计
AM 设计 | 北京 JHG 锦荟港商业综合体 B 一层设计
AM 设计 | 北京 JHG 锦荟港商业综合体设计二层平面图
AM 设计 | 北京 JHG 锦荟港商业综合体卫生间设计
设计人员:李原媛、王萍萍、曹竞
在北京顺义,即将有这么一座商业综合体,它的建筑不循常规,整个楼体是由参差不齐的块组成,用铝板和灯片打造,就像正在上演一场金属的“速度与激情”,它就是锦荟港。以如此时尚、激情的形象展现给人们,设计师在动画片中获得启发,这也让它看起来像一幢存在于时尚与卡通之中。
AM 设计 | 北京 JHG 锦荟港商业综合体设计参考
AM 设计 | 北京 JHG 锦荟港商业综合体二层设计
AM 设计 | 北京 JHG 锦荟港商业综合体一层设计
锦荟港是集商业、商务、办公于一身的顺义首家 5A 智能化设计高档商业综合体,将以全新的购物环境、全新的业态组合,为人们带来全新的购物体验和生活方式。锦汇港本质上是一座商业综合体,但它又远远不止是一座购物场所。
AM 设计 | 北京 JHG 锦荟港商业综合体设计
AM 设计 | 北京 JHG 锦荟港商业综合体四层休息区设计
AM 设计 | 北京 JHG 锦荟港商业综合体设计三层平面图
AM 设计 | 北京 JHG 锦荟港商业综合体三层设计
AM 设计 | 北京 JHG 锦荟港商业综合体一层设计
AM 设计 | 北京 JHG 锦荟港商业综合体设计四层平面图
AM 设计 | 北京 JHG 锦荟港商业综合体设计
AM 设计 | 北京 JHG 锦荟港商业综合体四层休息区设计
AM 设计 | 北京 JHG 锦荟港商业综合体一层设计
AM 设计 | 北京 JHG 锦荟港商业综合体建筑外观设计
客服
消息
收藏
下载
最近




















































