查看完整案例

收藏

下载
喜多娜·三合行馆,坐落于云南省丽江市世界文化遗产大研古镇内,距离丽江古城“大水车”约 150m,为倡导并提供纯正丽江的特色体验为目标,于是从建筑、景观到室内设计,都围绕着当地的建筑、气候、土著少数名族纳西族的民族文化以及茶马古道马帮文化的衍生品和贯穿打造的特色度假酒店。Sedona San He Residence is located in Dayan, a UNESCO World Heritage Site as well as an old town in Lijiang, in Yunnan province, China, and is about 150 meters away from the“Big Waterwheel”in the ancient Lijiang City. Aiming to provide special experience of a real stay in Lijiang, the Residence makes its architectural, landscape and interior designs focus on local buildings, climate, the culture of the native Nakhi people, its orientation asa derivative of the caravan culture along the ancient Tea-Horse Roadas well asa holiday hotel.
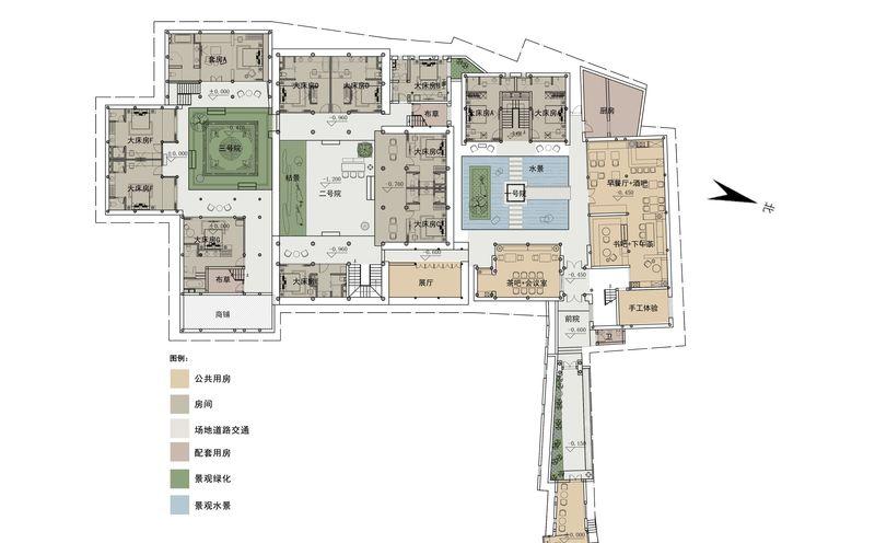
一层平面
三合行馆正如其名,整个酒店由传统的一进三院和一个长廊组成,分别为“喜院”、“多院”和“娜院”,其中“多院”为重点保护民居马锅头杨嘉泽宅改造而成,在经历了八十多年时间的冲刷及 1996 年丽江地震后依然屹立不倒,不得不为之惊叹。
二层平面
As its name suggests, Sedona San He Residence contains a traditional combination of three yards, namely Xi, Duo and Na, and a long corridor. Of the three yards, Duo is a transformation of the residence of Yang Jiaze, head of caravans, which thus receives critical protection. One tends to marvel at the enduring quality of this building, which has weathered a test lasting over 80 years and the earthquake in 1996 in Lijiang.
屋面图
本项目为改造设计,区域内原由十二栋纳西建筑组成,本着修旧如旧以及保护传统民居的思想,对项目进行改造。
This renovation project aims to reconstruct the existing 12 Nakhi buildings, renovating the antiquities while maintaining their old appearance and protecting the traditional residents.
模型顶视图
建筑总平面设计对项目原有建筑的布局以及道路交通做了重新梳理,其中“喜”院,拆除了项目原有两栋面对面的建筑其中一栋建筑,再新建两栋建筑,合理的规划出了纳西传统四合院的院落景观,因为项目地理位置的特殊性(项目所在地为丽江古城核心保护区,原则上不允许拆除和新建建筑),在经过和当地规划局以及文物保护局多次沟通后,得到相关政府部门的支持,方案最终得以实施。
The general layout plan includes areconfiguration of the existing building landscape and road traffic. One of the two face-to-face buildings in the yard of Xi was replaced by two new ones, sorting out a reasonable plan for restoring the traditional quadrangles of the Nakhi people. Due to the unique geographical location (in the core area of protection in the old town of Lijiang City; dismantlement and new buildings are not permitted in principle), the plan was finally approved by the government involved and was implemented after several negotiations with local planning board and bureau of cultural relics.
模型轴测图
建筑立面设计上强调延续纳西民居的立面特点,选用纳西传统建筑材料,青砖青瓦,木门木窗,建筑下口采用当地青石做勒脚,遵循传统营造方法以及符合当下使用功能的前提下,保持特色,大胆创新,以达到传统与现代协调统一的目的。
The design of building facades stresses maintaining the Nakhi style, which adopts such traditional building materials as gray bricks and tiles and wood for doors and windows; the bottom of the buildings uses local gray rock to make plinths. Where both traditional approaches are pursed and modern using functions are satisfied, specialty, as well as novelty, are still kept for the purpose of harmonizing tradition and modernity.
模型立面图
室内同样融合了当地民族文化及手工艺品、马帮文化等元素,结合酒店使用功能进行设计,以达到室内空间与建筑、文化、地域环境相融合的最终效果,材质的选择本着质朴、自然、本土、亲和的原则进行选择,主要采用了实木、手工紫铜、当地青石、童子黑石材、蜡染、皮革、亚麻等材质作为室内装饰材料,尽可能多的暴露建筑原有的木梁、木楼板、青瓦等结构,与室内装饰浑然一体,小的装饰品更多的融入了马帮元素,如马镫做的烛台、铜铃改造的房间门牌灯等小细节,从细节上与人文环境融会贯通。
Interior design also manifests local elements like the ethnic culture and handicrafts, the culture of caravan and so on, and shows its functional considerations for the hotel, in order to achieve the ultimate effect of combining the interior space with the building, culture and environment. The materials for interior decoration are selected in line with the principles of simplicity, naturalness, nativeness, and friendliness, which includes solid wood, man-made red copper, local gray rock, black stone, batik, leather, linen and others. The original building structures of a traditional architecture like wooden beams, wooden floors, gray tiles are exposed as much as possible so that the in- and out-door decorative styles are integrated into one. Small adornments, for example, a stirrup-shaped candlestick and a door plate changed from a copper bell, are the subtle details that have fitted into the cultural environment.
酒店入口
喜多娜·三合行馆,从视觉、听觉、触觉各个维度传承着丽江纳西文化。
从入口进入内院
Sedona San He Residence carries forward the Nakhi culture of Lijiang in such dimensions of vision, audition and touch.
客房走廊
细部
原始平面
细部
二号院——多院
三号院——娜院
三号院——娜院
细部
公共茶室
公共茶室
公共茶室
公共茶室
一号院——喜院
一号院——喜院
一号院——喜院
二号院——多院
二号院——多院
二号院——多院
俯瞰建筑与丽江古城
下沉式书吧
咖啡厅
客房室内
客房室内
客房室内
从客房窗口望向走廊
客房室内
客房室内
客房室内
客房室内
客房室内
客房室内
客房室内
客房室内
客房室内
客房室内
客房室内
客房室内
细节
细节
细节
客服
消息
收藏
下载
最近




















































