查看完整案例


收藏

下载
设计公司:深圳市居众装饰南海分公司
主创设计师:陈春溪
设计说明:装修风格:现代简约风格
主要材料:大理石,无缝墙布,龙骨,木地板,墙漆,不绣钢,800×800 抛釉砖,涂料、石膏板等。
此案为高明碧桂园芷岸鹭鸣一街 101 号独栋别墅,靠山面水,自然环境优美。前后拥有大阳台,通风采光好,户型方正,结构合理,空间高,是一套不可多得的经典户型。业主是非常年轻上市公司的总经理,对于居住环境要求非常高。
面对吵闹的都市生活,一处能让人完全放松的生活空间,是每个人心中的一份渴望,也是本方案的主导方向。所以,空间的简洁、温馨、通透感是缓解业主工作一天疲惫的要点,利用干净利落的手法,将业主的工作与生活融合在一起。
一楼客厅
客厅是生活的中心,是一个万能空间。它是一个公共空间,与私人空间是完全分开的。在设计时要考虑到业主的家庭成员、身份地位和他的社会关系。通过对家具的陈设来逐渐一个稳定的空间,以满足家庭对其空间的需要。地面采用灰色大理石瓷砖来托起一个舒适氛围,天花和墙体采用了涂料和墙布相结合来结合整体。
客厅采用了简约现代的设计风格是思想追求和精神生活的直接反应,建立是在文化背景和家庭修养之上来体现特色的居室风格。大的氛围拉开以后就开始考虑细化情调,在房屋结构的条件下,为了最大限度利用自然光,在客厅最大限度地用窗帘做了一个修饰,自然光可以透过纱帘进入室内,是光线变的绚丽柔和。一套现代简洁的沙发组合,在纱帘的陪衬下显得整洁温馨,给人以舒适安静的感觉。
电视墙的装饰我采用直纹黑檀面板,整块爵士白大理石,在原有的石材墙面上利用黑钛金外框不锈钢压条,营造了视觉上高敞宽阔的效果。吊顶只是做了简单的二级叠级吊顶,突出了简洁流畅的设计风格。
一楼餐厅
餐厅是家庭成员享用用美食的地方,同时也可用来开家庭会议。整个空间利用天花把空间错来开,以装饰酒柜衬托,再加上以金属为特色的灯具及现代餐桌组合,显得空间十分完美和谐,更能增加主人翁的食欲。
一楼厨房
厨房是储存生活必备,为日常生活提供饮食保证的场所。以有利条件将橱柜设计成“L”型,以储存、洗涤和烹调的流程依次划分区域。柜体外形以简约为主,内置抽屉以满足操作需要,是整个空间显得简洁而易打理,给业主制作美食时的美感。
一楼多功能房多功能房是客户交友娱乐中心,影视墙采用硬包处理,周边采用意大理木纹灰大理石,既大方又有气派,后背景同样采用硬包及车边异型镜面作为特别装饰,边框同样采用意大理木纹灰大理石。形成一个具有特色的装饰背景。
二楼主卧室
主卧室一般都具有很好的视野性,配套洗浴,静谧舒适,与其他空间明显的分割,是整套房子最私人的空间,完全根据业主的要求去设计。设计卧室时首先考虑的是看到对面的无敌湖景以及舒适和安静同样需要。此空间面积非常大,除摆放大床外,留有一定的面积摆放卧室家具,如休闲椅、床头柜、电视柜地灯等。卧室设计的核心是床的位置,让其与周边的环境融为一体,其他的家具和摆设根据需要来添加。床头墙面用硬包及香槟金不锈钢竖拼,简洁,柔软,有立体感。家具以及灯光的颜色是暖色调的。整个空间的和谐能让人消除一天的疲劳,在柔和的环境坦然入睡。
二楼女儿房
客户有一对孪生双胞女,我特意设计了一间双人房给小孩子,床头墙面用同样采硬包及香槟金不锈钢竖拼,简洁大方有立体感。白色家具以及灯光的颜色是暖色调的。抱枕采用粉红色显得整个空间温馨
三楼小孩房
客户还有一个三岁的小男孩,此空间设计我特意不做任何背景,大面积采用白色乳胶漆,通过天花的处理显得与众不同,灯光采用暖色系,让小孩活泼开朗,整洁个空间简洁大方有立体感。
三楼书房
随着生活品位的提高,书房装修已经是许多家庭居室的一个重要组成部分,越来越多的人开始重视对书房的装饰装修。对于一个可以修身
地下室休闲区
地下室休闲区
地下室休闲区(黄昏时分)
地下室泳池区
地下室泳池区
地下室泳池区
别墅外观
花园一角
一楼客厅
一楼客厅
一楼客厅(灯光下)
一楼客厅
一楼餐厅
一楼餐厅
一楼多功能房
一楼多功能房
二楼楼梯间
二楼主人房
二楼主人房
二楼主人房
二楼主人房(灯光下)
二楼主人房衣帽间
二楼主卫
长辈房
女孩房
三楼楼梯间
三楼书房
三楼男孩房
三楼男孩房
三楼男孩房
地下室平面布置图
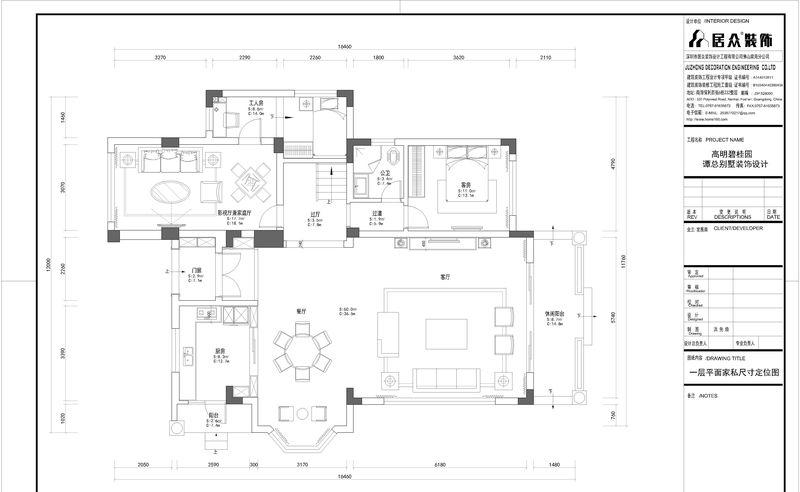
一楼平面布置图
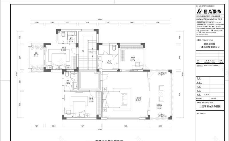
二楼平面布置图
三楼平面布置图
客服
消息
收藏
下载
最近




































