查看完整案例

收藏

下载
生活好比时光录影,家居设计便是那撩人插曲,不论悠扬婉转或是慷慨激昂,总能在关键之处扣动心弦。本案屋主是一对年轻夫妻,此次装修也是为了准备婚房,打造温馨舒适的二人世界。初次见面,他们就明确了对于未来家的期望,如追梦赤子,有对生活的热爱和美好向往。实景照片
入户正对的客厅,暖阳自落地窗洒入,随拂面的微风,悄声在室内流转,处处洋溢着柔情。浅棕的皮沙发和木色茶几静卧一旁,在日光的沐浴下,显出最本真的质朴之色。抱枕的波折纹理,为整体软装增添了几分意趣。
半高水泥墙与玻璃隔断的设计,对客厅和书房在空间上有所分割,却依然维系着区域间的沟通,确保更多光线能够进入客厅,同时让过道出来的视线也可以一直延伸至书房的窗外世界。一杯咖啡一本书,让你轻松度过一整个下午时光。
餐厅吊灯的选择,延续了电视墙水泥板的设计,用简单元素作为提点,不仅丰富了空间,还可跃动生活调性。在木作桌椅的陪伴下享用餐食,似有归园田居般的自然闲情。
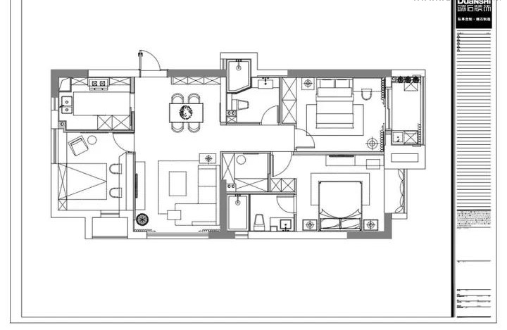
户型整体以隐形的十字动线形成,X 轴贯穿全屋,过道尽头分别进入主卧、次卧和客卫生间。主卧经由区块划分,形成了以入室玄关、衣帽间、主卫以及休息区连结而成的多功能静享空间。床品家具延续客餐厅的主打风格,在灰蓝色背景的烘托下,更显得儒雅清净。
浅灰主调的厨房搭配仿古地砖,不仅提升了烹饪格调,还有便于油污清洁。橱柜的合理排布切实解决了收纳问题,避免了由物品堆积而造成的空间局促感。
洗手间的干湿分区极为贴心,细节上的周到考虑,更能让家人感到温馨。
设计中可见原木、金属、水泥板的植入,以不加修饰的简朴纯美,合力打造有质感的生态空间,似宁静致远,又象征着活力和生机,同时也在诉说着屋主人对于家的态度。
【项目名称】:柔情时光【项目地址】:宁波荣安月园【项目面积】:110m²【设计单位】:宁波端石设计【施工单位】:宁波端石装饰【主案设计】:顾磊【摄 影】:刘鹰【设计主材】:乳胶漆、成品木饰面、水泥板、黑色不锈钢
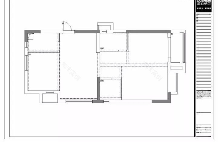
平面结构图
客服
消息
收藏
下载
最近



















