查看完整案例


收藏

下载
室内面积 / 276㎡
空间性质 / 叠墅
项目位置 / 江苏南京
项目进展 / 已交付使用
合作模式 / 全案设计全程托管
项目设计 / 南京观享际 SKH 室内设计
项目施工 / 南京观享际 SKH 室内设计
项目软装 / 南京观享际 SKH 室内设计
一个城市快 快的是人心
对于家人、朋友 甚至自己的内心而言
却要慢下来 体悟生命
我 做室内设计这一行
学会的第一件事是倾听
结识 Z 先生一家,源自于 Y 女士家的实景落地:都市人,忙碌的脚步需要停歇,灵魂和身体渴望释放,我们用港式的语言融入现代的符号,为这一家三口打造出,洒满月光的春夏秋冬。01.
Living Room
GuanXiangJi SKH Design
客厅
室内设计师的首要任务是,合理塑造格局,完美安置功能,争取最大幅度的贴近生活和传达情感…遂,在此空间,纳阳台为室内,拆房间扩充为厅,用最简单纯粹的手法增加整个客厅的社交功能面积。
打破传统,合理设计,予窗户以新生。储物隐藏,灯光点缀,一屋三人,四季为景,笑谈日常,一个家的美好不过如此…
02.Eat Hutch
GuanXiangJi SKH Design
餐厨
餐厅,破除固有,打开格局,增加岛台,让中西厨的功能使用,更为合理。不同材质的肌理在此碰撞,大气自如的线条与比例相映成趣,三餐之间,尽显优雅风情。
03.Stairway
GuanXiangJi SKH Design
楼梯
生活,需要一些创新,创新不代表完全弃旧。拓宽踏步空间,镂空雕琢,辅以灯光,现代、简洁、有趣且港味十足,新旧结合,这才是最好的呈现…
04.Master Bedroom
GuanXiangJi SKH Design
主卧
套房布局合理,一应俱全。
巧妙利用阳台空间增加储物及梳妆功能。
我们对于灯光设计的要求是“一分不多,一分不少”必须符合这个家庭的生活状态与情调。
落地,夜灯即亮,放空于阳台,星星、月亮相伴,生命如同重启一般…
05.
Children’s room
GuanXiangJi SKH Design
儿童房
儿童房是钢筋水泥重塑搭建出的产物橙色跳跃着灰色的理性学习与休憩装饰与储藏皆能妥帖安放伴他成长 06.
Multifunctional hall
GuanXiangJi SKH Design
多功能厅
月光本不属于地球,却为地球带来了意外的宁静。波浪板以特殊的方式勾勒出银河的意境,这是一个 人皆向往的多功能区域 (办公、阅读、品茶、发呆)。看上去抽象又绝对真实客观,充满感性鲜活的视觉体验。
在这里听自然的声音,观变幻的四季冬日的朝阳,秋天之红叶沉浸在与自然万物混成的生命时光里一种设计的力量,一种无声的共鸣,一种潜在的默契打造出一个家的充实和馨宁 07.
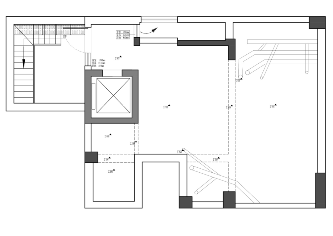
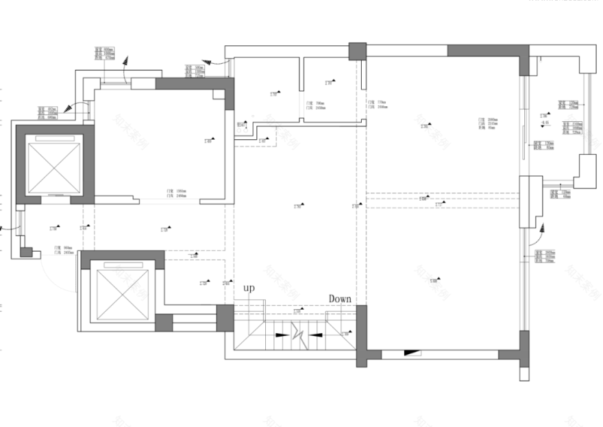
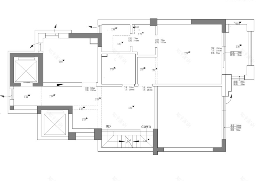
Floor Plan
GuanXiangJi SKH Design
平面图
客服
消息
收藏
下载
最近



































