查看完整案例


收藏

下载
新湖18号,位于杭州的近郊,其建筑室内改造设计委托由走空间设计研究实验室打造,历时一年完成。业主最初的诉求是,希望将这个远离杭州市区600多平方米、和周围建筑无太多差异的西班牙风格别墅,打造成自己理想中、记忆中、远离尘嚣的一隅,在繁忙之余安放自己内心。
而设计师在和业主详谈以及对空间深入了解之后却觉得,何不让这个空间拥有更多自住以外的可能性?让更多人能够来到这个出尘的所在放空?于是,在这个空间里,功能性被极大开发:充满仪式感的玄关有如丝绸一般轻柔纯净,也有着画廊的功能属性;此建筑不仅仅是一个家,更是一个有品位的艺术馆。空间中理性的线条分割,利用曲线与直线的有机融合呈现了建筑的非凡气质。
功能完备的厨房、餐厅,足够来一场伙伴们之间的私人宴会;
在这里,光线随着太阳的东升西落,在这栋屋子里不断轮回变幻着。透过窗,倾洒而下,因而有了不同时间,不同空间的不同光影。光赋予美以戏剧性,有光,自然有景。
设计团队希望自己的设计不仅体现在高端材料和精湛的工艺上,更希望用最简单的形式表达自然美学,营造安然、静谧、祥和的氛围。
结合乡间别墅及现代精致设计,呈现一种追求自然平衡的宁静与平稳,强调一种简朴的舒适感。融入灰系的自然返璞美学,强调建筑的结构感与光的交互,追求的安静又有所不同,但两者的理想都是寻找人类安静的心灵居所。
极简禅宗的设计关键,归根到底,是如何将极简设计与东方禅宗完美地糅合在一起,而在设计的本质上,两者均是追求“少即是多”的境界。
自然平衡
是一种恰到好处的自然平衡
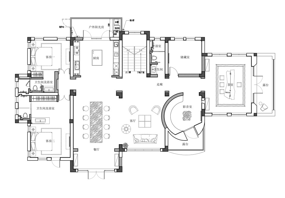
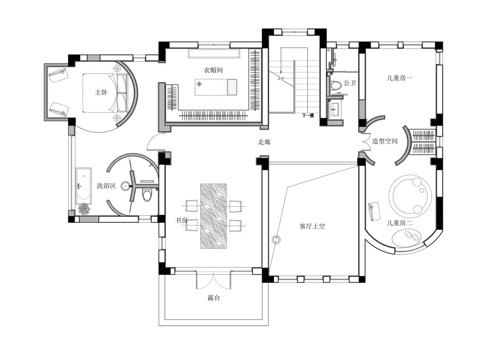
▲平面图
▲平面图
▲平面图
项目名称:新湖18号
设计方:由走设计研究室
项目设计 & 完成年份:设计2019年3月/完工2019年12月
主创及设计团队:主创设计师任迪/深化设计师贵凯文
项目地址:杭州市余杭区新湖香格里拉霞谷苑18号
建筑面积:主体建筑700㎡/景观院子1000㎡
任迪
由走设计研究室主理人
由走设计研究室由任迪先生成立于2019年。任迪先生从事室内设计行业十于年,专注于酒店、销售中心、样板房、会所、办公楼......空间打造。始终坚持“精于心、简于形”的设计理念,力求给客户提供全方位优质的设计服务,用激情和与灵感赋予产品更高的价值。公司的生命力源于核心创造力,也是公司发展创新的原动力是公司的核心竞争力,只有保持设计作品的原创性,才能保持设计思维的鲜活性,帮助业主激发更多的社会效应和价值。
孙尤 发表于 2020-3-30 13:35
客服
消息
收藏
下载
最近











































