查看完整案例


收藏

下载
KIM’s HOUSE 无需刻意去做手法我只是将本来心中所想的表达出来
自宅是无需刻意去做手法的;我只是将本来心中所想所要的表达出来了;自己是怎么样,生活就是什么状态;想像下和你最亲近的人在一起...
在 2018 年一次偶然的机会,KIM 姐又重新购置了一套住宅。记得 2010 年就拥有了自己的第一套房子,面积不大,六十平,那时候给自己的定位的基调就是干净的现代风格,用了一些镜面,马赛克,不锈钢,落地玻璃等元素。十年过去了,发现自己个人偏爱的东西一直都没变过。极简,拒绝繁复,这大概可能和我的强迫症也有一点点的关系,当然对于设计也是一样,从入行开始到现在十几年从未离开过,我想我会一直坚持下去!这是我热爱的职业,保持一份原有的初衷,能帮助到我们的业主改变他们现在的生活,找到一个更适合或者说属于他们自己的生活方式,希望我的出现会让我们身边的人过的更美好...
格局和基调的确定,从开始我的想法就是非常明确的(由于工作比较忙的的关系,平时就很少能有在家整理家务的时间,我能不能说说基本上是没有了)所以在所有的造型都需要简单,不需要出现过度的装饰。色彩及材质上面统一纯粹,线条简洁,非常注重后期的储物功能性和整体实用性,整屋大平顶,采用无边框的射灯和无边框风口,通顶的房门和柜门,踢脚线的尽量细化,尽可能多的储物空间并且因为柜子多还需要考虑柜子隐形设计。把家里所有一切的东西都藏起来,让它们在它们应该在的地方。KIM 姐认为在后期入住以后会随着变化在软装上也是可以做部分的调整,加入一些色彩元素来丰富整体的空间纯在的黑白灰基调。
基本上因为自己是从事这个行业,所以家属没有过多的参与进来,基本上都是我一个人做主。(除了厨房空间由我们家属说了)还好自己不纠结。其实 KIM 姐平时大部分时间都还是在帮其它家业主操碎心,自己家里基本上管的也不是很多。导致整个装修过程花了俩年左右时间,一直都是断断续续进行中。应该是去年差不多也都好,因为海外代购的沙发一直没到货,实在是太久太久太久了,也就拖到今年才正式毕业...太难为情了...
最后想说一句,从事室内设计多年,做过很多风格,也接触很多很多的业主。在整个装修过程中,大家永远都会处于一个永远在纠结的过程。其实清楚明白知道自己和家人喜欢的是什么,想要怎么样的生活,包括你的预算是多少,学会取舍很重要,平衡好这点,多听听你们设计师的意见,那么可能纠结也不会在纠结了。
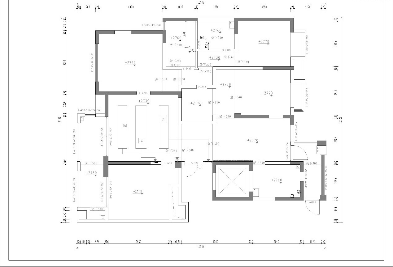
原始结构图
原建筑是非常常规的一百四十平方的户型。基本上从 KIM 姐自己手上估计也已经作了不下几十个了。原始墙体承重墙非常多,整体空间缺少通透感,不够开扩,动线存在不合理。入户玄关位置太压抑,客卫厨房都偏小。不过好在开发商送了三十平方,这点让 KIM 姐感到非常欣慰。
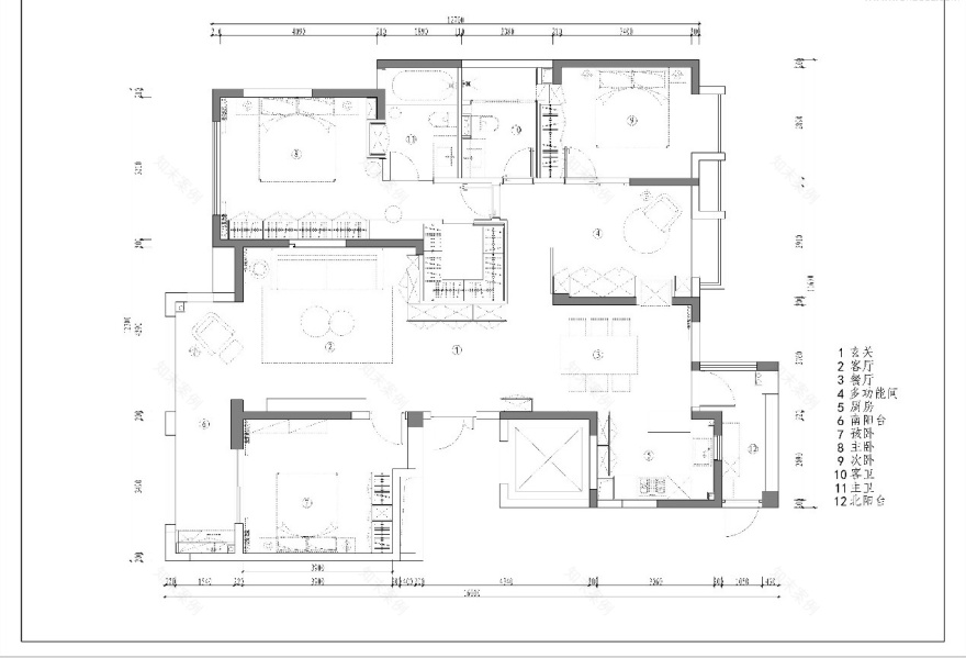
平面布置图
结合了家里只有常驻人口三个人的情况下,就没过多把外界因素纳入考虑的范围,在改户型上面也是一样,同样取舍很重要。明白是卫生间或者是衣帽间,哪个功能区域对你来说更为重要。KIM 姐将原始空间墙体全部打通再重组。生活空间以四大主轴贯穿,分别为客厅餐厅卧室及多功能空间。成为了 LKD 一体的感觉,整体力求动线流畅及视觉上开阔。
玄关
一进门的开放空间,舍弃了所谓传统意义上一个单独的玄关位,用一组白色的悬浮转角柜体代替,入户右手边也设计了单独的鞋柜。白色通顶柜门及暗拉手的设计也让整体鞋柜有个隐形的感觉,不仅作为住宅的入口和收纳空间。还让整个客餐厅空间有了连贯性
客厅
将原结构的南阳台纳入客厅区,增加了客厅的空间。开放以后的布局允许自然光通透整个客厅的空间。顶面采用了吊平顶无主灯的设计,无边框的方形嵌入式射灯和无边框的空调风视乎很呼应整体的感觉,在背景墙上增加了一处线型灯的设计,使得原来深灰色的背景墙显的不那么单调。
电视背景一体式,孩卧做了隐形门。
左边的画是之前去冲绳一个一双买的,一位日本画家的第 99 副限量版,右边的老夫子香炉是看了《潮流合伙人》以后觉得很帅的一个摆件。
简约的线条感和纯粹的材料组合,利落的量体造型,强调了现代的生活美学。
材质颜色上面使用了深灰色的艺术涂料,中灰的布艺沙发还有浅灰的地毯,纯黑色的茶几,角几和单人椅子加上 B&O 音响。使得整个空间显得非常有层次感和高级感。
此生应该需要一台 B&O。
从玄关到客厅的转角白色柜子独立出一个橙色开放柜构建空间色彩感。
主沙发 CHIC 希可 纯粹 pure
单人椅 Ligne Roset 写意空间 TOGO
单人椅 ziinlife!吱音 相随
茶几 HAY Slit Table Round
音响 B&O A9
投影机 坚果 J9
皮层的包裹,光影的组合。
摆件 BABAMA 联名潮流合伙人 FOUTRY 老夫子香炉
摆件 Kaws
灯具 仙人掌 防炫目筒灯
灯具 FLOS GATTO PICCOLO
窗帘 伟饰定制
地砖 加尼亚
餐厅
原有入户门的违和感实在太差了,采用了常用的毛毡做为修饰,拍照的时候换鞋凳还未入手,所以目前这里还空了一个位置。
餐厅部分原来也是考虑黑白灰基调,但是考虑岩板或者大理石都给人太冰冷的感觉…最后决定了用木色做为点缀,选了很久很久的餐桌,还是配上我们的极简风格。
餐桌 比利时 Ethnicraft
椅子 定制
吊灯 丹麦&tradition Formakami 纸吊灯灯笼
冰箱 西门子 KM46FS20TI
推车 宜家
厨房
开放式的厨房减去了厚重的墙面的,加上岛台的隔断,减轻了视觉的重量感,最美好的家庭画面已然呈现在脑海中。
多功能房
目前是一个小朋友的玩耍区域,入住以后会添置放小朋友的学习桌。希望他把休息和学习的分开,方便辅导作业。并且在多功能房同样也预留暗藏轨道的位置,有变动的话后期也可以变成一个独立的房间。
又是一组内嵌入式的储物功能超极强大的柜体。和白色墙面结合的非常完美。部分白色墙体其实后面就是冰箱的位置。
主卧
床,床头柜 TIKA
床垫 SLEEP MAKER
地板 术木
把主卫部分做长虹玻璃增加主卧的通透感,也是延续了客厅背景一样的深灰色质感涂料,没有做任何过多的装饰墙面。65 寸电视机位置凹进整一组柜体内,连接梳妆台部分在墙面也同样设计了俩条线型灯。照片关系只看的清楚一条,主卫外即梳妆台动线位置分明合理。
次卧
不属于重点关注的区域,弄的稍为简单一点,房门后是一组利用了次卫扩大后的多余的空间做的嵌入通顶大衣柜。实用性极高。呃就是喜欢柜子多。。
画 DAFF
茶几 ZARA HOME
走廊
卫生间
主次卫都是以黑灰调墙砖配以白色洁具,还是和客厅一样的基调。设计了无挡水条的处理。淋浴区下沉 3 公分,加长型地漏。注重整体性,所有包括客餐厅的地砖及卫生间墙地砖,采用了环氧填缝剂。尽量找和砖最接近的颜色。
阳台
部分空间因隐私性尚未公开。
什么家是你心中目中完美家的样子?
空间,光线,美观,实用,功能…
对于细节,每一件物品都很重要
每个设计不外乎是为了拉近各个空间及使用者的距离
让生活更贴近生活…
客服
消息
收藏
下载
最近














































