查看完整案例


收藏

下载
项目地址 / LOCATION 杭州,金地西溪风华
项目面积 / AREA315㎡
设计师 / DESIGN 刘豪
Interior Design
空间设计
家庭构成:常住人口:夫妻、一儿一女、男业主父母
偶住人员:女业主父母
有了第一套同户型房子的经验,对房子的熟悉度使得改造变得容易了许多,但也遇到了新的问题。业主一家有八口人,对住房的基础需求就至少要有 5 个房间,有卧室的楼层都要做卫生间和淋浴间,男主人要有单独的书房空间来办公,一大家子需要大量的储物空间,如何去规划单层面积不到 80 方的空间是平面布局中的一大难题。
原户型除了单层面积小之外,楼梯也存在许多缺点,位置在入户门的左手边,从行走的动线来讲就不是非常舒服,最大的问题是楼梯间没有窗户,楼梯和地下室的采光和通风极差⇩原始户型图
对于有好几层楼梯的房子来说,楼梯位置的确定是其他空间设计的首要基础。设计师把楼梯移到现在的位置后,自然光和风就可以通过一楼楼梯间的窗户,与南北两边的窗形成对流,楼梯的形式也可以极大改善原楼梯的缺点,通透的玻璃栏杆和钢架楼梯,让光和风可以通过玻璃和镂空台阶传递到地下,闷、暗的地下室得到了解救!
有了光和风,空间也就活了起来。
除了光和风以外,设计师还在每一层都加入了“水”,使得地下室的使用变得十分便利,饮用水、洗手、排水都可以直接在每层楼解决,不用楼上楼下跑。“自然”,永远是居住永恒的主题,追求达到人与自然的平衡,便是以人为本最终的居住诉求。
⇩平面布置图
⇩建筑剖析图
Stairs楼梯
钢架楼梯
“减轻”空间的沉重感
玻璃扶栏增加空间的通透度
镂空的实木踏板传递着自然的呼吸
B2Basement 2
地下二层
池子里盛满了海洋球和孩子们的童年五彩斑斓,简单快乐
地下室最好的采光和挑高处设计了滑梯和攀岩墙。
私人定制超大版豪华玩具。
大面积黑板墙让宝贝任意发挥想象力。
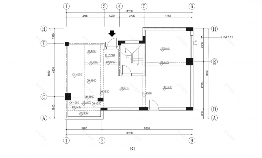
B1Basement 1
地下一层
5.2 米多的超高地下室现场浇筑出 B1 夹层,创造出层次错落的结构空间,提高地下室的利用率。
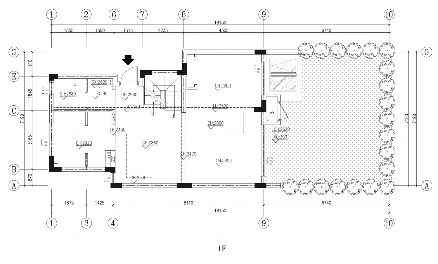
1FFirst Floor一层
镜中世界,像是我们脑海中的一个影子亦真亦假,如梦似幻
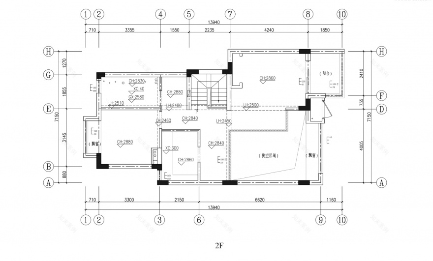
2FSecond Floor二层
大面积落地窗还原 100% 的景致
许你城市里的一片绿意
姐弟俩共用一个卫生间
干湿分离,互不影响
清爽又富有童趣
客服
消息
收藏
下载
最近













































