查看完整案例


收藏

下载
“青砖小瓦马头墙回廊挂落花格窗梦里水乡芳绿野玉谪伯虎慰苏杭”源于对中式建筑的喜爱我们沿用了中式的元素融入了空间之中打造属于木梵式的中国风
▼ 客厅
客厅我们保留了原有的挑空区域山水壁纸饰于墙条形栅格从顶饰于面加深了两个空间的关系增强了整体性
▼ 餐厅空间的布局我们用了一些简约的手法客餐厅的一体书房空间的半开放式增加了每个空间的交互性使风格元素更加融汇
▼ 书房
书房用线条勾勒出框架再附上中式原始的家具凸显出中式文化中的写意之境简约却不简单深富内涵如诗中云:斯是陋室 唯吾德馨
▼ 主卧
主卧色调保持一致
沿用客餐厅的木色
运用了一些中式风格中特有的门窗
空间的采光使用方式都得到了优化
▼ 厨房
将西式的岛台形式融入了中式的厨房看上去空间更加宽敞大扇的落地窗也提升了空间的灵性
▼ 玄关
步入玄关即是景
我们把园林的元素延伸到了室内
▼ 阳台
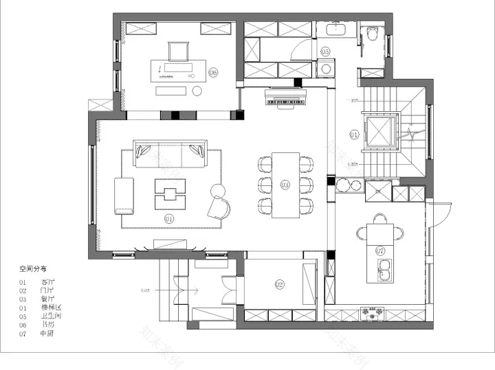
▼ 平面布局
▼设计说明
一直大爱中式
源于内心民族的骄傲
喜欢中式的那份意境
那份淡然
那份其他风格不能表达的内涵
我们一直在探索
怎么将中式元素融入室内
中式的建筑中式的水墨
用这些打造出属于木梵的新中式
客服
消息
收藏
下载
最近












