查看完整案例


收藏

下载
过一切过去的诗——海子
空间是一个由功能、材质、流线营造出来的立体平面它存在于在理想主义和实用主义之间需要建构并实现微妙的平衡这是每一个现代家庭在设计过程必须面对的问题
设计师以诗和远方的思路切入,探索生活的趣味以及居住的意义。于浮躁的社会中淬炼富有情怀的美学厚度,为业主建立入则宁静,出则繁华的诗意家园。一层
(一层平面图)
空间在整体结构上减少迂回,动线简练但是不同空间中材质肌理与颜色的意外碰撞使空间虚实分割,界限最终因为模糊似是而非的存在形成了整个空间的整体性
客厅的设计大量运用了直线曲线线条和几何形状,不用过多的装饰增加繁琐感空间,简约又不缺乏时尚气质的家具陈设与硬装的干净自然配合天衣无缝,精致优雅感以一种自然克制的方式得以呈现。
开放式厨房设计,中岛柜位于中间
既能自由切换中西厨模式
又补充了更多的收纳空间
一家人在这里一起共同料理
让爱和美食都不被辜负
餐厅以圆形的餐桌椅,加以独特的吊顶和鲜明的陈设配色,层次感随即而出,又使其更具有家庭氛围,提高餐厅的用餐品质以及空间感。二层
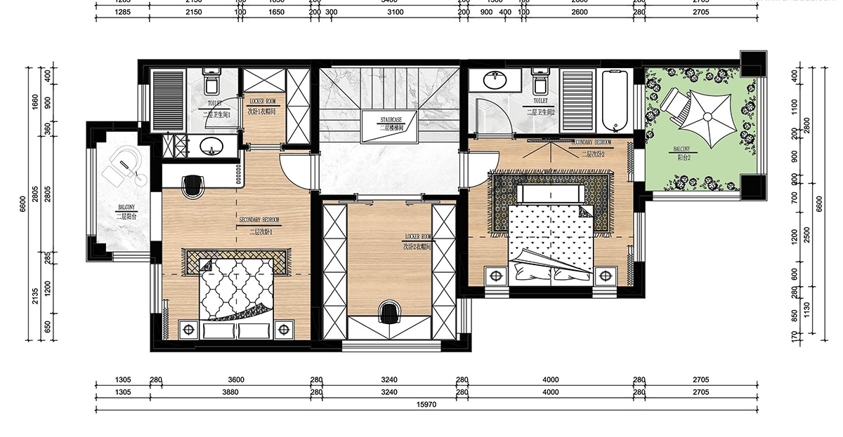
(二层平面图)
二楼留做客卧,与主人互不打扰
没有过多复杂装饰,浅色护板配金属条做装饰
具备了都市时尚且有简约大气
选用的相对柔和的色调
充分体现着卧室空间的舒适属性
衣帽间选用木制柜门和玻璃柜门相结合,让衣帽间看起来并不单一。透明材质的使用也在整个空间视觉中增加层次。衣帽间设置了梳妆台,梳妆台两侧做了开放格,让女主人的化妆品收纳更加方便。衣帽间不仅满足了男女主人的衣服收纳,也满足了女主人的日常梳妆。三层。
(三层平面图)
三楼会客区靠着大尺度的落地窗
将室外的翠绿引入室内,在动与静之间寻找平衡
没有过多装饰的通透,构建在家中的绿色花园
建筑与光、自然和谐共存,营造宁静、高雅的氛围
三楼则是主卧室,有效的让私密空间独立出来
整体选用了雅致的浅灰为主色调
设计床尾的休闲阅读区域
睡前也能阅读自己喜爱的书籍
床头的线条是点睛之笔,更能烘托出空间气氛
木制书桌书柜,配以大落地窗看似规矩的木书桌加之金属桌腿的点缀与书柜的金属边线相呼应书柜的点光源,跟线型的灯饰点缀空间简雅的艺术格调在这样简净风格的书房中放松自我
楼梯是连接建筑空间的基本构成也是空间气质的体现
设计师运用金属扶手,超白玻璃护栏,灰色理石踏步和灯光
即保证了安全性又使楼梯在时尚简约中透漏着丝丝复古
现代风格在空间的设计上强调的是室内空间开阔的理念
这样的设计风格没有过多的造型
主要以简单的线条和装饰简洁的造型来体现出现代型的设计
自然不矫饰的风格,肉眼看见的舒适
回归对优雅的艺术解读,于现代光影中
链接着每一个生活于此的生命个体,与优雅共生
本案设计师
项目地址:威海文登
设计机构:维悟空间
主案设计:姜伟
参与设计:刘倩妤、姜灏钰
软装执行:刘红娜、不二软装
完工时间:2021 年 5 月
客服
消息
收藏
下载
最近



























