查看完整案例


收藏

下载
细腻的喜欢,毛毯般的厚重感晒过太阳熟悉的安全感—— 《暖暖》梁静茹
H·O·M·E
项目名称:燕鸣苑——暖暖
空间性质:平层/140 平
设计机构:DoLong 董龍设计
设计风格:日式简约
施工单位:大品大工程
全案标准:3500 元/平(不含部分家具、电器)我的摄影:Ingallery
空间说:在日式原木里感受自然
原始结构图
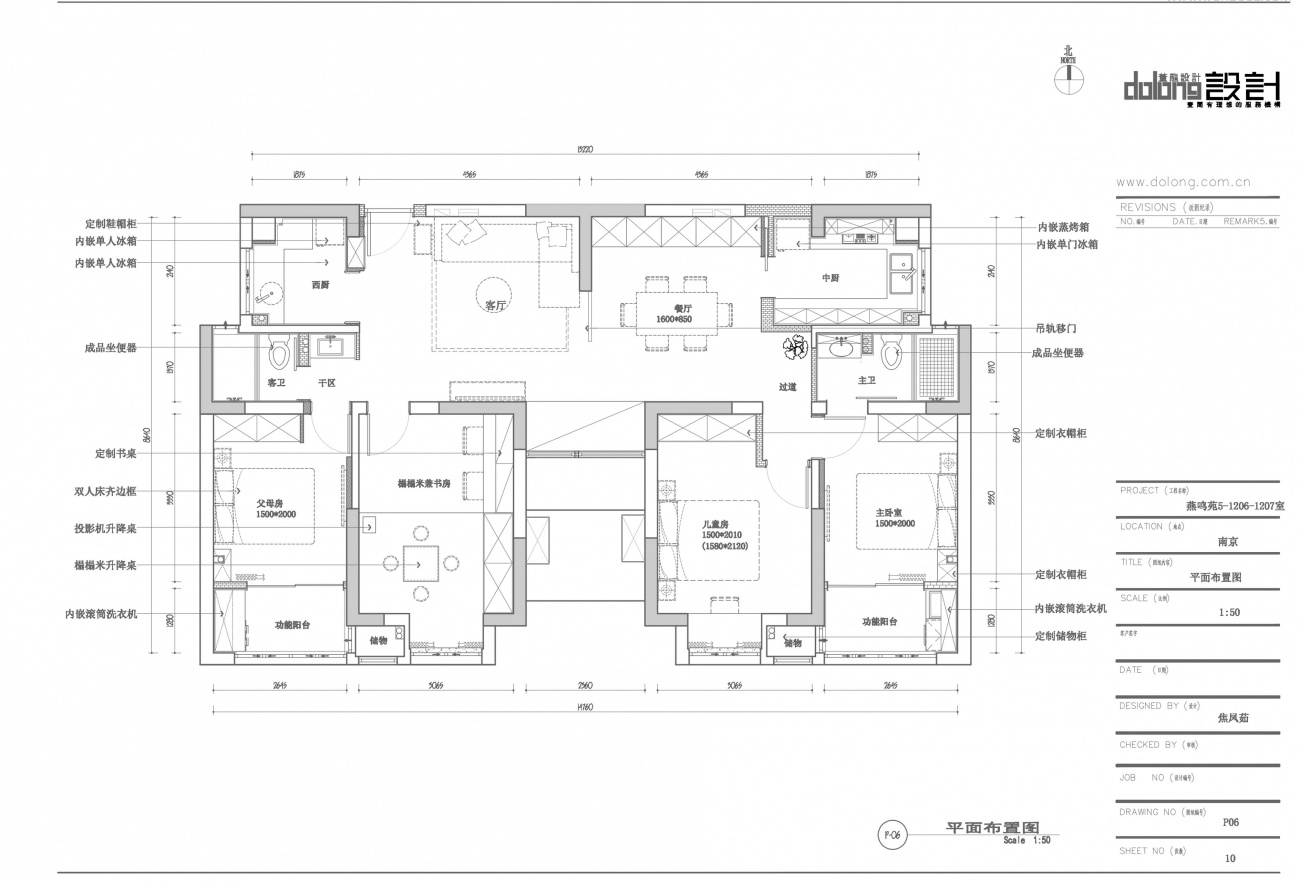
平面布置图
舒适的家不需繁饰,只要把他和她喜欢的日式原木风淋漓尽致地呈现出来即可。白与木交织,想象与现实融合,以最自然的语言叙述纯粹的温情。“轻熟”、“日本文化爱好者”,这些词语形容这对业主夫妻再合适不过了。让自然走进生活,让家回归自然本色。
新家说:回归温馨舒适的根本追求
Living Room | 客厅
木欣欣以向荣,泉涓涓而始流:天然的原木散发自然的清新之感,空间基底色调以木色搭配白色为主,婉约宁静,心净若禅。
原始户型是两套 70 平的中间套。设计师把原本一墙之隔的两个客厅打通合并,形成一个横厅。
两厅之间采用木格栅划分空间,似隔非隔,空间层次分明,半开放不显压抑
布艺沙发坐垫由灯芯绒制作而成,纹路清晰可见,色彩清新靓丽,触感十分舒适,文艺中带有复古风味。再在温润的原木纹理烘托下,一个温暖、宁静、舒适的家随即被勾勒出来。
原有外机位外拓,打造了一个超大的飘窗。其使用原木饰面板装饰,即可实现大抽屉收纳功能,又可将其融入整体空间。由此,客厅的采光和通风都达到了最佳。闲暇时可以惬意地坐在飘窗上,细细品味一杯红茶,翻阅图书,静心地体会木质飘窗的舒适感。
Dining Room | 餐厅
在木格栅半开放的虚掩下,从客厅望向餐厅,一种若隐若现、消解严肃的自然感涌上心头。所谓“格不断、还好看”,大抵用来形容如此浑然天成的感觉。
悦亲戚之情话,乐琴书以消忧:因餐厅与客厅相连,理想中的美食便有了更多的互动性和可能性,增加家人间的情感交流,使空间更具烟火气息。
Bedroom| 卧室
卧室布置主张简约之美。空间配备充足的收纳,木质床架和家具尽显舒适自然质感,在极简的纯色墙面、窗帘、暖灰的床品的映射下,打造出追求睡眠本身的放松空间
儿童活动家具同样采用原木色,使之与全屋的风格协调一致。在局部装饰上采用粉色作为点缀,凸显了女孩房的甜美。
榻榻米的设计使得储物空间更加充足,家人之间的互动性也更强。家人齐聚于此,可喝茶、看本书、讲个故事。亦可熄灯、拉帘、打上投影,享受最美好的观影时光……
客服
消息
收藏
下载
最近




















