查看完整案例


收藏

下载
当设计师来改造另一位设计师的家时,将会面临怎样的挑战与困难?餐饮空间设计专家刘道华被誉为“大董御用设计师”,深谙餐饮设计之道,曾主持过多家大董旗舰店、黑珍珠餐厅设计;但这一次,他却作为“业主”,将自己的家交给了设计师吴巍来设计。
被改造的房子位于北京,是刘道华 17 年前买的一个狭小的空间,他曾在这里呆过四年;而今,这个对他有着特殊意义的小屋,也是他极为关心的地方。这一次,他希望将其改造成为都市里的“第四客厅”。
本期业主:刘道华
刘道华,餐饮空间设计专家、资深室内建筑师,大董餐饮等众多品牌御用设计师,经他设计的餐厅生意异常火爆。擅长将建筑思维运用到室内空间中,将当代艺术与中国传统文化相融合。多次获得业界国内国际大奖,作品被国内外多家一线家居杂志刊登以及众多媒体报道。
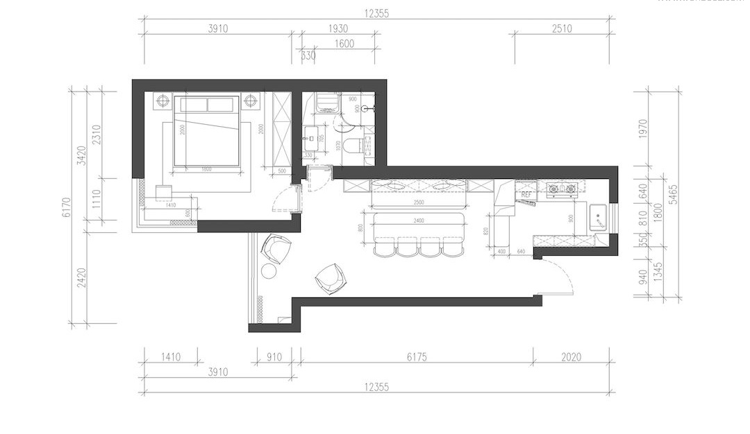
坐标:北京朝阳
改造区域:全屋改造
改造面积:55m²
改造预算:12 万
△ 户型图
改造需求:同样是设计师的刘道华并不满足于传统的功能性改造,而是提出了自己对于空间客厅概念的新理解,希望将空间功能多样化。“一个家,一桌菜,一群朋友,一张床,我希望不必再去餐厅招待朋友,而是可以在自己家招待;这里既可以做饭,也可以聚餐、喝酒;醉了正好睡在这里,希望改造后能有这样的氛围。”具体需求:1、客厅功能多样化,需要兼具传统客厅与餐饮会所的功能属性。
2、融合传统客厅“家”的氛围与餐饮会所的氛围情调。
3、强化空间整体设计的一致性。
△本期设计师:吴巍
吴巍,专注于生活方式研究的 80 后设计师,吴巍 Design 设计总监,共合设联合创始人,ADCC 中国生活艺术学院副秘书长,中国高级室内建筑师,中国景观规划建造师,中国建筑装饰协会高级室内建筑师。他把设计的过程当作“谈恋爱”,用心经营着每一段“感情”。
改造前后对比:01 老旧小屋化身城市“第四客厅”
△ 改造前
空间陈设着简单的家具,房间整体显得老旧,屋里沉闷而单调,房间采光不好,空间利用不到位,与业主对于“第四客厅”的想象相去甚远。
△ 改造后
设计师精心挑选的家具,温馨而简约,加大客厅的空间利用效率,也使得空间能够同时容纳更多来访的朋友,客厅的会客功能也进一步增强。
△ 改造后客厅和餐厅融为一体,定制的 2.4 米餐桌,不仅可以提供 10 人聚会同时用餐,还可以成为书桌、游戏桌等等;沙发后的展示柜可以放一些书籍以及艺术品,来体现主人的品味。
△ 改造后
增设的定制尺寸的展示架,兼具收纳、展示与调节场域的功能。在为空间提供更多收纳空间的同时,其围合而形成的场域,也使得来访者坐于沙发上时产生类似餐厅卡座的体验。
△ 改造后
在施工过程中,设计师发现电视墙面有各种产品且不能改变位置,导致墙面无法统一。临时调整了设计方案,以蒙德里安格子画为灵感,让整面墙变得更为统一,使原来是弊端的产品,反而成为了墙面的亮点。
△ 改造后地板的选用也是设计师关注的重点,要求严苛的设计师,在寻觅良久之后,选择了防水性能高,耐磨防刮擦,可以快速安装的环保地板—得高地板,同时在厨房和客厅一体铺设。
02“建筑式美感”重塑厨房做饭体验
△ 改造前
改造前,厨房显得拥挤而陈旧,水池、灶台、柜子、冰箱等,将本就狭小的空间填充地满满当当。同时,厨房里一些陈年污垢堆积,不便打扫而且影响美观,同时也增添了安全隐患。
△ 改造后整体布局上,设计师将厨房轻体墙拆除,使厨房与客厅的空间更为通透。同时又增加了厨房 2.4 米的操作台面,以及储物空间,让厨房变得更为好用。
03 清新蓝调提升卧室空间睡眠质量
△ 改造前
△ 改造后
设计师重新调整了空间的颜色和格调,以现代清新为主题,以简洁明快的设计风格为主调,在整体布局上满足业主两个人生活需求。浅蓝色的空间视觉,为空间增添了自然舒适的氛围。
04 以便携性为核心的卫生间改造
△ 改造后
设计师将马桶与淋浴间分开,做到干湿分区,同时巧妙地利用壁挂马桶,暗藏水箱上方的空间。考虑到使用的便捷性,另在淋浴房、马桶一侧各增设了一个壁龛,放置沐浴物品及生活用品。
△ 设计平面图
△ 大合影
老房改造tips
1、木制门窗老化,重新涂漆即可焕然一新,还节约成本,钢制门窗老化开裂,很难恢复,建议拆掉重做。
2、光线不好的老房子可以选择白色、灰色、米色等浅色系家具,通过家具的颜色来增加室内亮度。
3、老房改造重点是增大收纳储存空间,选择定制家具,可以完美贴合室内空间,最大化增大空间使用率。
4、无门窗的卫浴空间极容易潮湿发霉,建议加装内部抽风系统,保证空间的整洁明亮。
5、人为增加光源也是改善室内照明的方法之一,可以在房间的四角装上LED,利用反射原理来增亮空间。
客服
消息
收藏
下载
最近
























