查看完整案例


收藏

下载
△ 客厅
人生的本质是诗意的,人应该诗意地栖息在大地上。—— 荷尔德林
理念阐述
河流的精神是大地的寓言,我们通过对于“地景原型”的提取,希望创造一种新的生态住宅。「观 境」是一次对住宅景观空间的全新建构,它预示着生命繁衍不息,也暗示着无尽的自然。
△ 概念图场地分析项目地点位于北京市昌平区天通苑地区板式结构居民楼,原始户型为常规的三室一厅,位于六楼顶层。委托人为三口之家,男女主人是电视工作者,但他们日常对电视使用需求却非常低;还有一个正在上幼儿园的小男孩,活泼童真。所以在这座老旧住宅之中看似涣乱的同时,也承载着一家人对美好生活的向往。
△ 场地分析原始户型三面环窗,中间客厅的四个立面紧邻各方入口,可利用墙面极其短缺,导致使用效率低下。我们试图打破原始的户型格局,将空间进行重构。将阳台作为主要设计节点,通过串联,形成一个开放的流线型公共空间。同时在流线周围设置功能,满足日常生活居住需求,阳台作为一个灰空间连接着室内与室外,也通向了无尽的天边。
△ 改造前平面
△ 分析图
概念梳理
△ 模型图
玄关
入口玄关处设计了通顶的鞋柜与换鞋凳,入户后所有的光口全部打开。有趣的流线型空间动线提供了强大的活动区域,亦感受到空间的尽头通向天边。
△ 玄关
餐厅/厨房
流线转过来是餐厅,富有流线结构感的桌子与空间遥相呼应。餐厅相连接着厨房,沐浴日光和绿荫的同时进行着烹饪和涮洗,也成为了一种别样的乐趣。
△ 餐厅
△ 厨房
客厅通过两个弧形沙发并列组成,同时也构成了卫生间、卧室等私密区的结构边界。
沙发两侧设置书柜提供日常阅读,电视背景柜体为一个杂物收纳柜,可用于收纳日常用品,台面也可作为水吧台使用。
在观影与欣赏阳台两侧绿色的同时,我们突破原始户型局限性,创造出一条如河流般的动态活动区域,可承载孩子与父母日常的活动与娱乐空间。
△ 客厅阳台
两侧的阳台以“景观阳台”为概念,设计了三层阶梯状休息区,与人相对应尺度设计了踏步和坐台,满足女主人高层种植爱好的同时,也可在绿植下享受阅读与休闲时光。
△ 阳台
卫生间
在卫生间中可以享受到“雨中漫步”的体验,透过卫生间的弧形玻璃,可以看到一个双层重叠的弧形环绕形态,形成天然的林中沐浴取景框;通长的洗手台面,为日常家务提供便利;小花砖与绿色柜体也与景观相呼应。
△ 卫生间
卧室/儿童房
木质材料延伸进卧室,整体自然温馨。主卧室的后方设计了衣帽间,承载了强大的收纳功能。儿童房木色墙板通体,为孩子创造独立舒适睡眠区域,在安静中入眠。
△ 卧室书房
半开放式的书房可容纳两人同时办公学习,为一家人提供了一个非常完善的工作环境。
△ 书房
写在最后
「观 境」是一次对住宅景观空间的全新建构,通过梳理“地景原型”,引入流线动线置入场地,连接与户外相邻阳台作为生态景观建构,彻底打破传统住宅户型。同时最大限度引入光线,设计全新观看视点,为“人,诗意地栖居”提供了一种具体化、形象化的居住范例。
△ 轴测分析图
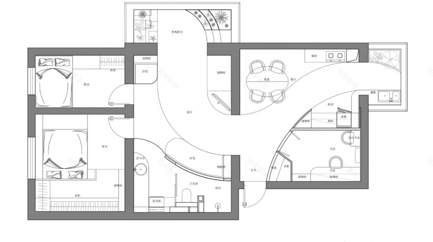
△ 改造后平面项目信息项目名称:观境项目地址:北京市昌平区天通苑地区项目类型:老旧改造建筑面积:103㎡设计公司:戏构建筑设计工作室 XIGO STUDIO 主创设计:刘阳深化设计:张艺馨王丹助理团队:罗爽杨富达图学表现:蔡晴主要材料:特可耐树脂、立邦漆、科定木饰面家具定制:大信橱柜、半朴堂家具定制设计时间:2019 年 6 月--2019 年 8 月施工工长:朱新贵施工完成:2020 年 11 月撰文排版:刘阳、李娅楠空间摄影:立明学术顾问:朱力
客服
消息
收藏
下载
最近
























