查看完整案例


收藏

下载
六朝金粉地,最忆是金陵
有劃設商业设计×和子养生
项目类型 | 商业空间
江南佳丽地,金陵帝王州。逶迤带绿水,迢递起朱楼。——谢朓《入朝曲》
从秦汉时的“秣陵”到西晋时的“建邺”,从三国时的“建康”到隋唐时的“金陵”,再到如今的南京。这个屹立在长江之畔,历经风雨的沧桑古城,赋予这个城市文化感的是它盛衰兴废、反复更迭的历史,这让南京的底蕴深沉而厚。
01STEP信步
就如朱自清所描述的:“逛南京像逛古董铺子,到处都有些时代侵蚀的遗痕。你可以摩挲,可以凭吊,可以悠然遐想;想到六朝的兴废,王谢的风流,秦淮的艳迹。这些也许只是老调子,不过经过自家一番体贴,便不同了。”
本案和子便位于南京建邺区,而建邺亦是南京别称之一。以南京历史为基调,让人在放松的同时,也能感受南京的历史底蕴。
通过设计上光影、材质、 理的选择,以及空间的明暗对比,使空间变得有深意,值得去体验和无限回味。
用现代的手法演绎过去的历史,大厅顶面的正八边形装置,宛如置身于古亭之下。顶面中央的吊灯、地面的八角桌,都与之遥相呼应。
“一簪二钗三步摇”,发钗不仅是装饰物,更是一种寄情的物品。从金钗中提取元素,将情感寄托于其中,好像回到了过去那个物华天宝的金陵城。
▲结构概念 Structural concept
02STILL
依旧接待区在大厅的侧面,用循序渐进的引导方式开启穿梭空间的体验。整体空间上讲究围合性与对称性,玻璃屏风在不破坏整体环境的同时又提升空间的私密感,使两个空间各自独立而又相互依赖。
▲轴测分析Axonometric analysis
蝴蝶刺绣画的卷轴装置,蝴蝶标本的画框,好像随时都有蝴蝶飞出翩翩飞起舞;展开的折扇,吊挂的毛笔,仿佛时刻有文人墨客缓缓走来;颜色跳脱的花艺,为暗沉的空间增添一分亮色;镜面装置增加互动的同时,也起到延伸视觉的效果。
03STAY
材质选用上主要以怀旧质感为主,深沉的石材与木饰面,搭配古铜金和墨绿色为空间烘托复古调性。马赛克花砖,斑驳的绣镜,花色墙纸的搭配使环境更加丰富多元,也为细节部分提供了更为精致的表现。
"秦淮河里的船,比北京万生园,颐和园的船好,比西湖的船好,比扬州瘦西湖的船也好。这几处的船不是觉着笨,就是觉着简陋,局促;都不能引起乘客们的情韵,如秦淮河的船一样。"就如同南京这个城市一般,时间,把这里酿出了独特的韵味。
都说六朝古都,藏的是雄厚帝王气,可若仔细瞧一眼南京,遍地的诗意早已揉碎在骨血里。一门一楼尽显岁月,一砖一瓦皆藏故事。
穿越古城之美的记忆回廊,历史的痕迹重现于空间之中;一边对话,一边重新书写当代精神记忆的新故事。
“十里秦淮生春梦,六朝烟月荟金陵。”和子不仅是一个地理坐标,更是现代人突围喧嚣、修身养性的最佳休闲场所。源于尊贵,始于原创;以足释道,以梦生境。金陵春梦自此缘起。
ABOUT PROJECT
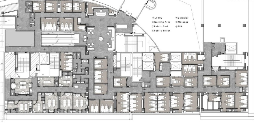
- 平面布置图 -
Layout plan
项目名|和子养生-- 南京店
项目位置|南京。建邺区
空间设计公司|有劃設商业设计
软装设计公司|之几美学
空间设计师|胡文儒
软装设计师|祁双双、邓花花
工程总监|丁骁波
项目面积|1500㎡
设计时间|2020.08
完成时间|2021.01
主要材料|石材,瓷砖,木饰面,玻璃,墙纸,金属
项目摄影|陈铭
视频创作|炮焦罐头映像 Focans Image
ABOUT DESIGNER
胡文儒
有劃設联合创始人/设计总监
有劃設联合创始人
有劃設商业设计 [ E.D.S.T. ]以构建一个具有超前意识的专业设计策划服务平台为目标,完整呈现品牌策划、空间设计、艺术装置等全案服务,立足于探索项目本质属性,从文化、产品、客群及场地条件出发,不回到过去,不摒弃历史,在传承中创新,为用户创造有体验价值的品牌与空间,并成立了自己的陈设零售品牌—之几陈设。
客服
消息
收藏
下载
最近
































