查看完整案例


收藏

下载
是真实,也是虚幻的门。人生有很多未知,我们一点一点去经历,走过一段又过着另一段,不断开启这未知的无尽之门。
> > > PROJECT INFORMATION
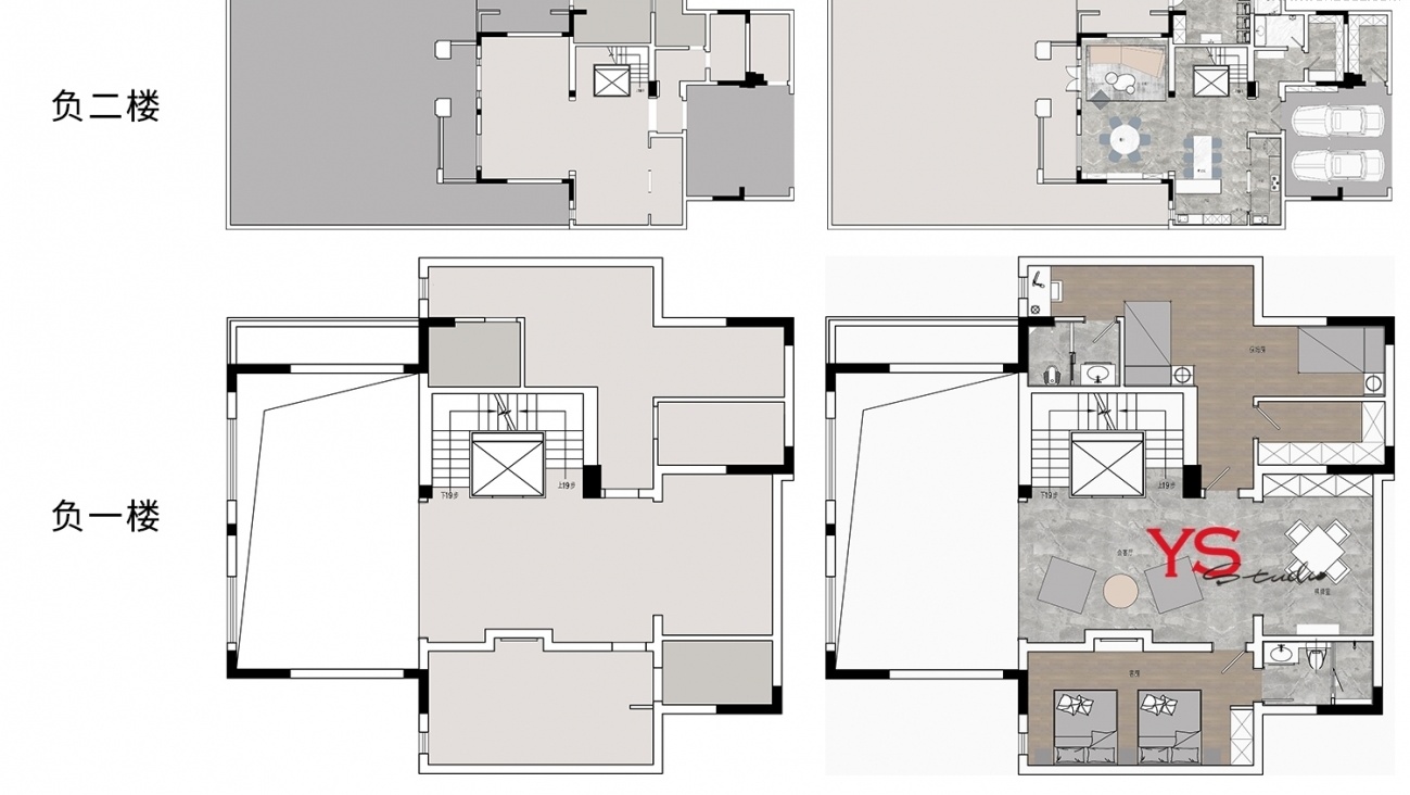
户型结构 | 别墅
项目面积 | 500㎡
项目地址 | 重庆渝北
> > > 写 在 前 面
本案是一个半途接手进行改造的案子。
我们没有对墙体大肆改动,更多的是和客户进行生活方式和后期风格的探讨。常住人口为三人,男女主人及儿子。业主对风格的要求其实是比较统一的,一定要比较耐看,且大气的风格。
在设计修改途中,我们舍弃掉多余的装饰,不要法式与美式的繁复,换掉了复杂的吊顶造型及繁琐的主灯,在这么大的通透空间里采取了无主灯的设计,去繁从简,颇有柯布西耶“去古典主义"的先锋感。> > > 户 型 图
负一负二楼是全采光,少有的独栋的优势,因此光感和通透感超级好。进门的动线就是厨房、餐厅、休闲厅一体化。休闲厅有挑高,层高足够,四面环绕花园,绿植环绕。
地上三层打掉一些非承重墙,让单独的每一个空间更大。
譬如,一层的洗手间区域,做了更独立的干湿分区;三楼的主卧空间,打掉了墙之后,生活动线变得更流畅,衣帽间也分为男女主人各一个独立的储存空间。
餐厨区域/ KITCHEN AND DINING ROOM
整个餐厅是和休闲厅相对应,有了足够的挑高和正面落地窗的加持,这一块区域显得特别大气。
靠墙做了内嵌置物架,并配上灯光。
墙上的画作选取了圆形元素并透着银蓝色的色调,其实业主觉得这个圆形元素有点像麻将里的“八筒”,比较吉利。看得出来,业主是个热爱生活的有趣之人,后期入住时,据说每一幅画,业主都能讲一个故事出来。
望向岛台和餐厅的角度。
整个空间以蓝、灰为主色调,配上层次分明的深浅不一的蓝色丝绒椅,餐桌依旧选择了小长桌和正餐的圆桌两个交替使用。
休闲厅 / LEISURE HALL
休闲厅一览无遗。组合式沙发,磨砂质感的皮质加上一个包裹性超级舒适的单人位,软得足够让你陷进去。茶几选择了错落式的大理石搭配不锈钢,现代感就在这些元素中凸显,一个有造型感的小边几,和沙发的色调一致。负一负二楼有挑高,空间感是足够的,特意选的这一幅墙画,就像一个无尽之门。是真实,也是虚幻的门。人生有很多未知,我们一点一点去经历,走过一段又过着另一段,不断开启这未知的无尽之门。同时,无尽之门也在视觉上加深了整个空间的深度,让整个房间的穿透力更强。画与空间的应用,淋漓尽致。
RECASA 高低错落的茶几组合;FLOS 的吊灯,皮质、布艺、大理石、不锈钢、墙画,各种元素的组合,融为一体。
主 入 户 / ENTRY HALL
主入户。使用频率不太高,用一幅撞色的画作进行妆点,去掉传统入户整体的收纳设计。
电梯过厅 / ELEVATOR HALL
电梯厅和楼梯道这个空间,并没有因为这个区域的功能单一就忽视整个设计,透明玻璃电梯反而成了整个屋子的精髓。
直线条,黑灰范思哲地板砖,玻璃围栏,通透感的电梯,整个现代感在这个空间彰显无一。
来自玻璃电梯和地面砖的投影;顶面、墙面、地面,三面的维度变成了多面几何菱角。
黑白线条抽象画又交叉着雪柳。
N 个平面的美。
玻璃垂直电梯,极具未来感和现代感,再配上屋顶灯光设计,让我想到 007 电影里的一个片段,邦德徒手抓住一座大厦的透明电梯跟随反派,迅速到达建筑顶层。全透明的玻璃电梯配上线条感灯光,让伦敦的夜景一览无余。
客 厅 / LIVING ROOM
客厅电视墙,极简的做法,黑色电视内嵌入墙内,底部一个黑色壁炉,侧面墙体是有层层堆叠的设计,以及隐性灯光的设置。一切搭配很符合后现代主义的元素使用。
主客厅在一楼
客厅延续地下休闲厅的设计构思,用“门”的概念作为背景延伸出去。最开始考虑石材,因为家里有小孩,更换成木纹样式的硬包来做,安全又好看,并且这个纹路的刻画特别真实。
主卧/ BEDROOM
主卧套房和全屋的明亮度相反,走的暗黑色系。
业主对睡眠要求很高,主卧的任何元素都围绕入眠。
深灰色的地台床配深色布艺软包,深色墙漆,深色床尾凳,一切的元素以静谧为主。
次卧 / BEDROOM
次卧的色调和整屋一致,以不同层次的蓝为主色调,再以金属元素作点缀。
客服
消息
收藏
下载
最近


























