查看完整案例


收藏

下载
设计:Fraher 建筑事务所
照片:Adam Scott
地址:伦敦
这间位于伦敦南部的住宅由 Fraher 建筑事务所改造。
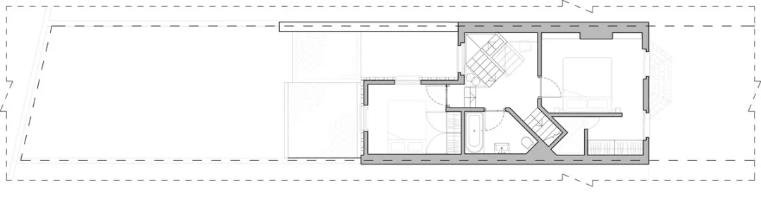
改造前的公寓室内采光很差,还被楼梯占据了大量的室内面积。为了将它变成理想家园,设计师拆除了隔墙重新安置了楼梯,创造出完全不同的空间。
玄关以黄色和灰色为主,设计了洞洞板作为衣架,上下都有储物柜,可用于存放遮阳伞和自行车头盔等物品。
新楼梯将建筑物分为前后两部分前一部分是客厅后一部分是厨房、餐厅形成一种即开放又私密的设计
这个老旧的壁炉供室内取暖,边上的木头是老房子拆下来的木地板。
客厅边一整面墙的储物柜设计能容纳很多物品
黄与黑的色调搭配绘制出了原楼梯的位置
厨房在另一边
橱柜是由一种透明着色 MDF 材料制成
款式简单很有现代感
餐厅位置正对着玻璃天窗拥有足够的自然光粉色的餐桌搭配不同颜色不同款式的椅子形成了一个色彩极为丰富空间
餐厅边还有一扇 4m 高的玻璃门可以通往后方的小后院。天气好的时候一家人可以在室外用餐。
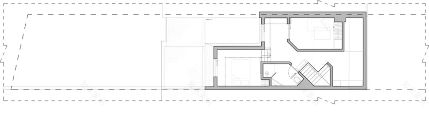
重新调整的楼梯与卧室空间有了平衡,并在楼梯转角处多设计了一个小书房,可以一边工作一边照看孩子。
因为抬高了卧室的地面,使人感觉更有私密性和安全感。
二楼所有的门和过道都用胶合板敷面
通往阁楼的楼梯设计了一条绳索扶手
保证了孩子上下楼梯的安全
在卫生间内
浴缸四周的墙壁贴满了白色瓷砖
橙色的铜制水龙头
与混凝土制成的黑色洗漱台形成鲜明的对比
阁楼是孩子们的娱乐区
墙边设有一个绿色层板
可以在这搭积木、画画、做手工
另一间房是一个休息区,一个较矮的书架,一张舒适的沙发让孩子们任意选择自己喜欢的书阅读。
顶层的淋浴房是一个开放式设计
人字形瓷砖具有动态效果
统一风格的混凝土洗溯台搭配绿色水龙头很有个性
▼平面图
客服
消息
收藏
下载
最近

































