查看完整案例


收藏

下载

翻译
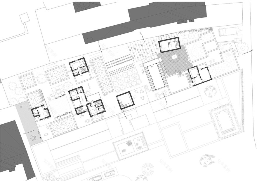
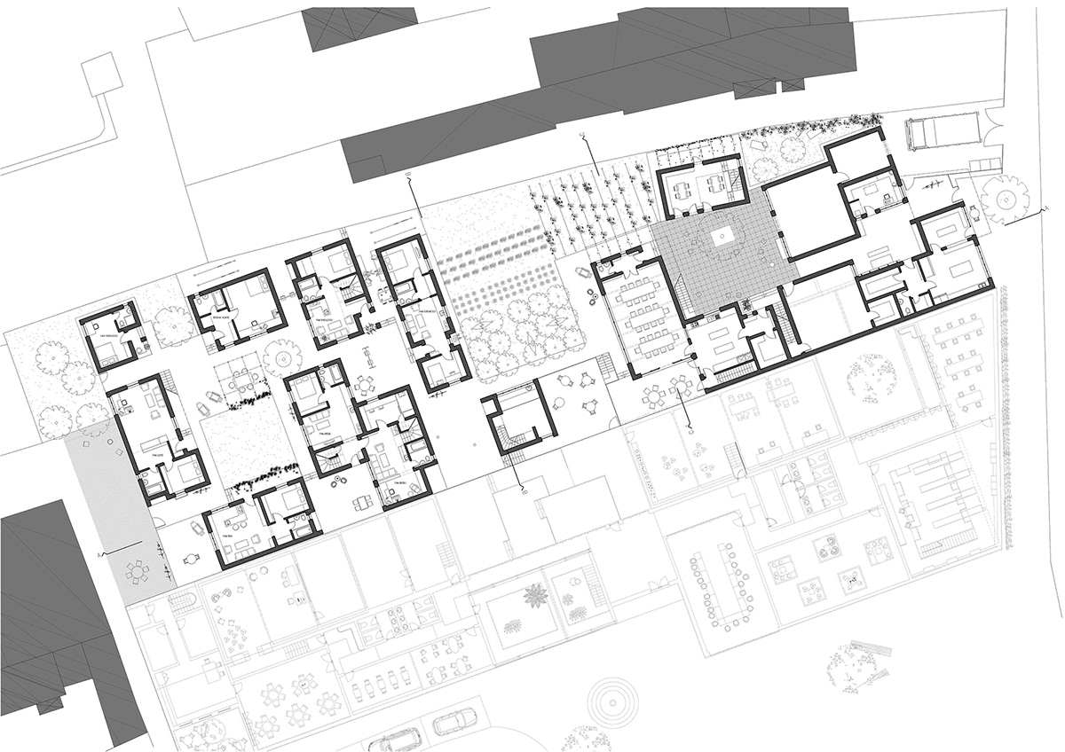
Definirea programului este strâns condiționată de o etapă premergătoare – lectura sensibilă a vechii mahalale Mătăsari, prin prisma transfigurărilor ce s-au evidențiat, de-a lungul ultimului secol, atât în cadrul țesutului urban, cât și la nivelul percepției dualului public-privat, reflectându-se, în ultimă instanță, în relațiile dintre membrii comunității, într-un context instabil politic și social.
Fragmentul urban analizat s-a dovedit a avea un potențial deosebit, mai ales prin juxtapunerea anevoioasă de spații incerte din punct de vedere al statutului juridic sau al deschiderii către cartier, inspirând, prin proiect, trei răspunsuri-experiment, concretizări a trei viziuni diferite asupra societății contemporane: caracterul public și instituțional al centrului pentru nevăzători (proiect propus de Andreea-Ioana Nicuț) în contrast cu cel privat al proiectului de față (cele două parcele fiind adiacente), precum și o încercare de mediere între public, privat și comun, în inima insulei, prin intermediul artei (proiect propus de Magda Juravlea).
Scenariul ia în considerare explorarea unei replici la societatea capitalistă – instituționalizată, tipizată, încă dogmatică, imaginând o evoluție a unei comunități autonome care își propune atât reinventarea relațiilor interumane, cât și reluarea unor conexiuni pierdute în interiorul cartierului. Terenul ales, aparținând, prin dimensiunile sale atipice, locurilor incerte descoperite în interiorul insulei, va constitui suportul deschiderii treptate către cartier: de la privat la comun, ca alternativă de manifestare a spiritului civic, în detrimentul spațiului public, aflat sub controlul autorității.
Domeniul aparține câtorva familii pentru care importantă este, mai ales, locuirea „pe lângă casă” - oameni diferiți pot fi legați prin pasiuni comune (îndeletniciri rămase, de regulă, în circumstanțele unei epoci a vitezei, la nivel de hobby) ce pot fi fructificate pe un teren neutru în care cunoștințele și experiența sunt împărtășite, indiferent de pregătirea profesională (ori vârstă, etnie, etc.) a membrilor comunității, dar și a celor din cartier, către care ansamblul se deschide. Va lua naștere, astfel, un atelier complex, modelat de interferența dintre meșteșug și artă.
© Laura Mazâlu, Andreea Nicuț, Magda Juravlea
客服
消息
收藏
下载
最近










