查看完整案例

收藏

下载

翻译
Your Space, London’s newest co-working hub, is an evolution of the design of the Stephen Lawrence Centre in Deptford. Collaborating with the Stephen Lawrence Charitable Trust (SLCT), Gensler has helped create a mindful co-working environment designed to empower and support its users.
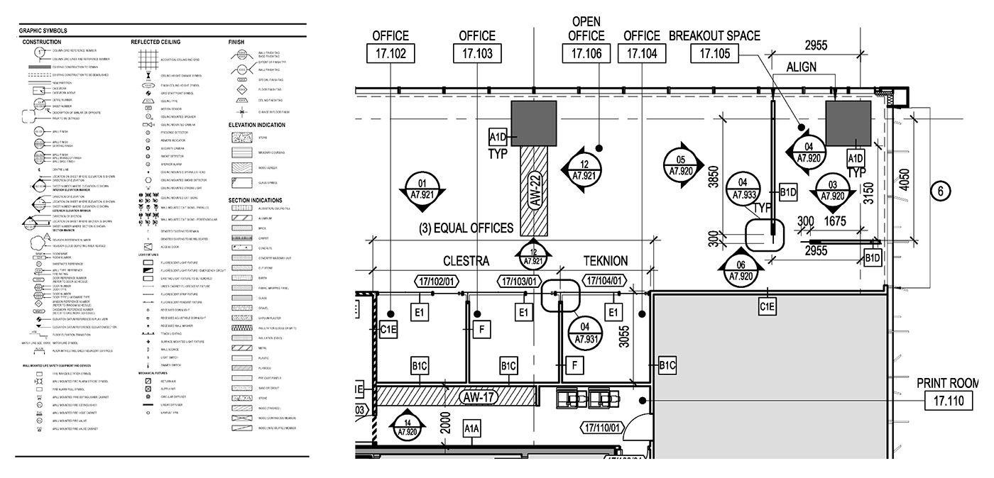
As a space has been designed to honour Stephen’s legacy, we wanted it to represent his own architectural ambitions. We set out to create a place that promoted a sense of belonging for the architectural community, so by using technical drawing symbols and applying them within the space in a very literal way, we were able to create a space which resonated with the buildings users. It's humorous for anyone who has seen an architectural elevation because it's out of scale and out of context, which adds an element of playfulness and works well with the character of the interior design. The monochromatic colour palette honours technical drawings and complements the colourful interior scheme.
Gensler’s biggest design statement within the space is the introduction of Stephen’s favourite colour, the bold orange, across floors, walls and ceilings to create a meaningful, daring volume which connects the front and the rear across all three levels of the building. These volumes have been given a ‘reflected’ treatment, with the electrical fixtures in the ceiling being mirrored as ciphers and elevation markers on the floor – creating intrigue and helping draw people through the space.
The visual language also complements the original, intricately patterned, Chris Ofili designed windows – which throw abstract contours onto the interior’s walls, adding another layer of dynamism to the space.
Photo credit: Gareth Gardner
客服
消息
收藏
下载
最近












