查看完整案例

收藏

下载

翻译
Sustainable Housing
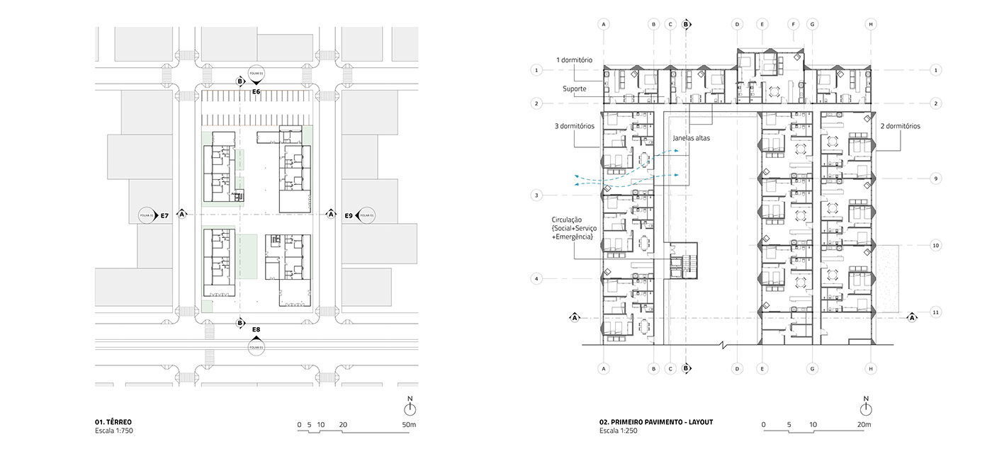
Habitação de Interesse Social Sustentável tem partido dos fluxos e da melhor solução para as habitações em sua individualidade. Os conceitos de sustentabilidade e eficiência energética foram estudados para a maior eficiência nesse conjunto habitacional. Com mais de 3187,30 m² de área verde pelas superfícies e mais de 151,70 m² de jardins verticais o projeto explora o que de melhor a vegetação pode oferecer para o conforto térmico, sonoro e visual dos habitantes. As coberturas possuem o dimensionamento apropriado para instalação dos sistemas de aproveitamento da água da chuva.
Além disso, é previsto a instalação do sistema de reaproveitamento da água potável para tarefas que podem fazer utilização da água
cinzenta, viável para a lavagem de roupas, por exemplo. Em última instância a água pode ser reaproveitada mais uma vez para descargas,
uma das atividades com maior porcentagem de consumo de água em residências. Ao longo de todo edifício, estão dispostas áreas de suporte para coleta de materiais recicláveis, tratamento de resíduos, armazenamento, entre outras facilidades de infraestrutura. Em uma área construída de 6730,50 m², 72 famílias e mais de 296 pessoas poderão usufruir de um edifício inteligente e sustentável, que valoriza os recursos naturais e os conceitos urbanísticos contemporâneos de vida em sociedade, com respeito e empatia pelo próximo e pela natureza.
客服
消息
收藏
下载
最近












