知末
知末
创作上传
VIP
收藏下载
登录 | 注册有礼

房间设计

2021/12/13 00:00:00
查看完整案例
微信扫一扫
收藏
下载
翻译
DISEÑO DE HABITACIONES
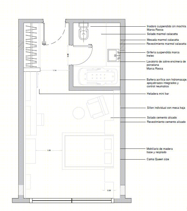
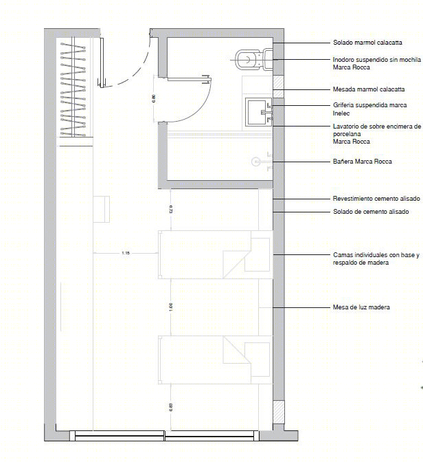
房间设计-1
房间设计-2
房间设计-3
房间设计-4
房间设计-5
房间设计-6
南京喵熊网络科技有限公司 苏ICP备18050492号-4知末 © 2018—2020 . All photos and trademark graphics are copyrighted by their owners.增值电信业务经营许可证(ICP)苏B2-20201444苏公网安备 32011302321234号
客服
消息
收藏
下载
最近