知末
知末
创作上传
VIP
收藏下载
登录 | 注册有礼

FN House · 极简别墅设计丨乌克兰哈尔科夫丨Maksim Muratov 等

2021/11/16 00:00:00
查看完整案例
微信扫一扫
收藏
下载
翻译
FN House
Architects: Maksim Muratov, Maksym Kanivets, Anna Andrianova
Year: 2020
Status:
In progress
Location: Ukraine, Kharkiv
Planning | Exterior | Construction
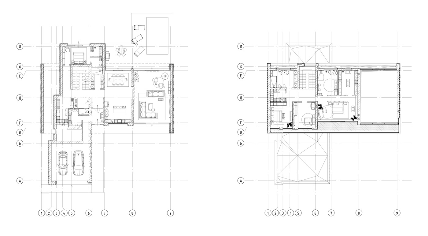
PLANNING
FN House · 极简别墅设计丨乌克兰哈尔科夫丨Maksim Muratov 等-8
FN House · 极简别墅设计丨乌克兰哈尔科夫丨Maksim Muratov 等-9
EXTERIOR
FN House · 极简别墅设计丨乌克兰哈尔科夫丨Maksim Muratov 等-11
FN House · 极简别墅设计丨乌克兰哈尔科夫丨Maksim Muratov 等-12
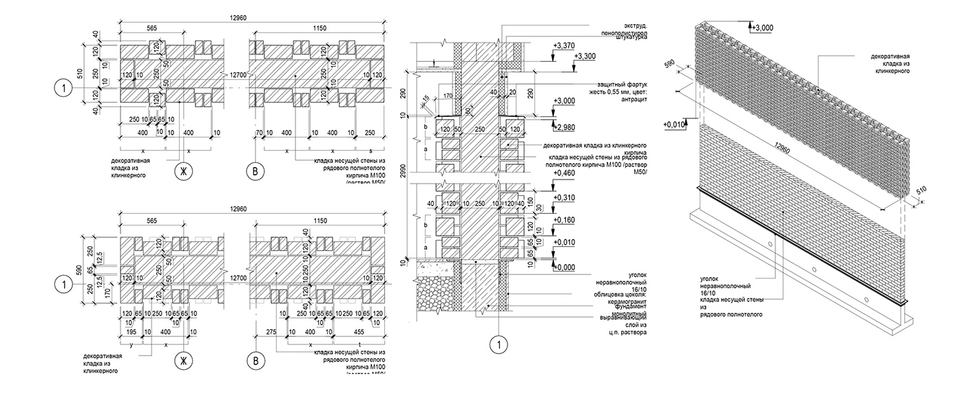
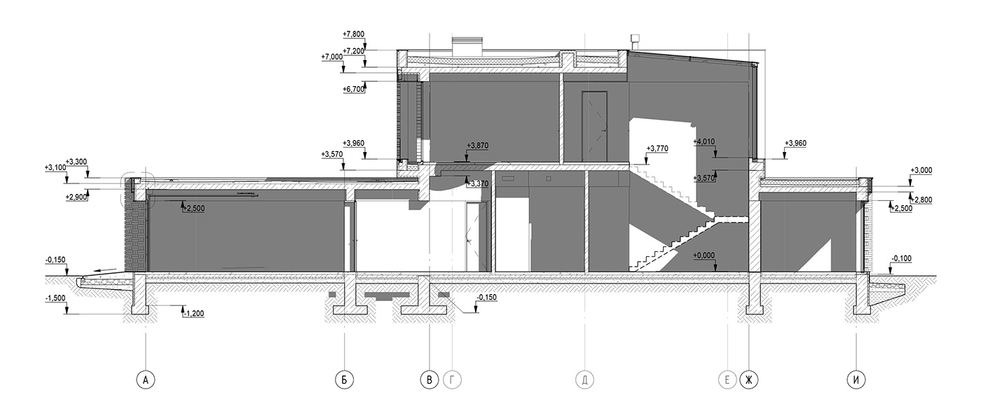
CONSTRUCTION
FN House · 极简别墅设计丨乌克兰哈尔科夫丨Maksim Muratov 等-14
FN House · 极简别墅设计丨乌克兰哈尔科夫丨Maksim Muratov 等-15
Site 
Facebook
Instagram
南京喵熊网络科技有限公司 苏ICP备18050492号-4知末 © 2018—2020 . All photos and trademark graphics are copyrighted by their owners.增值电信业务经营许可证(ICP)苏B2-20201444苏公网安备 32011302321234号
客服
消息
收藏
下载
最近