知末
知末
创作上传
VIP
收藏下载
登录 | 注册有礼
知末案例   /   餐饮空间   /   快餐店

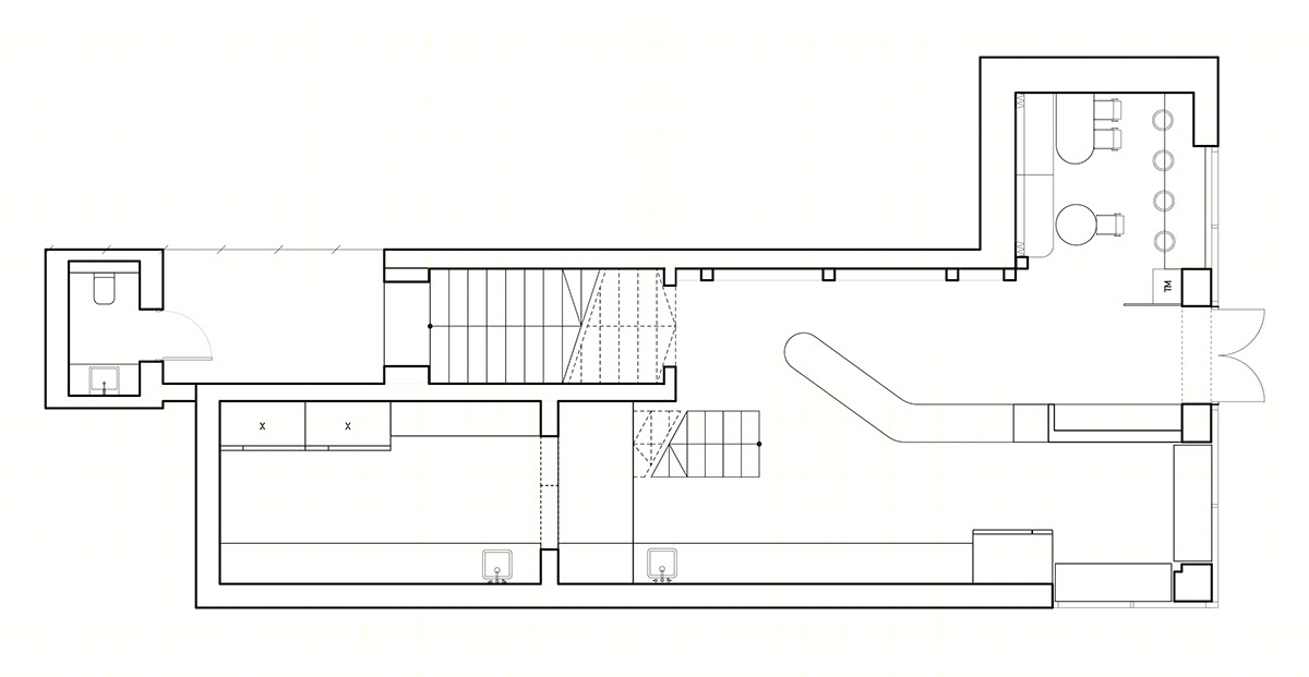
Pizzeria Pomidoros BT 快餐店设计丨乌克兰丨Paliychuk Olga

2021/12/20 00:00:00
查看完整案例
微信扫一扫
收藏
下载
翻译
Pizzeria Pomidoros BT
Location: Bila Tserkva, Ukraine
Project Year: 2021
Area: 94 m2
Design: Paliychuk Olga
Photographer: Mikhail Pavenin
Pizzeria Pomidoros BT 快餐店设计丨乌克兰丨Paliychuk Olga-6
Pizzeria Pomidoros BT 快餐店设计丨乌克兰丨Paliychuk Olga-7
Pizzeria Pomidoros BT 快餐店设计丨乌克兰丨Paliychuk Olga-8
Pizzeria Pomidoros BT 快餐店设计丨乌克兰丨Paliychuk Olga-9
Pizzeria Pomidoros BT 快餐店设计丨乌克兰丨Paliychuk Olga-10
Pizzeria Pomidoros BT 快餐店设计丨乌克兰丨Paliychuk Olga-11
Pizzeria Pomidoros BT 快餐店设计丨乌克兰丨Paliychuk Olga-12
Pizzeria Pomidoros BT 快餐店设计丨乌克兰丨Paliychuk Olga-13
Pizzeria Pomidoros BT 快餐店设计丨乌克兰丨Paliychuk Olga-14
Pizzeria Pomidoros BT 快餐店设计丨乌克兰丨Paliychuk Olga-15
南京喵熊网络科技有限公司 苏ICP备18050492号-4知末 © 2018—2020 . All photos and trademark graphics are copyrighted by their owners.增值电信业务经营许可证(ICP)苏B2-20201444苏公网安备 32011302321234号
客服
消息
收藏
下载
最近