查看完整案例


收藏

下载
◈以日式原木极简风格为主,电视背景墙选择纯色乳胶漆通刷;
◈考虑到空间的储物功能,右侧设计有无手拉白色柜体,与墙面保证一致性,悬空地柜选择原木质感,还能作为点缀增添空间活跃性。
◈为了保证空间的统一性,左侧的门厅处选择浅色压花隐藏玻璃推拉门,一定程度上将空间功能划分开。
◈由于本案例是一楼住户,原始户型阳台是封闭式的,所以客厅绝大部分光线都被墙体遮挡住,设计师将墙体拆除,改造为一整面玻璃防盗门,视觉上空间也翻倍了。
◈客厅主要以白色为主色调,看上去宽敞明亮,阳台处选择超大落地窗,保证室内充足的采光,空间清新明亮,空间整体无主灯设计,搭配上软装浅米色沙发,全屋氛围更温馨;
◈沙发背景墙延续电视背景墙的色系,为了避免墙面过于单调,装上两面展示架,放置上收藏品或者装饰品,整个空间的温馨感满满上升。
◈入户门以白色为主色调,进门处利用墙体打造一面嵌入式收纳柜,白色无手拉设计,干净大方,避免空间过于压抑,于是底部留空设计,再搭配上隐形灯带的设计,氛围感拉满了,柜体中间采用原木镂空设计,可以放置随手物品,从而打造出舒适的空间感,同样搭配上隐形线性灯带,空间层次感十足。
◈考虑到空间功能性,预留空间打造一独立的衣帽间,为了保证入户门入的整洁干净,将门藏于墙面的隐形之中,打造两面干净整洁线条感充足的隐形门设计,从而展现空间的实用和趣味性。
#玄关柜#地砖#穿衣镜#换鞋凳#无主灯
◈在餐厅的设计上,一个超长的原木餐桌,满足家庭聚餐的活动,顶部三个吊灯,将就餐氛围感拉满;
◈整面墙通过全屋定制柜体设计,空间整体储物量增大,兼具橱柜餐边柜,厨房灯功能,造型上简约时尚,无手拉设计美观大方,增加空间层次感,大型电器选择内嵌式设计,空间整齐划分。
◈客餐厅设计为一体化,整个空间选择一体背景墙设计。
◈为了避免做饭时油烟四处飘散,于是设计压花玻璃推拉门将餐厅与厨房相隔,空间功能分明。
◈一字型厨房选择白色橱柜,黑色作为线条贯穿空间感,超长中岛的设计也是本案的设计亮点,没有选择与餐桌相连接,放在厨房区域可以充当一个操作台,既可以做简餐又可以做手工,并且中岛内部还具有超强收纳空间,可以说是好看又实用。
◈超大实用的岛台;
◈主卧的设计延续了客餐厅的白色+原木的搭配,营造出柔和、自然、有温度的氛围。墙面选择白色乳胶漆通刷,给空间增添肌触感,同时让整体增添了许多更细节的设计。
◈床头原木护墙板与木地板相呼应,内嵌上线性灯带的设计,丰富了整个空间的色彩感和视觉感。窗帘选择遮光性较强的百叶帘,可以自动调节光线,营造出一个温馨舒适的休憩环境。
◈考虑到屋主想要一个独立的多功能空间,于是利用预留出一片区域,设计出待客区,利用厨房空间的窗户打造一独立写字桌,一字型书桌满足屋主日常办公学习需求,柜体无手拉设计,窗帘选择百叶帘作为书房采光再合适不过了。
◈空间抬高地台,既能作为休息区还能作为待客区,考虑到空间储物功能,利用墙体打造一面通顶收纳柜,整体简洁大方,空间整体无主灯设计,射灯满足空间的局部照明需求,氛围感十足。右侧预留出空间打造休闲场所设计,几丝绿植相互搭配,营造出休闲惬意的空间。地面选择纹理感极强的原木,彰显出空间的温润大方。
◈卫浴空间以浅灰色为主色调,地面以及墙面选择微水泥乳胶漆通刷,展现出空间的高级感,考虑到屋主需求,结合空间一字型布局,选择浴缸和淋浴的并存设计。玻璃作为干湿分离的隔断,还能保证空间的通透性。考虑到空间整洁性,除了设计马桶之外,还采用有小便池的设计,空间整体更方便清洁。
◈下沉空间一角;
◈一处景观;
◈储物空间;
◈单独设计的晾晒空间;
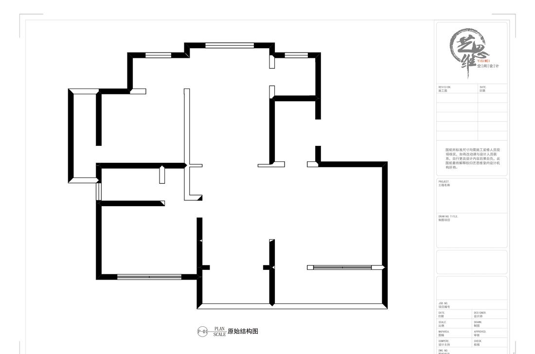
▲原始结构图
◈位于房山智慧雅苑,二手房改造项目;
◈东南西三面都偶有窗户;
◈内部比例协调;
◈室内室内无明显过梁;
◈暖气温度充足,
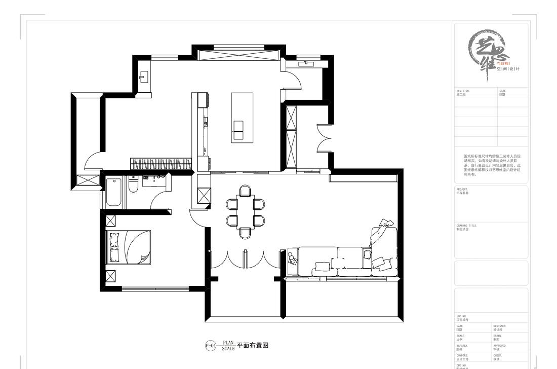
◈客餐厅一体空间。
▲平面布置图
◈进门玄关鞋柜为第一视觉;
◈大量采用白色调和简约的线条让家展现出独特的质感;
◈设置中西厨,满足更多的厨房功能;
◈餐厅空间比较宽敞,采用餐桌加岛台双形式;
◈设计多功能室;
◈全屋色调以木色和奶白为主;
◈空间色彩需要与软硬装相互协调,形成软硬装统一效果。
客服
消息
收藏
下载
最近



































