查看完整案例


收藏

下载
客厅踢脚线部分做了隐形灯带,提升了客厅灯光的舒适度和视觉享受,在提高室内空间立体感的同时还提升了家居的整体质感,在家即能轻松get氛围感。
沙发后的墙面部分是由PU线组成的,与电视机背景墙形成呼应,整体上更加协调。客厅部分的收纳空间并不多,大部分集中在了电视机柜,目的是为了减少被遮挡的自然光线。
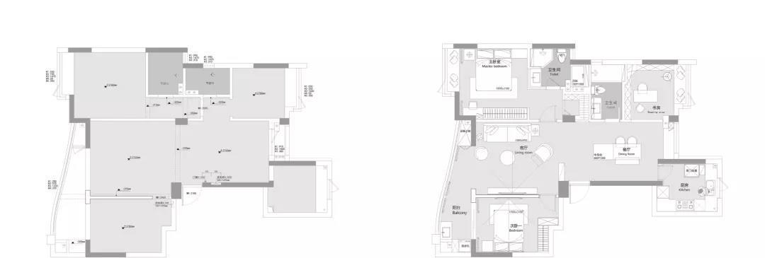
为了区分功能区域,在客厅与飘窗接连处做了平拱形设计,空间线条由此更具延伸感。拱形设计用其弧度温和空间,提升空间温度增加艺术感和趣味性。
餐厅 岛台搭配原木色餐桌,与客厅形成呼应。岛台的储物空间可以根据业主的不的生活需求进行动变,与餐桌接连处做了移动电源,一起在冬日里和家人们暖火锅吧~当然,也可轻松满足办公需求。
飘窗部分用实木板抬高地面,一方面灯带得以延伸,另一方面增加了空间的层次感。同样的,在设计上沿用了客厅的平拱型作为书房与餐厅的隔断,区域的条理性更加分明。
为了弱化吊顶线条过于方正,连接书房部分的平拱形及飘窗吊顶错落有序,叠加效果更显层次。原木软装搭配使房屋更加温柔舒适。
业主是教师职业,对于书籍的收纳与安静的阅读环境有一定的要求,全开方式书房将自然光引向餐厅,大大提升了全屋的视觉面积。业了利用飘窗高度可以作为阅读、喝茶区域。
厨房部分以白色与灰色为主,灰色大理石文理更显清爽。
卧室、厕所都做了隐形门,公共空间更加利落宽敞,私密性也十分考究。
结合整体空间色调,为主卧的装修框架奠定了基础。木格栅背景墙呈现返璞归真的自然质感,原木的自然感还能给予居家环境温馨安宁。
梳妆台贴近飘窗,沿边与衣柜连成一体,节约空间的同时还有美观性。墙面镜的独特采光效果使整个房间充满柔和光线。
主卧浴室做了透明玻璃,透光度与空间感效果都很突出。除此之外,玻璃隔断将实用性与美观集于一身。
父母房在门后及床边都做了收纳柜,极具功能性。选择床头吊灯搭配,格调感油然而生。一起感受早晨的第一缕阳光吧~
房间连接阳台洗衣区,动线合理明确,生活更便捷。床头背景墙上半部分凸出4公分,便于嵌入灯带,造型感加分。
客服
消息
收藏
下载
最近





























