查看完整案例


收藏

下载
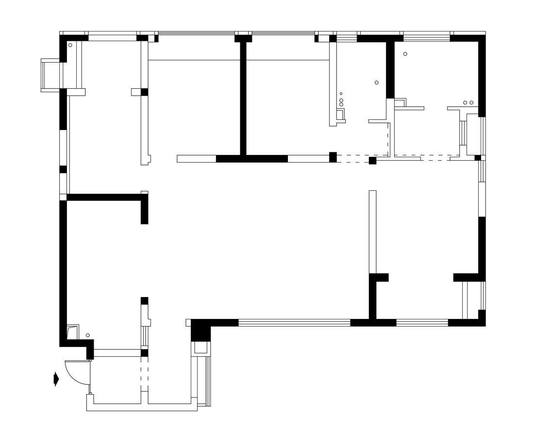
原始户型存在的问题:
1入户非常狭小,没有大平层气质
2厨房窗户很小,自然采光不理想
3卫生间外露的管道比较多
4主卧室的门和电视墙处在同一面墙上,对着客厅的过道,隐私性不是很好。储物空间也不好安排。
5左上角房间连着生活阳台和设备间,不适合住人,空置概率很高,浪费空间。
改造后的平面:
1、入户扩大,空间方正开阔
2、厨房将异型的烟道管道部分,让给了入户。内部空间变得方正,同时开打窗户增加自然采光,也增加 了厨房的通透性。
3、卫生间通过墙体的挪移,将管道隐藏到墙体内。
4、主卧室的门改变方向,并后移。保证了私密性的同时,给床尾留出完整的储物空间。
5、与生活阳台相邻的房间做成了活动室,并与儿童房用折叠门相隔,灵活可变,提供了幼儿玩耍和亲子阅读的空间,大大的提高了利用率。
客厅是家人共融的空间。物质生活的诗情画意,是一家人之间的相互陪伴陪伴,更是内心世界的守望与境界。整体空间以大面积的白色,搭配灰色、点缀黑色,让空间感由浅及深,更显层次。
开放式格局的客厅,采用了普拉多形式的定制沙发,可根据需求进行组合调整,极大的增强了客厅的灵动性。再搭配一把设计感十足的黑色大象椅,提升空间气质。
电视墙采用与定制柜同花色的板材。简约和互相呼应。
水培植物给客厅一角增加了绿色的生机。马醉木保鲜期长,形态自然,非常适合这个风格。
沙发是可以随意调整靠背,既可以对着客厅也可以对着窗户。非常适合动线灵活的客餐厅。
客厅与餐厅是连在一起的,沙发是两边都可以坐的,既可以对着客厅也可以对着餐厅或窗户坐。坐向自由。随意切换。
客厅侧面的柜子,提供了完整的收纳空间。是保证客厅整洁的前提。既是实用家具也是颜值担当。
黑色作为点缀出现在空间中,给整个空间增加一点沉稳的质感。
棉麻带给人的亲肤质感,整体布艺材质自然休闲。
厨房和入户之间做了一块窗户。使原本没有采光的厨房,拥有了自然的光线。做饭的时候也能第一眼看到回来的家人。多了一份守候、一份迎接。
厨房的电器、餐具、厨具等种类繁多,所以在设计时就更需要注意细节上的打造。一个便利整洁的厨房空间,能够让烹饪变成一种享受。
餐厅与客厅相连,使用浅色哑光岩板桌面,简约硬朗。灯具的的线条带来自由形态的补充。
床头使用简单的半高护墙板。整体简约。
床尾也是完整的收纳空间,轻松hold住四季衣物。小书桌做临时办公和阅读。
儿童房使用上下高低床,满足了小朋友活泼好动的特点。
儿童房分为了小朋友的活动成长区域与睡眠区域。三岁男孩的世界充满趣味、想象力以及冒险精神,活动区域充分满足他求职探索、日常活动的同时,也打造了充分的储物空间,满足他的成长需求。
活动室与儿童房相连,打开空间的折叠门,可以与卧室客餐厅联动。分为了小朋友的活动成长区域与睡眠区域。三岁男孩的世界充满趣味、想象力以及冒险精神,活动区域充分满足他求职探索、日常活动的同时,也打造了充分的储物空间,满足他的成长需求。
客服
消息
收藏
下载
最近


































