查看完整案例


收藏

下载
入户大厅
门厅堂口,高耸的三段式拱券门楼造型彰显着宅子的高贵身份。大厅为一二楼挑空区域,拱券洞口和入口两侧的落地大窗设置,保证极佳采光的同时进一步的展示了气派大宅的格调。
入厅,爵士白地面与大理石壁炉的呼应,像冰与火的碰撞,带来强烈的视觉体验。背景墙色泽与纹理天然有机的结合,让石材有了诗意的浪漫,一整块的晶莹剔透将材质之美表现的淋漓尽致、大气恢弘。石材是法式不可或缺的经典元素,但其高冷的外放情绪会让空间沾染过于凌厉的脾性,不宜于家居生活,于是我们注入暖灰的色块来进行调和,为居者带来舒适的身心感受——洁白天花和雾灰墙面在辉映交织,在护墙板线条的细腻雕刻下,优雅且精致的贵族气质又得到了一次升华。
白色、拱券、柱头,都是法式常用的经典元素,善用挑高的优势,将造型背景作为空间精致度的绽放点,无疑是设计中一个不错的表现形式。
家具上选用了亮色来进行提鲜,营造优雅有致又不失活泼的待客空间。
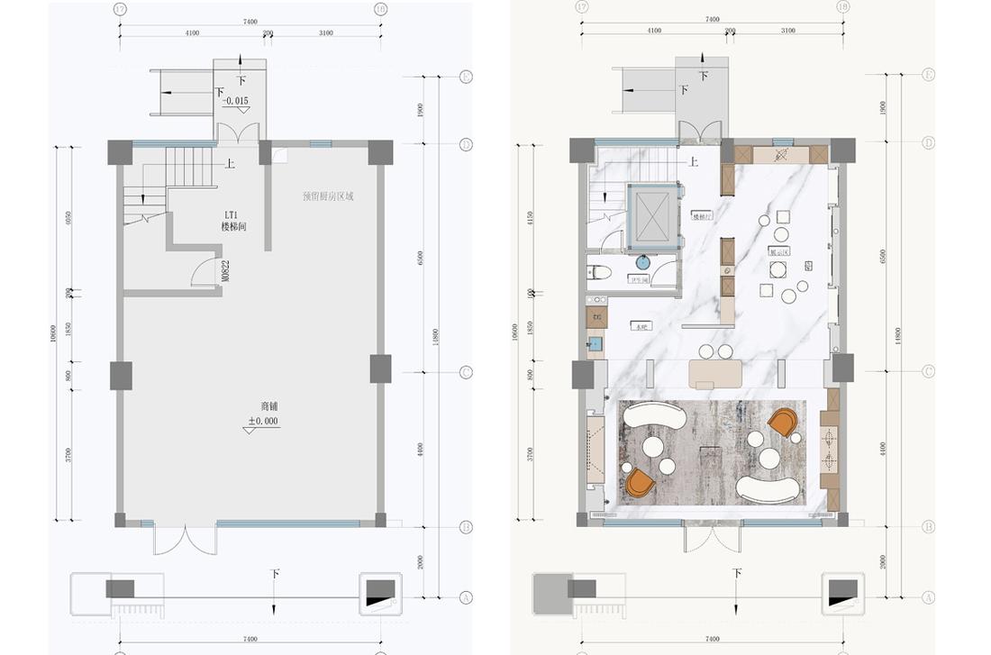
第一层户型图
艺术走廊似浓缩的美术馆的一隅,对称连续的拱券造型和灰白色调延续了大厅的模样,在这种一致性中视觉及心理感受得到深深的陶冶。
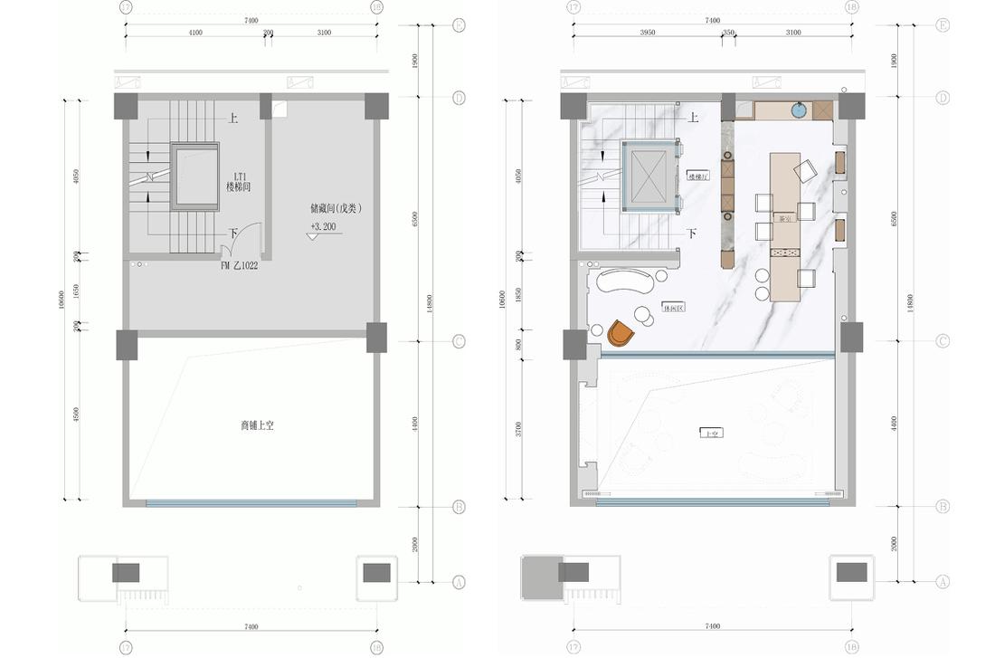
第二层户型图
列兵般训练有素的罗马立柱栏杆,统一着装、英姿飒爽,感官上获得一种宫廷式的尊荣体验。
二层茶室
经廊道来到二层,是待客小酌的茶室。潮汕人好饮茶,此处常待的时间可能仅次于卧室,因此也是宅子中要着力打造的空间。波打线增添大理石地面的材质层次,天花的线条和墙面的护墙板延续着大厅的贵族气质,保持着空间调性的一致性。桌台的尽头,利用拱券造型的凹位设置了一面弧镜,照应门头的同时,相互成影的场景令原本不高的夹层空间,看起来宽敞明亮了许多、也变得富有趣味起来。
第二层户型图
临江一面直接是整面的落地窗,带来绝佳的采光通风,并提供了足足270°的大广角视野将沿线江景一览无遗。两侧挑高的大理石背景墙身姿挺拔,直纹白玉的纹理加上考究的罗马线,又为两位“翩翩绅士”增添了欣长而雅致的贵气,在雾灰色护墙板的衬托下英气十足。家具上选用了明度不高的米灰色皮质沙发,契合空间中沉静安稳的空间情绪;U型的围合布置令入座体验感十分舒适,容积率也足够大,以满足日常家人和节假日待客的功能使用。壁炉两侧放置了鹿角椅,别致的造型和跳脱的爱马仕橙配色为空间注入了欣喜,打破了原本过于冷静的气氛,以平衡居者的空间感受。
三层起居室
相较一楼的大厅,三层的起居厅更加的完整,没有过多动线的分割,且不同一二楼的待客属性,三层以上空间已经属于私人领域了,因此在材质的选用和家具的组合上也更加细腻精致了。
浓郁的色彩与画作相呼应,明亮醒目、热烈昂扬,呈现一股毕加索式奇幻深沉的艺术氛围感。
三层餐厅
尊重原本固有的空间态度,选用了圆形餐桌。功能上,圆形餐桌在入座使用方面更具包容性,也能在用餐过程中增进家人之间的情感交流。形体上,圆形餐桌则更显优雅本色,经明晰如昼的水晶灯烘托,营造出娴静温润的空间美感。
三层厨房
大L型的台面布置,使厨房满足日常任何情景下的操作使用。爵士白与低饱和度的蓝灰色柜门,搭配出了一种宁静优雅的空间气质,令烟熏火燎也变得精致起来。
厨房可能是家中最杂乱油秽的空间,但剑走偏锋,不同材质、不同造型、不同肌理的白相互融合,展现一个极致纯粹的干净模样,以至尊重、敬畏、不忍污染她。
精细的器皿餐具是生活品质的展现,法式的仪式感不仅仅是琳琅呈前的闪耀,更是对纷繁世界的热爱和敬仰。
第四层户型图
临空走廊的尽头,是平日里汲取艺术养分的好去处。明亮洁白的护墙板、罗马线,仿佛是摊开了的文艺复兴时期画卷和五线谱,古典艺术的浓烈气息在空间里悠扬起来,滋养并升华着宅邸的精神世界。
四层油画区&钢琴区
眼前:窗外,江上烟波透过葱翠浓淡相宜;窗内,顶上晶莹映着流光熠熠生辉。静好,往往就在这一望眼、一刹那,一个定格之间。
克制内敛的米灰色墙布装扮着床头,而小巧的金属灯具跳脱着,插进米色与胡桃木的对话,透露着一个饶有心思的空间——鲜明亮丽的明黄和孔雀蓝的加入,有一种自在奔放的南法风情扑面而来,令人心情愉悦明媚。
第五层户型图
五层套房A
五层套房B
另一间房,冰淇淋一般的清爽柔软、且透着一阵阵优雅的甜蜜。低饱和度的用色在棉绒质地家具的表现下温柔舒适,有序的床头软包提炼出空间的丝丝优雅,淡蓝的墙面似拂面而至的江风吹散空间中稍稍的腻重。
俏皮可爱的玩偶摆件,暴露了居者童真无虑的心理年龄。
五层棋牌室
老话讲:“小赌怡情。”亲朋好友相聚,就在自家来一场“不伤筋动骨”的牌类游戏,自是再惬意不过了。精致的壁画背景、美酒杯盏,加上“百家乐”桌台,宛若置身澳门一般,足不出户即可感受“威尼斯人”的乐趣!
第六层户型图
六层主卧
主卧的床头运用对称的硬包营造了一种空间的秩序感,彰显了当前空间的尊荣位置。不同其他房间,暖灰的调性带来了南法慵懒和煦的空间气质,令每个角落都弥漫着自在舒适的气息,即使再疲惫的身体在此都可以静心宁神、获得夜夜好眠!
六层衣帽间
灰玻作了衣帽柜门,相连着胡桃木纹的人字拼地板,搭配皎洁精致的墙面;每一件家具,每一处肌理,都似乎在诉说着居者的生活品味,过往的故事与沧桑,如今的利落与洒脱,一切在时间里自然发生。
六层书房
窥见书房,通体黝黑的书桌凝聚着空间的气息,视线不由自主的被吸引。简朴的造型,稳重有致,与精致物件的搭配,呈现出一种迷人的复古感!
六层主卫
精致的卫浴工艺能够惊艳般的塑造生活的质感,生活得越久,越能感受到工艺的精妙效用。浴缸绝美的流线轮廓,等待着水流缓缓倾泻而下,黄铜质地的花洒龙头闪耀着精雅的品味与仪式感,沐浴变成了每日心之所向的生命体验。
第七层隔层户型图
七层儿童娱乐区
阁楼斜面天花与玩具装置承载着孩童的梦境,无论是关于大海还是宇宙,他们总是有无限的想象力。别小瞧看似随意的一件物件,它有可能会将胸怀辽阔、视野宽广等无形的价值观从小根植于孩童的心中,你能说TA的未来征程不会是星辰与大海么?
一面记忆的造型收纳墙,便让这娱乐活动区秩序井然、自在舒适。这里有着迷人的魔力,好的空间会凝固时间,有时甚至如同鲱鱼罐头一般被记忆长久封存。看似冰冷的瓷砖,看似各具特色的家居单品,其实都有着自己的生命力,它会在无形之中影响人的思绪情感,让你有丰沛的生活体验。
好的设计总是离不开光影,天光、灯光,加之镜面反射,单一的空间会因为明媚的光影而显得更具层次和趣味,尤其宽阔的客厅空间会因此显得更为优雅。
世界骤变,榕江却还是那样,静看人来船往;但愿这法式别墅多年以后也是如此,优雅不减、光彩依旧。
客服
消息
收藏
下载
最近




























































