查看完整案例


收藏

下载
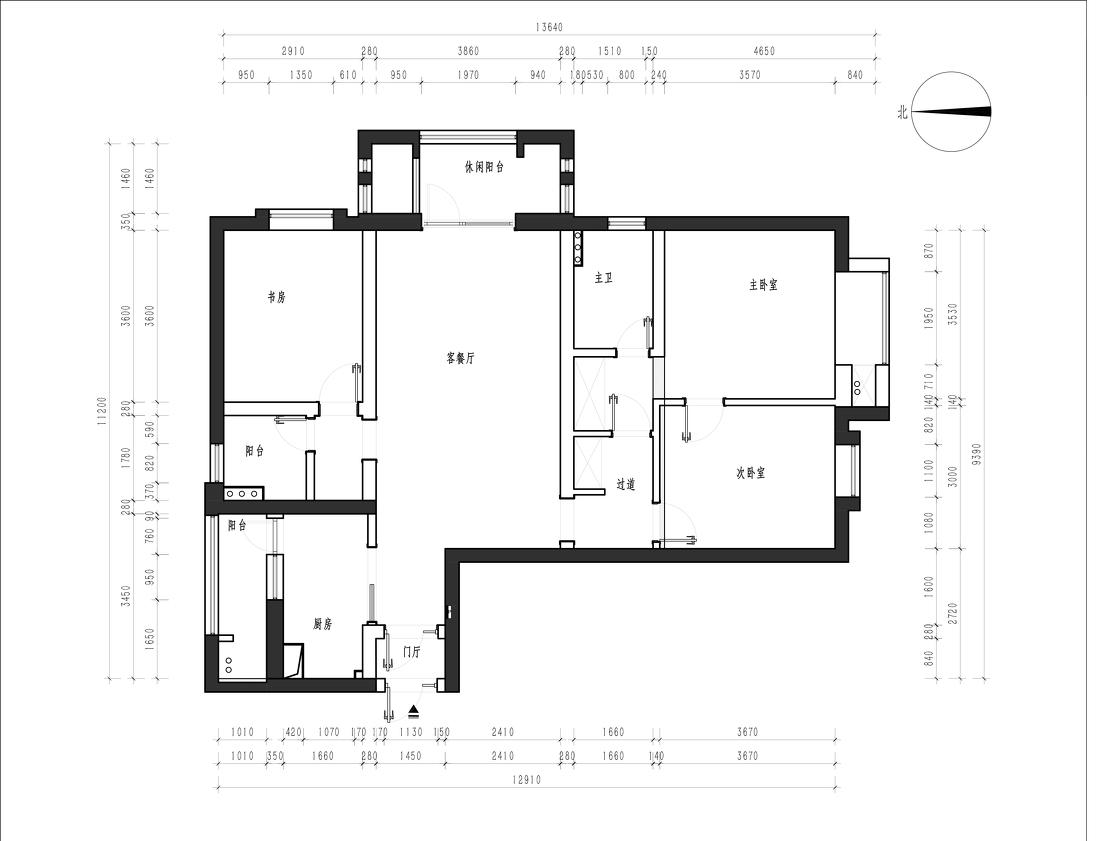
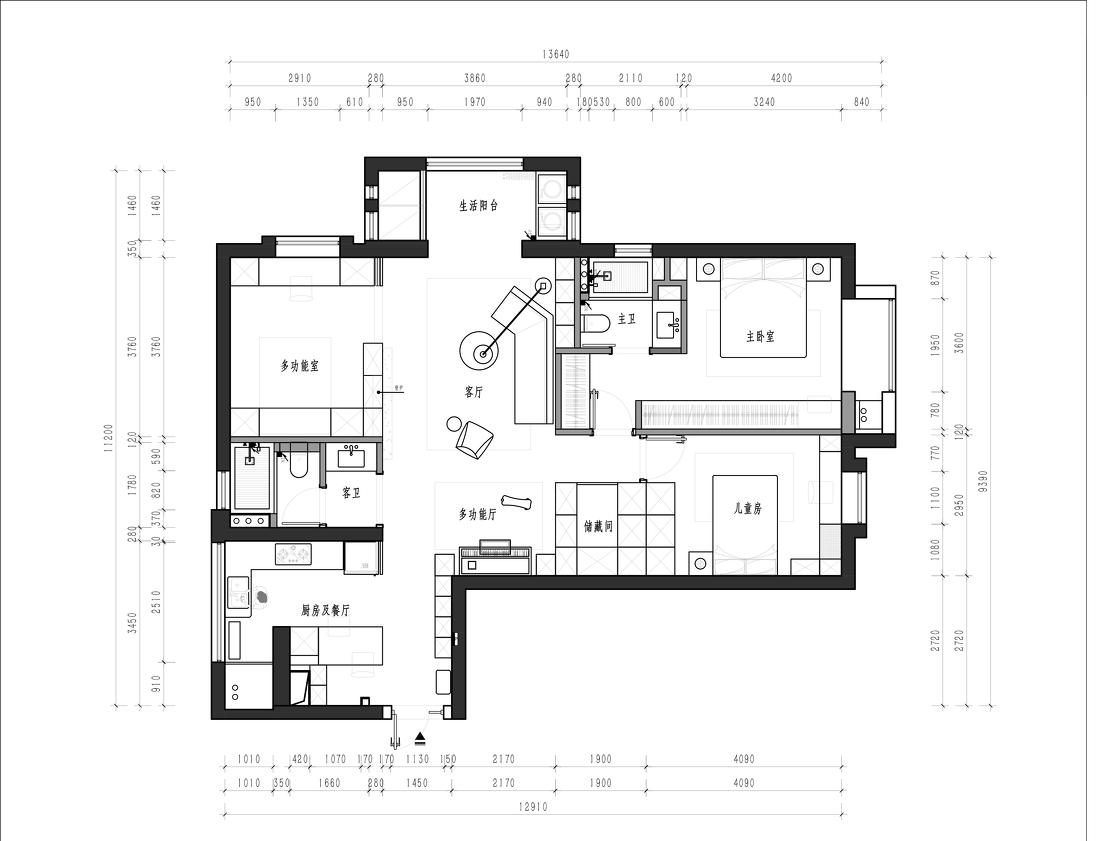
原有结构还是有很多改造的可能性的
厨房与阳台的结构墙对改造是个难点
空间进行了重新的划分
重点是改变次卧室入口
定位多功能室与客厅公共空间相连
形成横向,纵向贯通的视觉空间
放大空间感受
增加储物间的功能设置
扩大主卧室的储物空间
儿童房利用飘窗设置书写空间
各自独立,动静合理分离
入室的第一眼客厅的复古边柜碎碎撒进客厅的阳光明亮的餐厨空间黑色藤编餐椅复古做旧色调的地板黑白间色的地砖和空间自然的材质汇聚一室共同融汇出明亮而和煦的空间氛围
舒适的家往往不需要刻意的去宣扬一套舒适沙发一张柔软地毯一盏暖意灯光一本翻开未读完的书...一方空间欢喜自生
客厅没有电视机背景墙
白色大理石内嵌的蒸汽壁炉作为烘托氛围的重要点缀
天然石材的粗狂与柜体的哑光质感
在“燃燃升起的火苗”中相融
见一次夸一次的好物
是整个客厅的视觉盛宴
暗藏式投影幕布解决日常观影需求
简约的石膏线条
无把手的门板设计
铜色的落地灯
现代造型的藤编边柜
奶油色模块沙发
是繁复与现代的对比及融合
阳光洒落
坐在舒适的沙发上
享受着自然馈赠的光线
让自己沉浸在书籍的世界
新的一天
在安静的氛围中开始
客厅与阳台间的移门取消
阳台的落地窗阳光肆意洒入室内
门洞是边角通过弧形处理柔和了整个空间的视觉体验
不得不说真的可以窝在家里一整天都不想出门的哈哈
餐厅和厨房结合一体
最大化利用空间
和厨房操作的结合方式
餐桌设计可拉伸方式保证解决临时会餐需求
三联动移门保证可开可合的餐厨需求
屋主说整个客厅希望大部分是以家里的小公主为中心考虑。8 岁的女儿在家的时间为多,喜欢跳舞及弹琴,所以给予日常客厅功能的活动空间外,需要增加儿童活动区。我们将钢琴区域预留的很宽敞,在给予小朋友空间感的同时也希望她能享受在这个环境里。小朋友的钢琴声在整个空间里声声响起,父母脸上喜悦的笑容以及时不时传来鼓励,其乐融融的氛围,是屋主想要的居家环境。
阳台晾晒区域设置在洗衣机柜的上方,最大化的让阳光肆无忌惮的进入客厅,拓展公共区域的空间感。
我们将原客厅和书房的墙体拆除后,将整个空间做了半开放,加上设有一大面的镜子墙,使得原本显得有些局促的公区一下子就开阔起来。集书房,客房,舞蹈室为一体,在来客的时候,下翻床设计这里可以封闭成一个临时的客房供使用。如若爸爸回家在书房工作的时候,也可以和孩子互动。
主卧只保留了床头两侧的阅读灯整体空间做了无主灯设计将起居室整体硬装沿用客厅主色调奶油色加入少量的黑灰色做点缀软装色彩的加入让整体空间感更加生动有趣又不失精致协调床头一边壁灯一边吊灯是根据客户自身生活习惯来调整的透明玻璃质感透过散出来的灯光温馨且精致
区别于主卧室的基调,儿童房更为柔和温馨。粉色的床与床品是小公主的温馨小天地。沿着窗户设计的书柜书桌,既不遮挡采光,又能巧妙合理的让空间更生趣。跳色的磁力板可以让小朋友发挥她们的无限想象力。房间不只是睡觉之地,更是孩子独立探索的秘密基地。成品的书椅,成品边几,可以根据小朋友成长的阶段性来更换。
餐厨一体式的设计节省空间同时满足收纳墙面设计上保持纯粹减少层次繁复的设计隐藏式的收纳规划带来了独立空间又不显狭窄拥挤空间干净整洁的同时也十分的实用选用白色岩板餐桌搭配自然元素藤编座椅简约而不简单的色彩与材质运用搭配让整个用餐场景像被赋予法式复古的氛围感里治愈温暖
墙排龙头是客户一开始就想要的设计,更能节省台面的空间。客户说我就想要一个很好看的浴室镜,不喜欢传统的镜子后面带储物,所以细节考虑。侧面凹进去的壁龛解决了日常洗漱用品的收纳问题,灯带的氛围感映衬着背景哑光的人字拼墙砖,石材的肌理感,更凸显空间简约质感。
客卫干湿分离选用纯色砖通铺墙地整体性更强极简且干净画重点:哑光砖最能体现空间高级质感哦
客服
消息
收藏
下载
最近






































