查看完整案例


收藏

下载
一进门,绿色的“盒子”将玄关区域与客厅做划分,左边的橘色换鞋凳搭配黑色鞋柜简约高级。
进入客厅,以白色基调贯穿整体空间,配以墨绿色和原木色为点缀,通过家具材质以及色彩的跳跃将沉闷完全打破。将原有阳台打通做为餐厅区域,客餐厅一体化扩大了空间的视觉感,变得通透。常规的长方形餐桌占据面积大,导致动线不畅,设计师选用了圆桌来弱化直角带来的动线不畅。
橘色沙发清新而亮丽,黑色圆形金属茶几沉稳而厚重,米色的沙发椅内敛而明亮,不同材质、颜色的碰撞在一起,增强了空间的视觉感,又不失家的温馨。
无主灯灯设计满足了业主不同的用光需求场景,轨道射灯可以为客厅区域创造充足的照明环境,可根据需求随时增减光源;嵌入式射灯作为局部采光,烘托气氛。
客厅径深3.4米,设计师在沙发背后设计了一组径深35厘米的通顶收纳柜,局部开放区域可以放置书籍、影音、装饰灯,封闭区域可以用来收纳日常生活物品。
通顶收纳柜局部门板采用百叶门设计,将空调“藏”在其中,让整体空间更加统一美观。
利用连接阳台和客厅的承重墙体两侧凹面,定制餐边柜和储物柜,满足早餐、简餐的需求。木色餐边柜和鹅黄色的窗帘搭配相得益彰。
设计师选用了谷仓门作为厨房门使用,谷仓门造型别致,可作为空间装饰一举两得。厨房一侧墙面做了半墙黑板墙,在上面写写画画,激发孩子创造性的同时家长也不用担心墙面清洁问题。
黑白配色的厨房简约大气,嵌入式洗碗机解放双手,让更多的时间来陪伴孩子、家人。
主卧长度为4.54米,如果放置普通一字型衣柜空间会大大浪费,采用L型转角衣柜增大了储物面积也避免了空间的浪费。靠床衣柜悬空区域可以作为床头柜使用。
顶面白绿撞色拼接设计,让空间充满活力。
女儿房主要以明亮柔和的色调为主,儿童床由于没有成品,设计师几经辗转最后从某宝找到了一家做工、性价比都不错的商家进行定制。经过不断地沟通、调整最终呈现出理想的样子。
女儿房的外侧是设计师特别为家中的两个小“神兽”设计的玩耍区,地面抬高做地台,一侧做满墙定制收纳柜,地台下方以及收纳柜超大的收纳空间满足了孩子玩具、绘本等的收纳需求。地台铺上软垫孩子可以坐在上面尽情玩耍。
儿童玩耍区厨房一侧墙面下方设计乐高墙,上方预留了与厨房互动的窗户,家长做饭时也可以与孩子沟通和交流。
男孩儿房入通过玻璃隔断围合,用玻璃隔断代替墙体,白天让空间通透明亮也可以作为书房使用,晚上拉上帘子,就变成了宝宝的小天地。
卫生间进行干湿分离,利用凹型墙面放置洗手台,洗手台一侧放置家政柜,便于收纳清洁工具等。洗手台对面空间放置洗烘一体洗衣机和冰箱,冰箱放置在靠过道儿一侧,合理布局空间,释放了厨房压力。
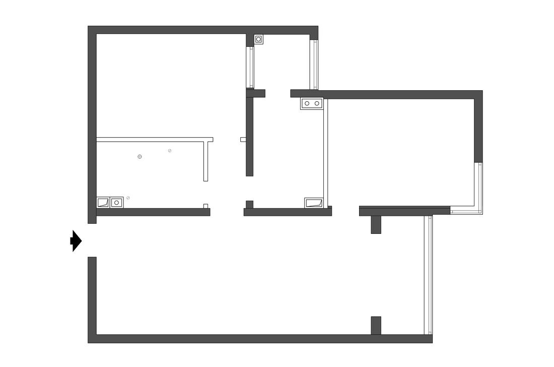
户型改造前存在的问题:
1、原户型是一个比较规矩的两室一厅的户型,业主一家四口(一儿一女)的幸福之家,做为过渡性住宅,业主希望可以增加一间房间做为二宝的卧室;
2、次卧与厨房的阳台一窗之隔,做饭时,油烟会散发到次卧同时采光性也相对较弱;
3、卫生间为暗卫,卫生间内空气流通差,容易潮湿。
户型优化后空间布局:
1、入户区域右手边,通过玻璃隔断围合,用玻璃隔断代替墙体,白天让空间通透明亮也可以作为书房使用,晚上拉上帘子,就变成了宝宝的小天地;
2、将客厅一侧阳台打通与客厅联动,作为就餐区域,阳光最大程度照射进来,让客餐厅空间更加敞亮;
3、卫生间进行了干湿分离设计,利用与次卧相连的非承重墙向次卧方向部分内移做洗漱区域;
4、次卧作为大女儿的儿童房,整理卧室面积进行缩小,利用Z字形墙面定制衣柜,通过玻璃隔断代替墙体,增加儿童房的采光;
5、儿童玩耍区利用缩小女孩儿房的面积与小阳台打通,作为两个孩子的游戏、阅读区域。
客服
消息
收藏
下载
最近

























