查看完整案例


收藏

下载
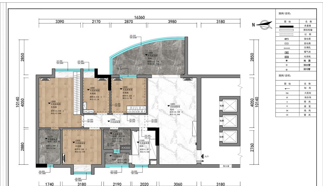
装修痛点:1.原户型客厅的面积相对较小,但休闲阳台的空间却过于大;
2.餐厅进门开间较窄,放上餐桌椅之后,过道就变得很窄;
3.大门的位置贴着墙,所以这面墙无法利用起来;
4.厨房和生活阳台相连,过道占用厨房的面积;
5.公卫到生活阳台需从门口出去,再穿越厨房才能到,设计很不合理;
6.电视背景墙很短,不够大气;
7.两间次卧面积很小,功能区不足;
8.儿童房放了床之后多出一个不大不小的空间,用不上,不用又浪费。
改造要点:1.把休闲阳台隔开两半,一半纳入客厅,客厅面积瞬间变大;
2.餐桌靠墙位置摆放,采用卡座的形式,拓宽过道;
3.把大门的位置往另一边移动约 20 公分,空出的位置可以摆放一个储物柜;
4.把厨房和阳台之间的门封上;
5.公卫和阳台打通,进出方便;
6.电视背景墙和房间拐角连成一体,扩大电视背景墙的视觉效果;
7.两间次卧的墙错开放置衣柜,节省出空间;
8.儿童房多出的面积纳入主卧。
原来的户型是没有空间可以作玄关的,餐厅就基本占了进门的所有面积,过道很窄,两个人并肩都困难,根本很难放下一个玄关柜,更不要说还想放下一台饮水机和扫地机器人。
在我们解决了餐厅的问题之后,过道的面积就变宽不少,可以放下一个不小的玄关柜。玄关柜做了 6 个隔层,有非常大的空间可以收纳小型杂物,台面可以放一个托盘收纳钥匙,架空层可以放一个扫地机器人,又不会阻碍行走。
把休闲阳台分割成两半,其中一半纳入客厅的面积,客厅的纵深一下看上去就长了,客厅的实际面积和视觉面积都增大不少。
我们改变了沙发摆放的位置,原本的位置看起来很局促,放上个三人座就基本上没空间了。调整布局后空间变大不少,光线也明亮了很多,空气流通也顺畅。
整个设计都是以暗色调为主,为了不让空间沉闷、没有档次感,我们就在软装上把调性提出来。三人沙发选择了很有气质的橄榄绿,单人沙发是很温柔的藕粉色,让空间突然活泼了起来。
原来的电视背景墙很短,不够大气,尤其是放了个装饰柜之后。所以我们采用了两种材质,用木板材质(如果是白墙会很单调,视觉上很难连成一体)从房门侧面墙连着拐角过来电视背景墙的一侧,再接过去电视石材区,这样不论从哪个方向看,背景墙都比原来要长。进过道的感觉也好像是从房门处开始,而不是转角处开始,视觉上和感官上会好很多。
大门一进门的位置就是餐厅,餐厅的开间只有 3.06 米,其实是不宽的。按正常来说,餐桌的位置是放在中间的,两边再放上凳子,这样一进门通向客厅的过道就会很窄,所以按照此户型的布置,餐桌只能靠墙放。
一张餐桌一般是 1.4 米宽,再放上椅子,过道的位置就只有五六十厘米,还是很窄,而且还放不下柜子,所以我们在靠墙位置做了一个卡座。卡座的好处就是餐桌跟卡座之间不用留太大的空间,那就可以把过道的空间拉宽。而且卡座下面是做成抽屉的形式,又多了一个收纳空间,一物多用。
大门的位置往左移了大概 20 公分,这样就可以腾出一个位置放储物柜。按道理来说,移动大门的位置是很难去做的,但是最后我们还是克服了困难,解决了这个问题。
为了增加储物功能,还可以在卡座旁边做一排到顶的储物柜兼装饰柜,这样就可以把功能区都归纳到一边,还专门把一个地方做了镂空,可作为料理区来使用。
原来厨房的空间是很难利用的,只有两边可以放置橱柜,而且都放不下一个标准的橱柜,另一边也很短。我们经常会看到有些户型,一个厨房有两个出口,通过厨房出阳台,这样的话就有了一个通道,原本橱柜是可以做成 U 型的,现在只能进空出来用来走路了,所以这个空间很不好用。
所以我们把厨房出阳台的门给封上,这样厨房就是只有一扇门的密闭空间,就可以做 U 型橱柜。这是所有橱柜中最实用的橱柜,转过身就可以操作,冰箱放在进门的右手边位置。
消毒碗柜、洗碗机、烤箱这些厨房电器都做成了嵌入式,给厨房节省出很大的空间。
厨房门不做成平开门,因为做平开门总是会预留开门的一个半扇形的空间,但在过道的空间不是很够的情况下,其实是很占地方的,所以我们选用了外挂推拉门,节省空间。
主卧有一个户型上的小缺点:过道的末端就是主卧门。原来床头的位置是在另一边,经过过道的人就会看到床上的情况,缺乏私密性。我们要避免这个情况,所以就把床头和床尾的位置对调了,这样做还有一个好处就是,每天起床一转头就可以看到窗外的景观,视觉感受和之前完全不一样了。
主卧一进门就是一排的装饰板,里面其实是藏了个储物柜和一个卫生间门,当全部门关上的时候,就是一面完整的背景墙。
业主不希望卫生间太直面主卧,所以把房间进门处那面墙作为一个整体之后,主卫门就可以隐藏起来,储物柜也可以隐藏起来,但全部都可以开门,各自功能。
把原来床头位置的那面墙连成一个整体,一边是两扇门的大衣柜,另一边空出来作为一个办公区。
因为业主的工作性质,有一部分的时间是需要在家办公的,所以我们就预留了这个办公区给他们处理工作和阅读。书桌位长 1 米 25,上面是层板,放业主的一些资料书籍。
卧室是无主灯设计,床头灯采用壁灯代替。黑色的灯,暖黄的灯光,既做到了业主希望的“冷”,又保留了家的温度。
设计的整体色调就是采用黑、白、灰三种,所以卫生间就采用了黑和灰为主体色调搭配,映衬主卧的主体色调,这样从主卧到主卫就不会很违和,色调都是统一的。
主卫的设计比较简单,只做了简单的三分离。所有的金属都是选用了黑色的,浴室柜和墙上的瓷砖都选用灰色的,简约高冷到底。
从卫生间往外看出去,就正对着书桌的位置,因此做一个隐形门是一个不错的选择,起码这样不会让人觉得是在卫生间门前工作。
原来户型公卫是和生活阳台相邻的,但是中间隔着一扇窗。生活阳台的入口在厨房,假如说这个阳台是用作清洗衣服的,那每次洗完澡出来,要捧着一盆衣服,从卫生间-- 厨房-- 阳台,很奇怪又很麻烦。
所以我们做了这样的改变:把卫生间和阳台之间的窗打通,把卫生间划分出干湿分离,在不用淋浴间的时候,卫生间可以直通阳台。这个过道的光线会更好,而且对流也会增强很多,卫生间不会那么潮湿。
原本两间次卧就是普通的一面墙分开两间房,现在我们把这面墙错开了一小段空间,形成一个“S”型,这样就可以把两个衣柜的位置腾出来,床放在靠窗的位置,旁边的位置就可以用来放书桌。以前这两个房间基本上是放不下书桌的,放了一张床和一个衣柜就差不多占据了整个空间。改造后也放得下一个不小的到顶衣柜,床也放得下,还各配置了一个 1.4 米的书桌,按照原来的户型,这是不可能做到的。经过调整之后,所有的地方都变得实用,而且进门之后的空间也大了很多。
儿童房我们也做了一点调整,因为儿童房有一个比较大的飘窗,而且台面比较低,床靠着这边显然不太合适。但如果靠着另一边的墙,又会多出一个一平方米左右的空间,就算放个抽屉或柜子也还是会有空余的空间,用又用不上,浪费又可惜。
我们就计算好了数据,把那个多余的空间给了主卧,这样主卧就又多了一个储物柜。因为飘窗的关系,所以我们选择了架空的儿童床,旁边订做了一个刚好大小的储物柜式楼梯,所有的空间都卡得刚刚好。
儿童房经过调整之后会更归一,这个房间基本上所有功能都齐全,还比较有趣,上床下衣柜的设置,小朋友可以爬上爬下。进门的区域可以作为以后提升小朋友自信心的履历墙,目前就可以放置一个玩具收纳架,把杂乱的玩具收纳进去。
飘窗另一边的区域我们给小朋友归置了一个学习的区域,书桌是和衣柜一体的,其实也可以当做书柜使用。飘窗引进的自然光再加上一盏落地灯,是一个极好的学习区域。
柜子还做了两个凹槽,可以放几本平时常用的书籍。
原来的休闲阳台被分割成两半,一半纳入客厅,就多了一个功能区,还多了个储物的空间。
这个储物空间非常大,整个客厅的储物功能都集中在这里了,各种大小的隔层都有。
以前是由一扇推拉门出阳台,现在站在客厅就有个落地窗,整个空间的光线变得更好了。在这个区域还可以摆放一张小桌子,喝茶,看风景,这就是客厅设计的一个重要的想法。
走廊连接了所有空间的门,天花安装了射灯,夜晚也可以很方便。
阳台并不是生活阳台,只是休闲阳台,所以不需要这么大。所以分割成两半,其中一半还原阳台作用,用一些绿植装饰一下,整个空间会干爽一点。还可以把功能区的桌椅搬出来,仿佛是一个小型私家花园。
阳台进门处还做了一个嵌入式储物柜,上下两层没有门板,可以放一些不怕灰尘的物品,中间一层有遮挡,可以储物。
客服
消息
收藏
下载
最近









































