查看完整案例


收藏

下载
玄关经改造设计后拉伸空间,入户门处做定制通顶储物柜,白色与海军蓝两者搭配,给人一种心旷神怡的感觉,颜值超高的悬挂式全身镜,早上出门也要美美哒
在硬装上选择原木和白色为主色调,增加视觉的宽敞和明亮感,辅以低调备受欢迎的脏脏粉,和中性系明度的灰绿色点缀,冷暖结合,营造初恋般的甜蜜质感,让家更加温馨浪漫。
将原本的主卧和客厅互换位置,利用窗户形式作为隔断墙来呈现空间之间的联系,既可以增强空间的通透性,又使卧室的私密性感不被破坏。
空间的限制,改造开放式厨房、餐厅、吧台集于一体,满足新婚小两口的使用,不经常在家烹饪的二人,吧台满足了临时用餐的需求。考虑到偶尔会有朋友做客,所以准备了多功能茶几,人多也不怕。
开放式的格局,让客餐厅之间和谐相通,吧台的设计也很好的进行区域分割,隔而不断,减少空间的压抑和局促感,让空间更加通透。白色及灰绿色搭配的橱柜,显得更加清新自然。
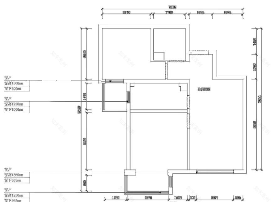
1、在规划布局时原始空间动线过于混乱,动静区划分不明显。
2、原始户型比较拥挤,客厅、厨房、餐厅、主卧各个空间分配不合理 ,不能满足日常的使用
1、拆除非承重墙体,互换原始客厅与主卧室位置,重新划分格局,增加衣帽间以及储存空间 ,增大了空间的使用功能。重新布局后客厅拥有阳台区域,入户有玄关区,整体更为合理,使整个布局更生活化
2、原本封闭式厨房改造为客餐厨一体的开放式格局,同时实现餐吧一体化
3、客厅与餐厅厨房形成开放式空间,扩大了空间的视觉效果,同时增强了客餐厅的采光,使空间更加通透
4、曲径通幽处,通过厨房和衣帽间的改造,增加玄关走廊空间,通过走廊,到达每个空间的位置。
5、调整次卧门洞位置,让整体空间更合理,次卧设计为榻榻米形式,作为多功能区,学习工作以及储物,阳台区域还可在休闲时刻喝喝下午茶,畅享未来
床头背景墙采用半墙式脏脏粉搭配,与客厅色调相呼应,搭配原木的温润自然,交织出清新宁静的羽然空间。
原主卧室和客厅互换位置,卧室空间由此变大,以至增加衣帽间空间,衣帽间选择用谷仓门做分割,黄色调的谷仓门点亮空间,增加卧室的趣味性 。
站在玄关处一端看到通往次卧的走廊,同时也是由动转静的第一眼,从某宝上购买的防滑垫也是如此创意且时尚,卫生间门应用长虹玻璃搭配黑色边框,依旧走在了时尚的边缘
次卧为将来小朋友考虑和父母临时居住,所以没有考虑单人床,选择了整体榻榻米的形式。
墙面整体以白色为主,背景墙以中性色系的灰绿色搭配,让空间色调不会过于单调,色调的搭配均适用于男孩和女孩居住
飘窗以开放格的形式设计,作为储物书籍和玩具,黑板墙和艺术吊灯的加入,提升空间的趣味性和生活气息。
使用空间仅有5㎡的卫生间做干湿分离,玫瑰粉外置洗漱台兼化妆台,梳妆台镜面自带led灯,用来化妆也是赞不绝口
墙面三种颜色搭配,地砖上墙,墙面颜色与洗手盆两者颜色相互衬托,整体色调深浅搭配,从视觉上更有空间感
客服
消息
收藏
下载
最近
































