查看完整案例


收藏

下载
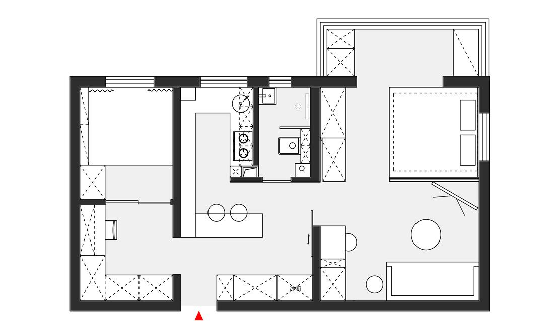
原始入户玄关直面厨房,我们设计通顶高柜白色高柜,顺延至餐厅,形成视觉缓冲,日常鞋物可尽数收纳。 圆形挂架可用来挂衣服、包包,柜体中预留了一个冰箱位,缓解了厨房的储物压力,冰箱旁挂有一面异形镜,出门整理着装更加方便。
餐桌以金属圆柱为支撑,留出宽松活动区,光线可自由穿梭,细腿的金属餐椅,与餐桌相呼应,独特的扶手造型,有着中古风的优雅和时尚气质。 桌面与厨房的操作台面齐高,相当于拓充了1倍以上的用餐空间,节假日,亲友聚会,轻松而欢乐。
餐厨、玄关,通铺灰色大砖,连贯而统一,从视觉上,提升了空间的开阔感。 餐厅采用无主灯照明方式,明装筒灯分散于顶面,又另选了Flos Frisbi 的飞碟吊灯作为主灯,灯饰造型优美,让用餐的氛围温馨又高级。
厨房打开后,充分利用了右侧整面的墙体,打造出超长西厨台面,底部的收纳空间也很可观。为了配合西厨台面,特意安装可移动插座,小家电可以自由使用。 厨房以白色为基调,窗明几净,一次性配齐洗碗机、厨余垃圾处理器,用科技解放双手。
原始户型,并没有预留充足的客厅空间,但是对于喜欢享受生活的屋主而言,客厅是必不可少的。为此我们将目光放到了宽敞、明亮的主卧。
在主卧中砌半墙,并嵌入大面的玻璃,隔断出客厅区域。通透的材质,保证两处彼此独立,光线又能互通有无,非常贴心。温润的人字拼跨越了两个空间,相当温馨宜人。
电视改用支架来播放,相当节省空间,又很符合时下年轻人的生活方式。电视旁是一株舒展的琴叶榕,给客厅带了一丝清新和绿意。
玻璃茶几,以三个球体为支撑,造型低矮又很有艺术美感,看电视时,视线可以平稳过渡。 奶白一字型沙发,材质松软,让空气里都弥漫着慵懒的因子,很适合休闲放松。
客厅延续了无主灯照明方式,4盏斗胆灯,配合沙发旁的白色落地灯,照明力度很强。特意安装透光不透人的长虹玻璃,保证主卧的私密性。
进门处,依托梁柱,做了一列收纳柜,悬空梳妆台内嵌其中,还配了专属的化妆品开放格,女屋主可以舒服地化妆。
主卧的阳台是家里唯一的晾晒区,因此并未包纳进来,但统一的地板材质,让空间整体开阔了不少。舒适的大地色在主卧晕染开来,得格外温暖动人.
实木双人床靠背、底部,都嵌入了柔和的灯带,营造出绝对温馨的入眠氛围。床头窗配以洁净百叶帘,让曼妙的光影,洒满每个清晨。
紧邻餐厨的次卧,形态狭长,我们将门洞做拱形,并抬高到最大,实现光线的共享。进门是整面高柜,又为屋主拓充了海量的收纳空间。
主体空间,被黑框长虹玻璃移门一分为二,外侧是书房,悬空木色书桌+简洁的搁板书架,小而精致,办公体验很沉浸。 里侧是睡眠区,未来可当做儿童房使用,小巧榻榻米床,自带储物空间,也不会挤压空间。
卫生间面积局促,无法干湿分离,我们将洗手台搬到了窗前,获得充足采光,安装镜柜,保证台面干净整洁,选择壁挂马桶,轻巧不占地。
客服
消息
收藏
下载
最近




















