查看完整案例


收藏

下载
在布局规划上,三层楼的空间分工明确,每一层楼都安放下了家人的身与心。
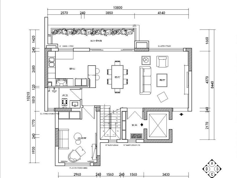
一楼主要作为生活区以及会客厅,近11米的大横厅让所有空间都贯通,消弭视野的阻隔。
冷调的蓝色在干净的基础上增添了一份静谧,蓝色作为背景色,让空间更添层次感。在一楼家具的选择上则是点缀以粉色,粉蓝CP自成一派,色彩的高级感迎面而来。
厨房处考虑到视野的通透度,将厨房做成开放式,前为西厨,后为中厨,体现了两代人的口味差异,但又用设计将这种差异消化,使所有人的胃都能得到满足。
大面积浅灰色的墙漆加上沉静的蓝色,在原本干净简单的空间中注入了一片亮色,空间色彩也更能体现质感。
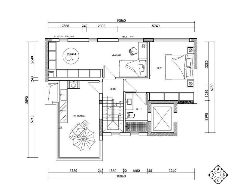
二楼则大刀阔斧的进行了大改造,他们是老人房以及未来宝宝的房间,在父母房中为他们专门设计了卫生间,这是子女在生活上为他们提供的便利;
儿童房在满足TA起居的同时还为TA考虑到了衣帽间,也可摇身一变成为休闲玩耍区域。
多功能的变化是父母为还未出世的孩子所做的提前规划,也是他们对未来将来临的TA所展现出的一份期待的心情。
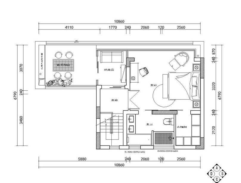
三楼则是专属于夫妻两的独处空间,由于业主小两口经常需要在家办公,所以把三楼整个空间作为主人房,空间相对独立一些。
主卧也延续了蓝色的色调,并且设计为套间形式,满足日常生活的需求。设计师也将三楼的阳台进行划分,设计了阳光房,天气好时小两口也可在阳光房舒适的的环境中进行办公。
坐在干净舒服的房子里面,不需要经历努力看书赶考的辛苦;待在干净明亮的屋子里,任何时候都感到非常的安心。虽然现在已经没有赶考的忧虑,但是舒适的家也为业主提供了舒心的办公环境环境,更是为全家人提供了窗明几净的安心之所。
三代人与一猫的日常生活,就在此间缓缓展开。
客服
消息
收藏
下载
最近






















